← Kingston upon Thames

Status

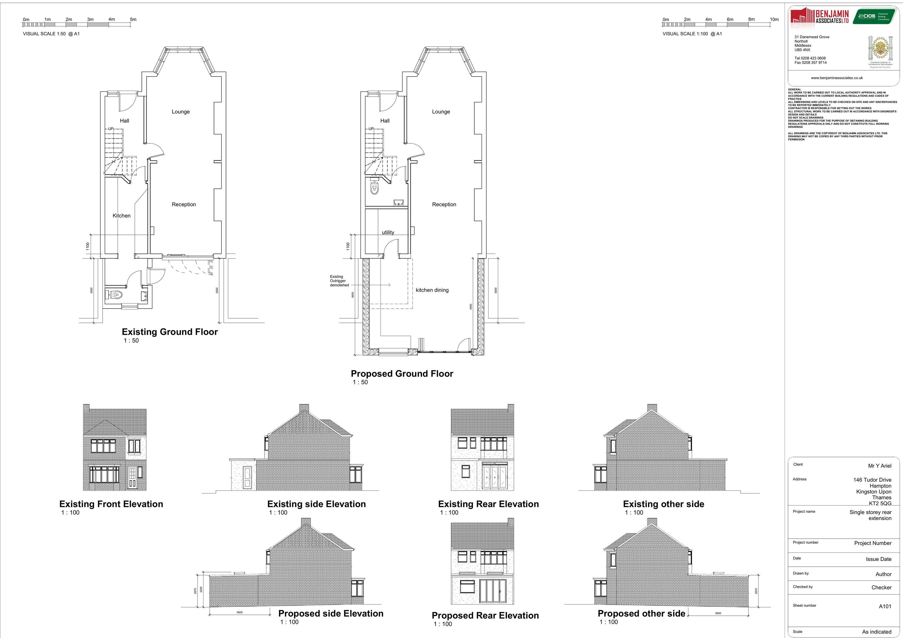
Pending Consideration House extension
Received
Last month
New homes
0

Full proposal

Erection of single storey rear extension (5.60m in depth, maximum height of 3.26m and eaves height of 2.97m)

Have your say

Your comment matters. Councils must consider every representation that raises material planning considerations.

Write a comment