Application
24/00258/FUL
Knowsley Council · IDOX
Status
Awaiting decision
Change of use
Received
n/a
New dwellings
3
What you can do
Take Action
Make your voice heard. Authorities need to hear from people who support new homes.
Summary
Convert village hall and caretaker flat into three dwellings with parking and external works.
Full Proposal
CHANGE OF USE FROM VILLAGE HALL/ CARETAKERS FLAT TO THREE DWELLINGS INCLUDING CREATION OF PARKING SPACES, ERECTION OF FENCING AND OTHER EXTERNAL WORKS
Detail pages
- View live detail on council site
- No archived detail page available.
Documents
Agent Email 3 12 24
Supporting Documents
Not downloaded
· Council link
APPLICATION FORM
Forms
Not downloaded
· Council link
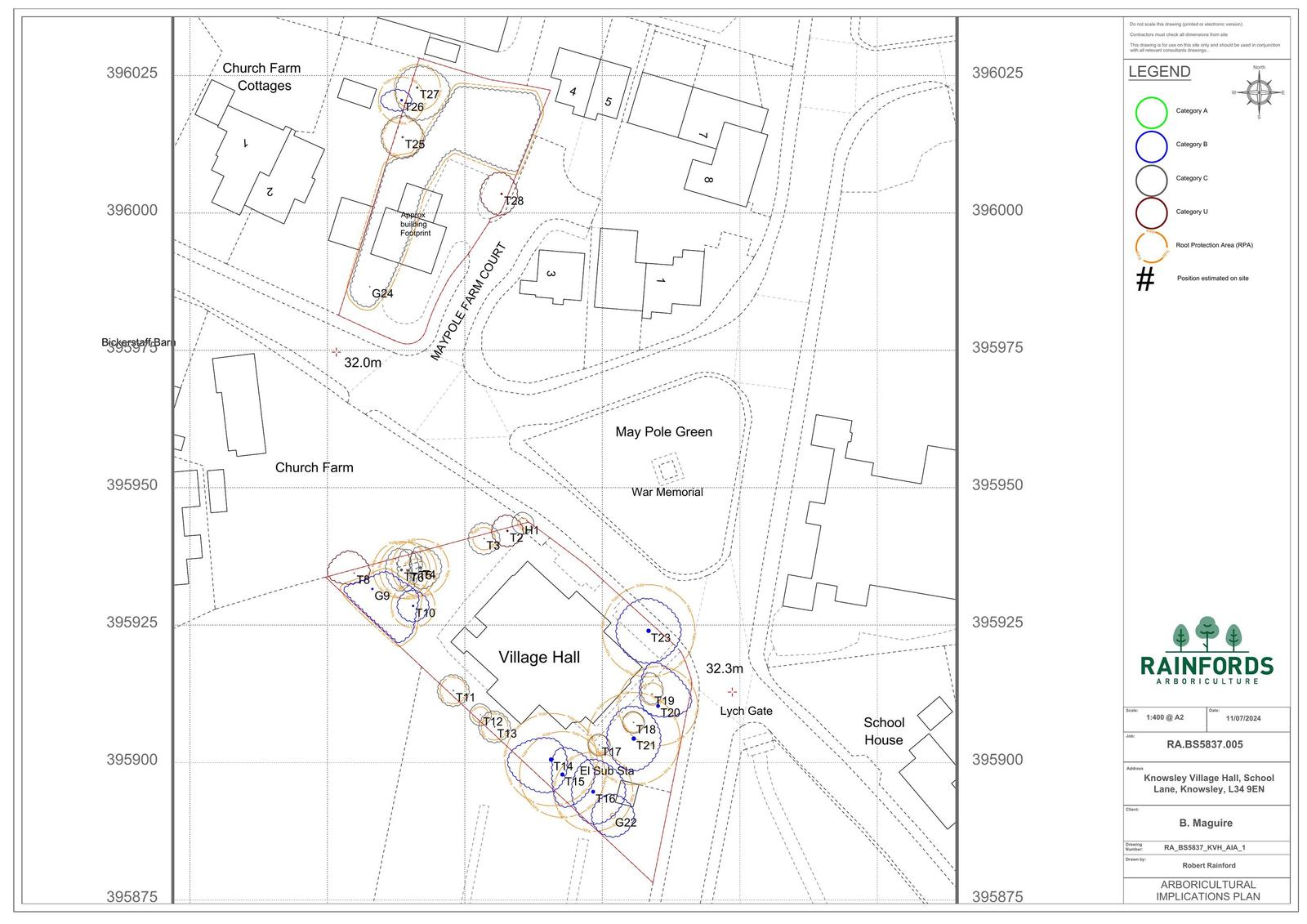
ARBORICULTURAL IMPLICATIONS PLAN
Supporting Documents
Not downloaded
· Council link
Bat Survey
Supporting Documents
Not downloaded
· Council link
Biodiversity Information Report
Supporting Documents
Not downloaded
· Council link
BNG Calculation tool
Supporting Documents
Not downloaded
· Council link
BNG Report
Supporting Documents
Not downloaded
· Council link
Car Parking Layout Unit 1 & 2
Plans
Not downloaded
· Council link
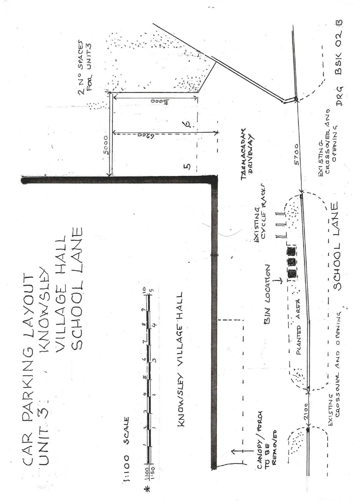
Car Parking Layout Unit 3
Plans
Not downloaded
· Council link
Car Parking Plans
Plans
Not downloaded
· Council link
Ecology Survey
Supporting Documents
Not downloaded
· Council link
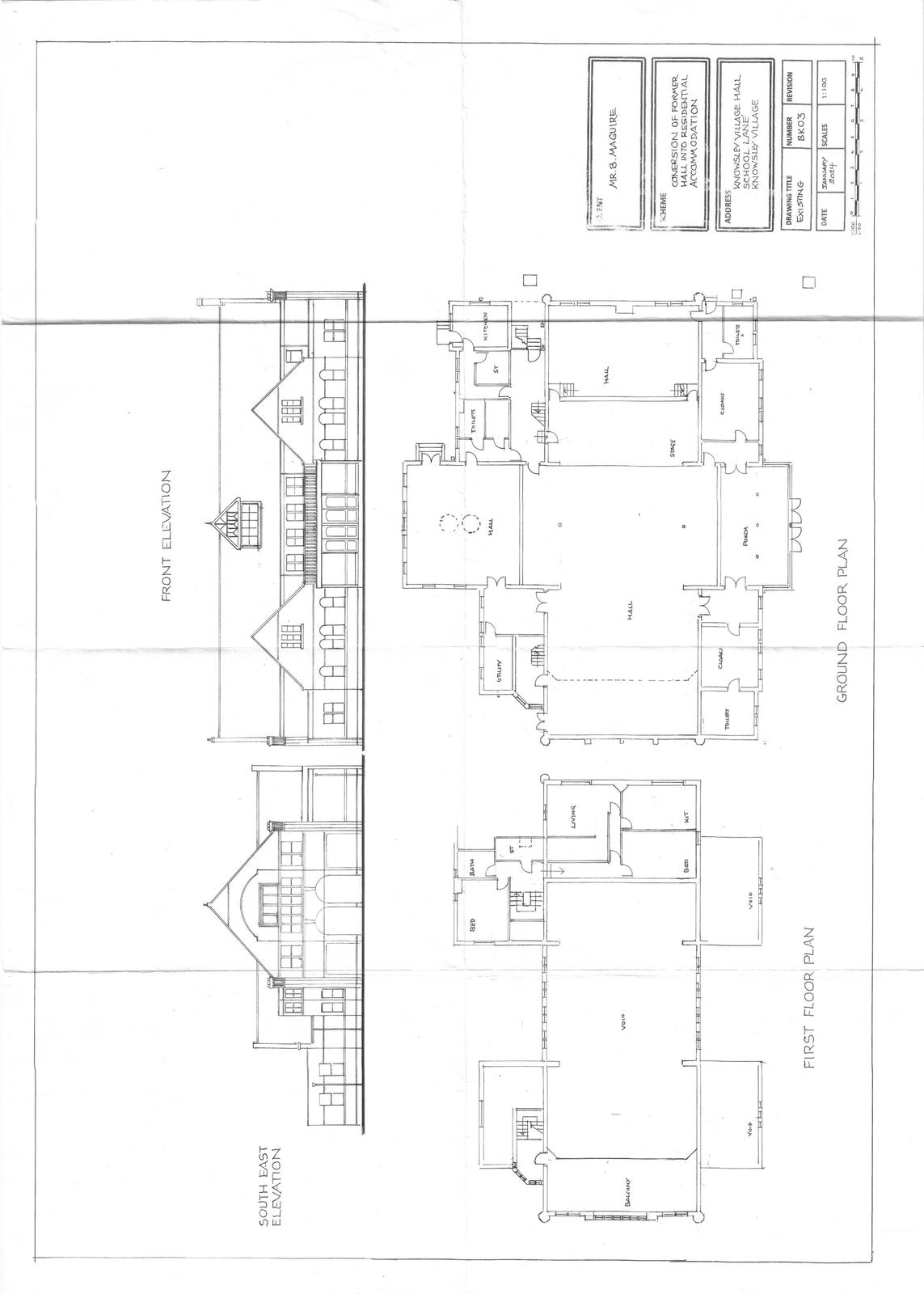
Existing Plans and front and south east elevations
Plans
Not downloaded
· Council link
Heritage Statement
Supporting Documents
Not downloaded
· Council link
Heritage Statement - Updated
Supporting Documents
Not downloaded
· Council link
Historic Environment Record Information Report
Supporting Documents
Not downloaded
· Council link
Historic Environment Record Map
Supporting Documents
Not downloaded
· Council link
LOCATION PLAN
Location Plan
Not downloaded
· Council link
North West & Rear Elevation
Plans
Not downloaded
· Council link
Proposed Bin Store
Plans
Not downloaded
· Council link
Archived copy
· Council link
Archived copy
· Council link
Archived copy
· Council link
Archived copy
· Council link
Archived copy
· Council link
Proposed South East and front elevations and floor plans
Plans
Not downloaded
· Council link
Site Plan & Elevations
Plans
Archived copy
· Council link
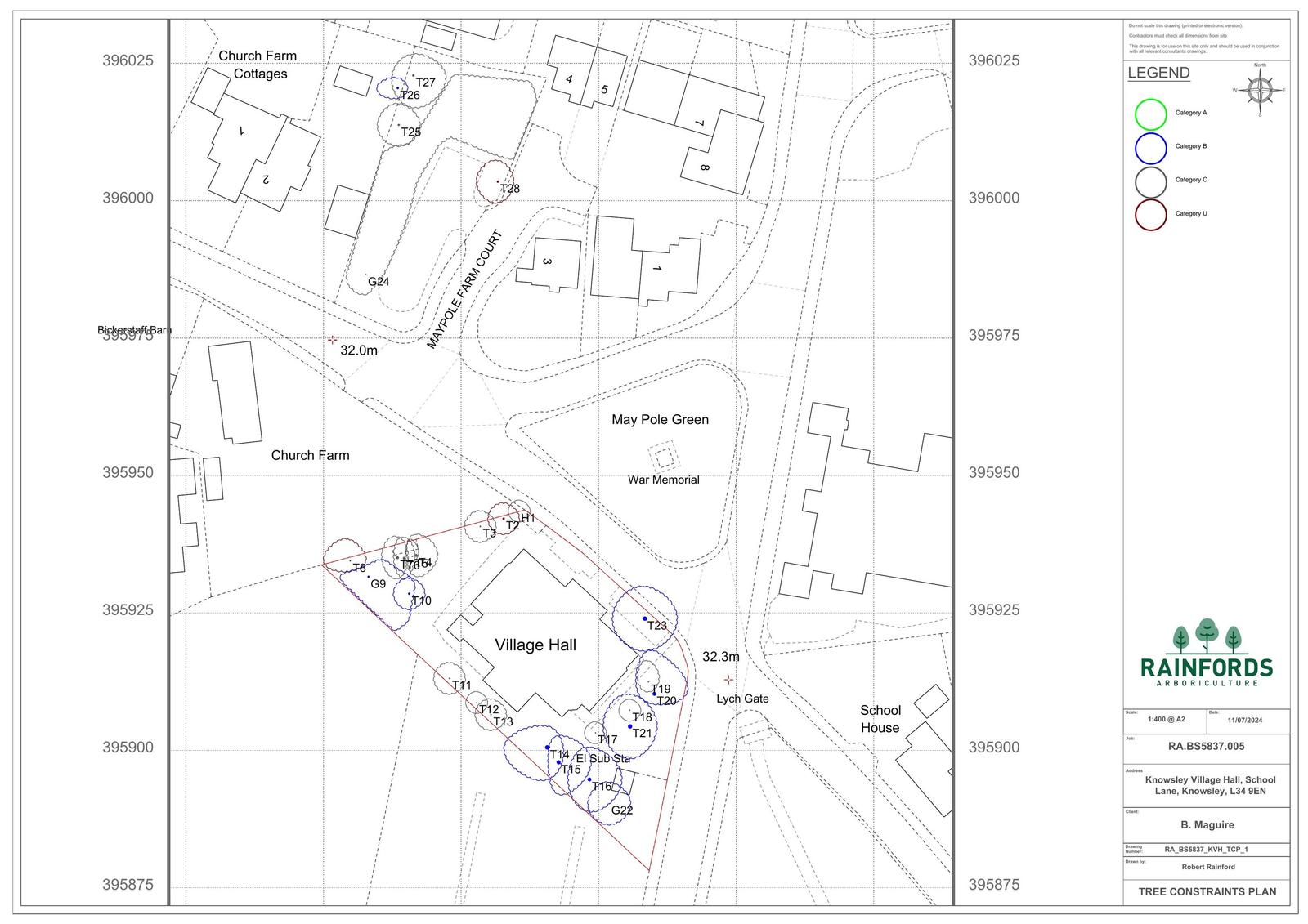
TREE CONSTRAINTS PLAN
Supporting Documents
Not downloaded
· Council link
Tree Map
Plans
Not downloaded
· Council link
TREE PROTECTION PLAN
Supporting Documents
Not downloaded
· Council link
TREE REMOVAL PLAN
Supporting Documents
Not downloaded
· Council link
Tree Survey, Arboricultural Impact Assessment, and
Arboricultural Method Statement
Supporting Documents
Not downloaded
· Council link