← Knowsley Council

Status

Awaiting decision New housing
Received
Not recorded
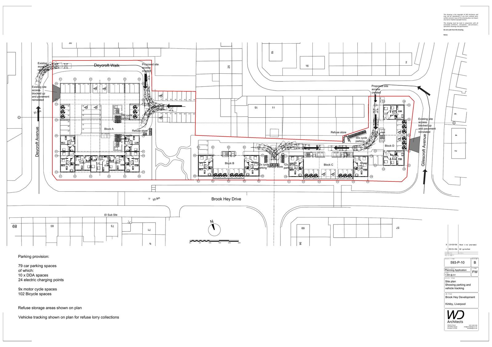
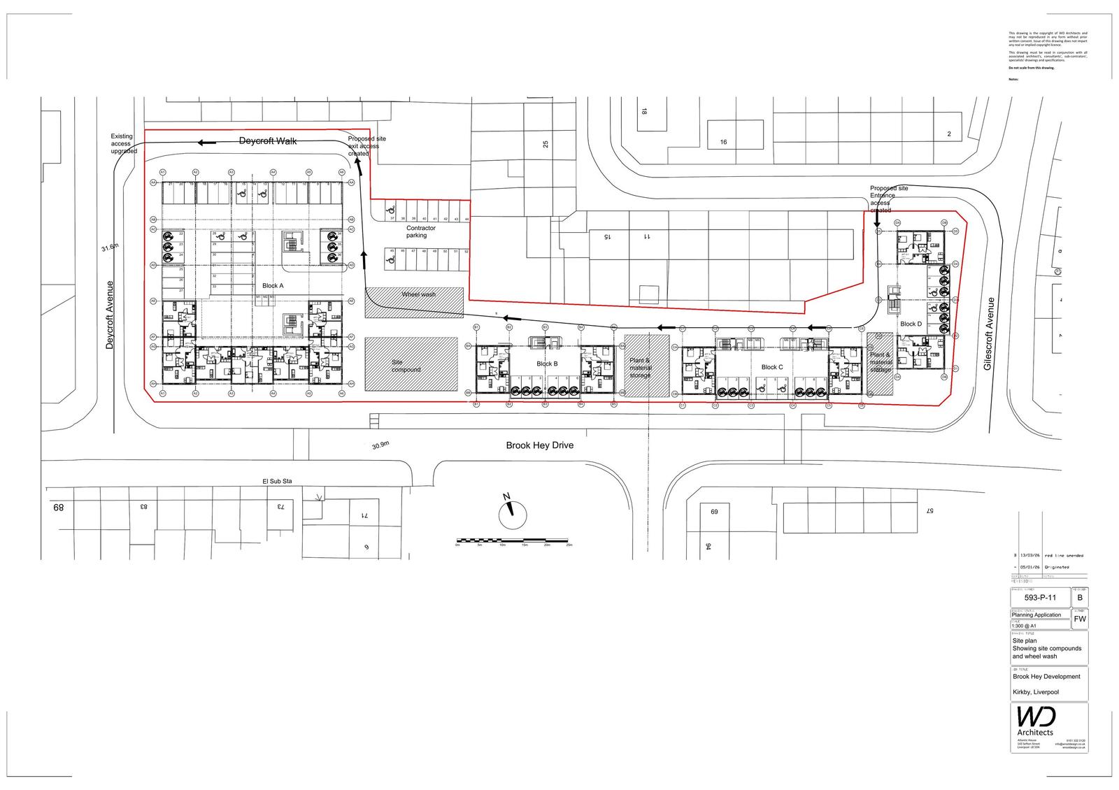
New homes
90

Full proposal

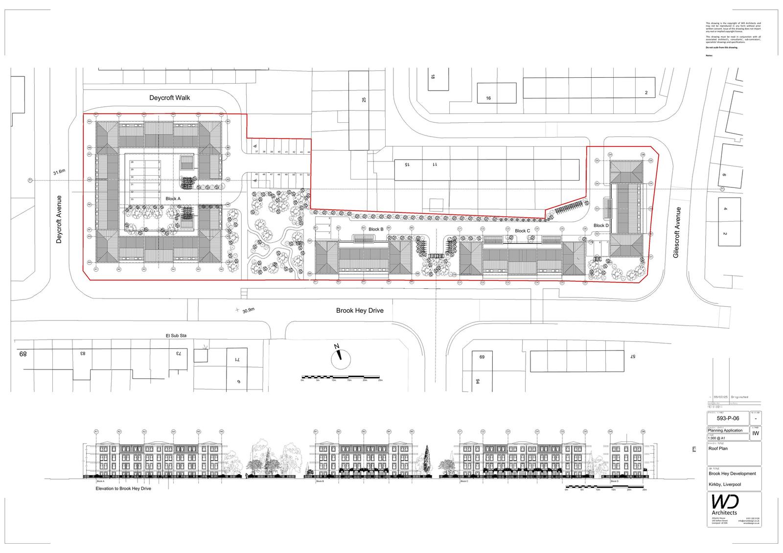
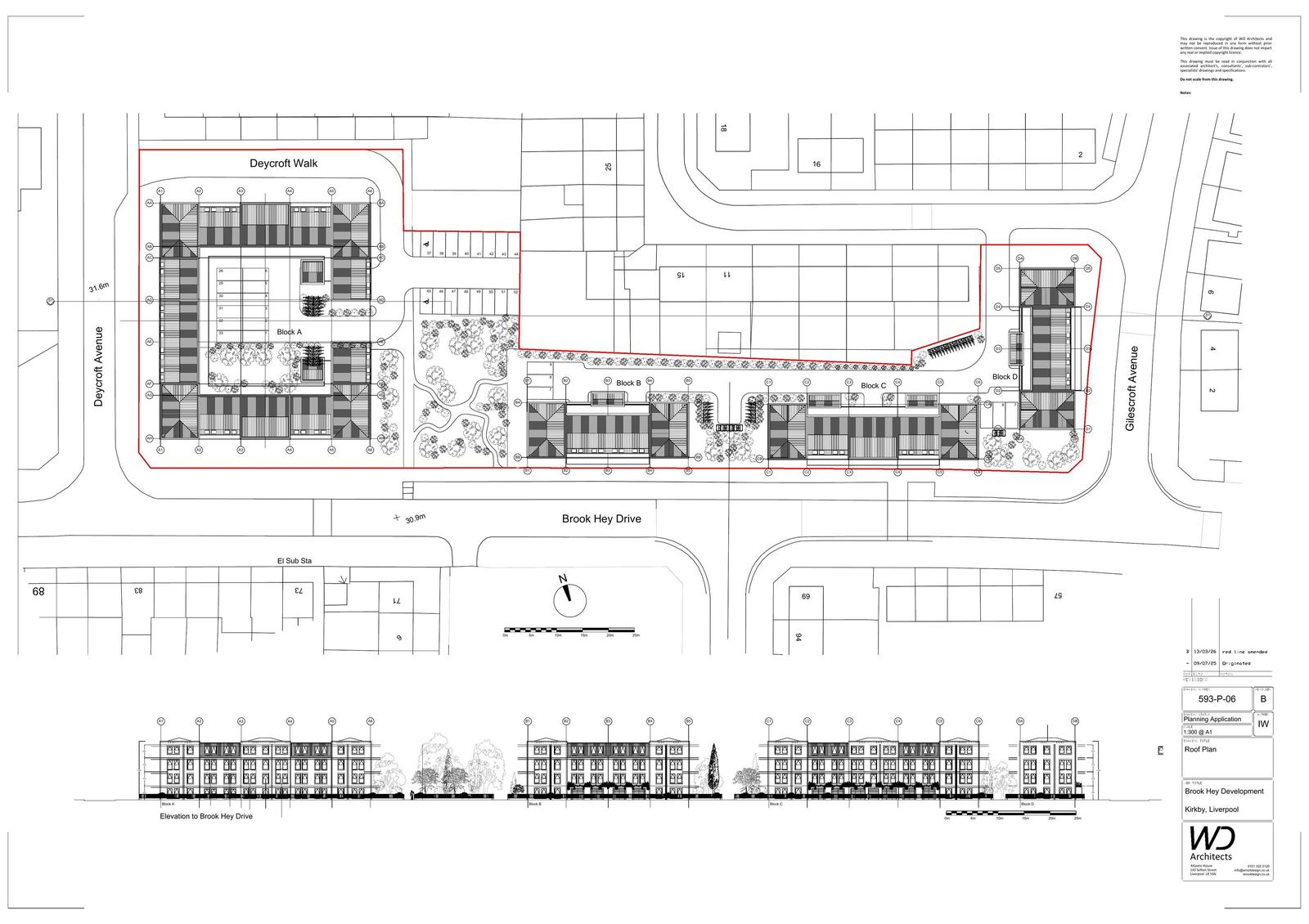
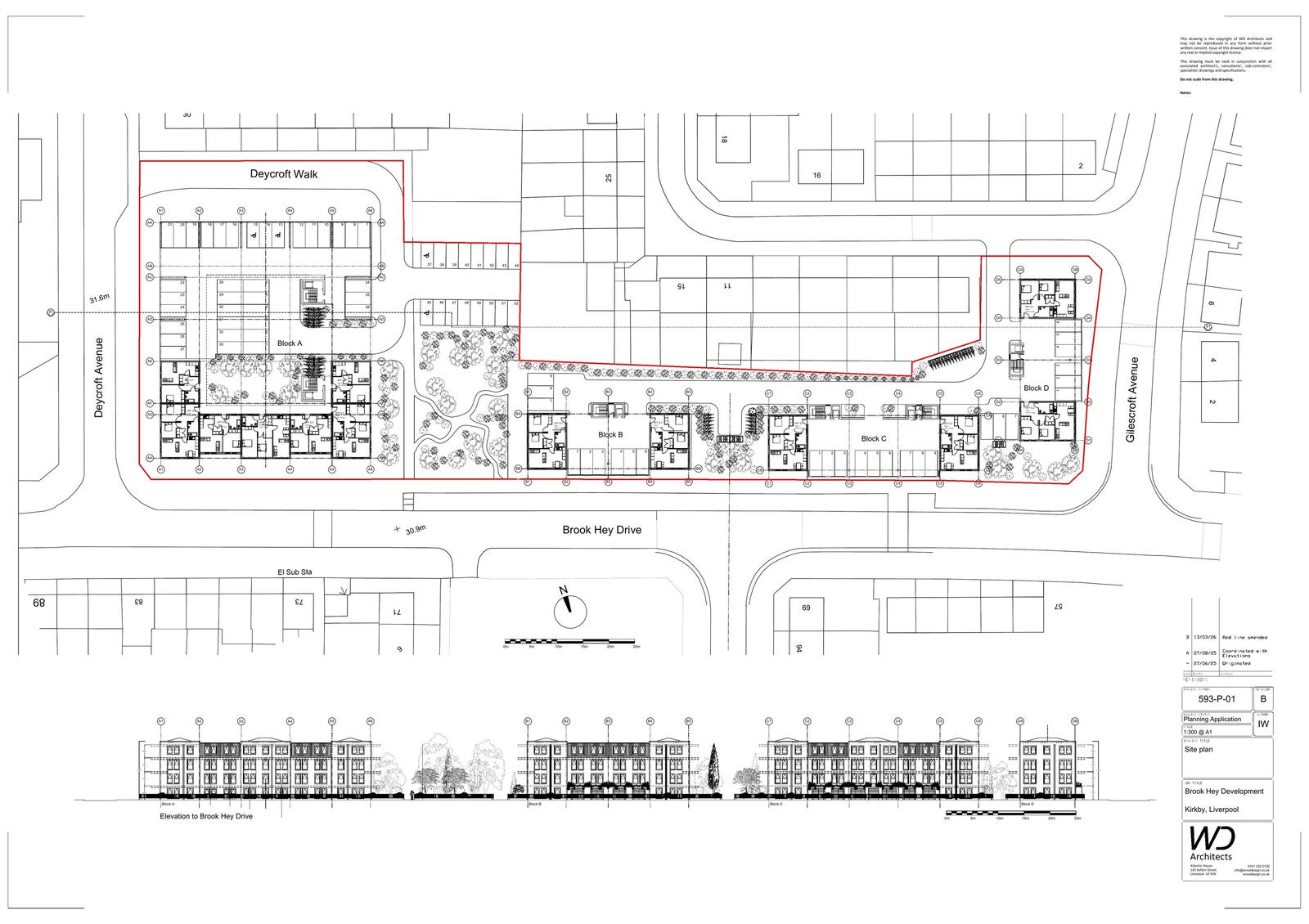
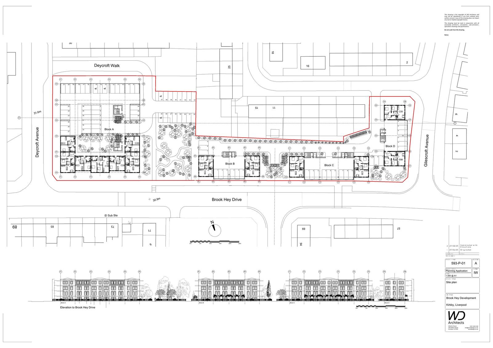
ERECTION OF 4NO 4 STOREY BLOCKS OF RESIDENTIAL AFFORDABLE APARTMENTS TO CREATE 90 UNITS IN TOTAL, 45X 1BEDROOM APARTMENTS & 45X 2BEDROOM APARTMENTS WITH ON SITE PARKING, CYCLE PROVISION, LANDSCAPING AND WASTE MANAGEMENT

Documents

Supporting Documents
Archived · Original link
Plans
Archived · Original link
Plans
Archived · Original link
Location Plan
Archived · Original link
Plans
Archived · Original link
Plans
Archived · Original link
Superseded
Archived · Original link
View associated documents
External Link
Not yet archived · Original link

Have your say

Your comment matters. Councils must consider every representation that raises material planning considerations.

Write a comment