← Knowsley Council

Status

Awaiting decision Commercial
Received
Not recorded
New homes
0

Full proposal

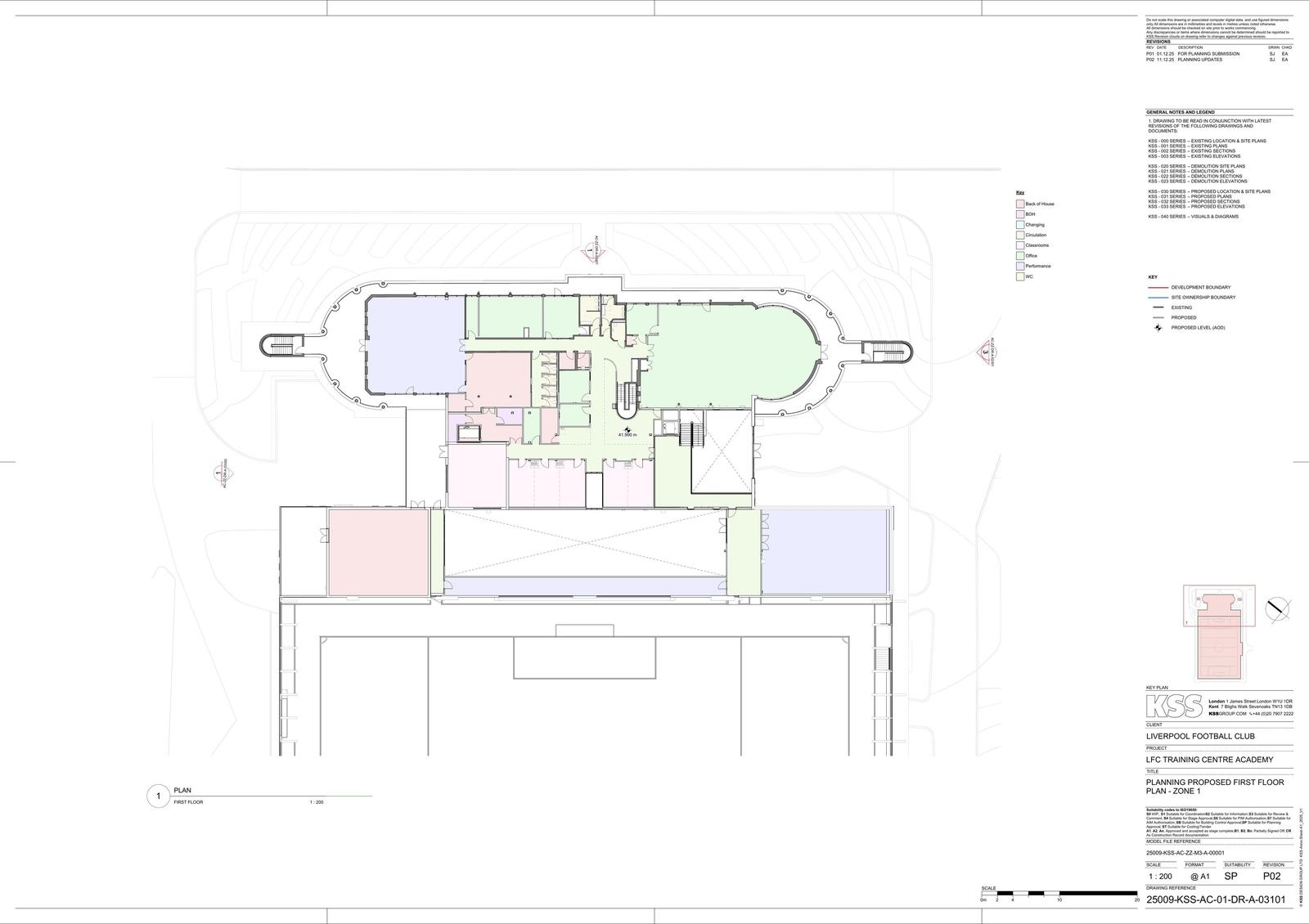
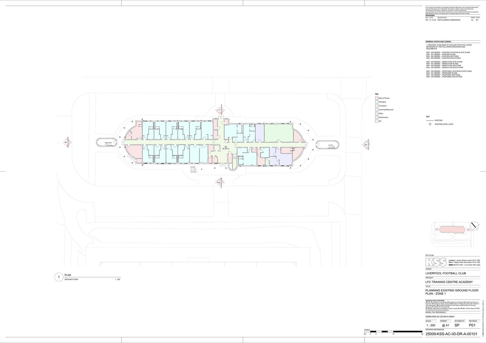
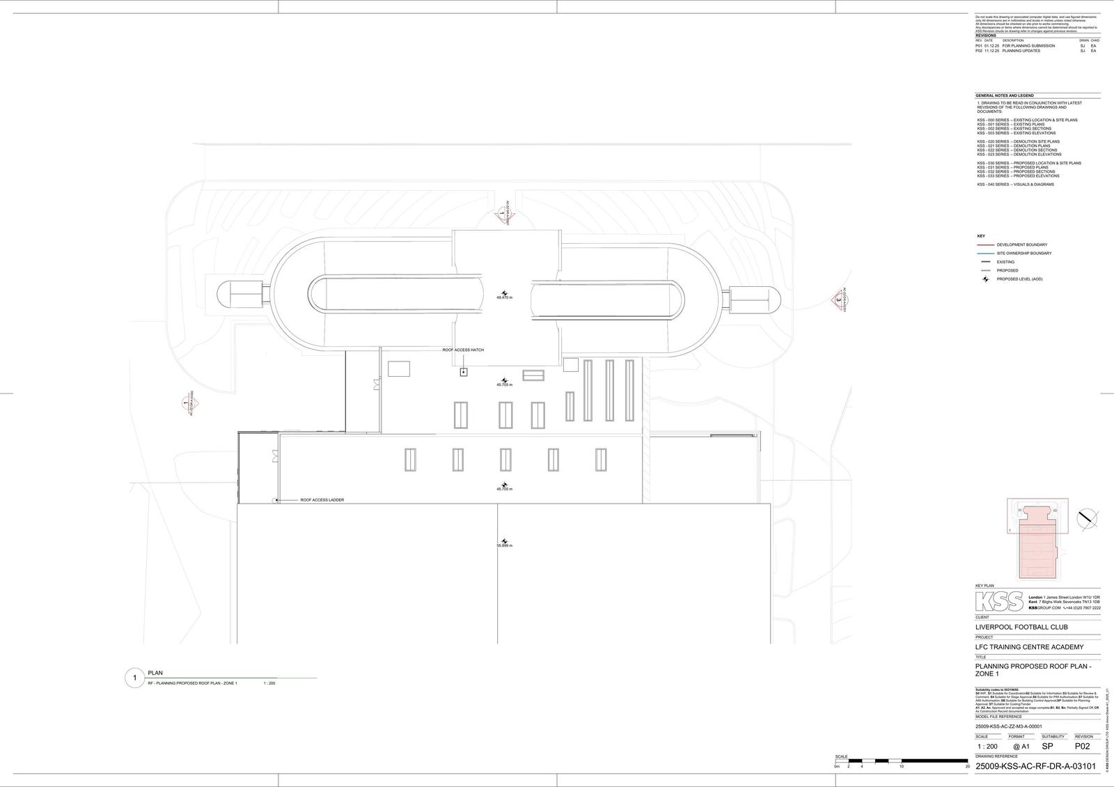
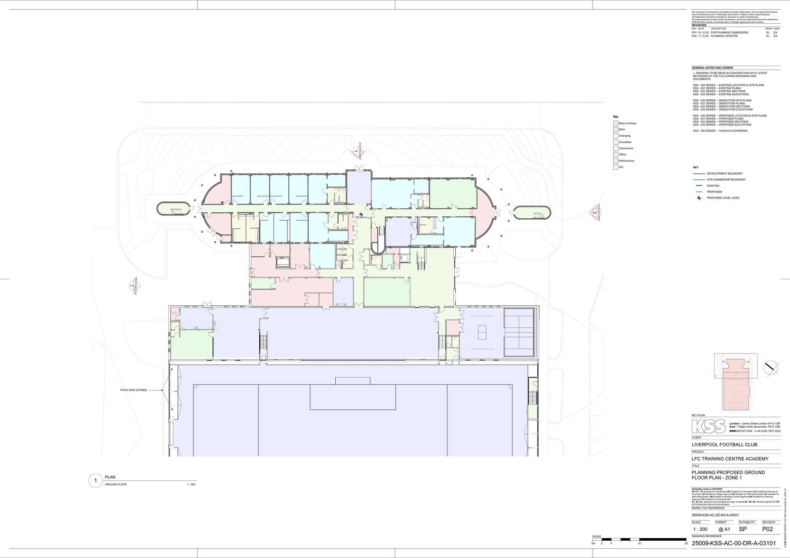
ERECTION OF TWO STOREY FRONT EXTENSION TO EXISTING TRAINING BUILDING. CONVERSION OF EXISTING SHOW PITCH TO ALL WEATHER INDOOR PITCH WITH DOMED ROOF, CONVERSION OF EXISTING ARTIFICIAL GRASS PITCH TO GRASSED SHOW PITCH. DEMOLITION OF EXISTING SPECTATOR STAND ADJACENT TO EXISTING SHOW PITCH AND REPLACEMENT WITH NEW 499 SEAT SPECTATOR STAND ADJACENT NEW SHOW PITCH. INSTALLATION OF FLOODLIGHTS, RECONFIGURATION OF EXISTING CAR PARKING ARRANGEMENTS TOGETHER WITH ASSOCIATED LANDSCAPING.

Documents

Plans
Archived · Original link
Plans
Archived · Original link
Location Plan
Archived · Original link
Supporting Documents
Archived · Original link
Supporting Documents
Archived · Original link
Supporting Documents
Archived · Original link
Supporting Documents
Archived · Original link
Supporting Documents
Archived · Original link
Supporting Documents
Archived · Original link
Supporting Documents
Archived · Original link
Supporting Documents
Archived · Original link
Supporting Documents
Archived · Original link
Supporting Documents
Archived · Original link
Supporting Documents
Archived · Original link
Supporting Documents
Archived · Original link
Supporting Documents
Archived · Original link
Supporting Documents
Archived · Original link
Supporting Documents
Archived · Original link
Plans
Archived · Original link

Have your say

Your comment matters. Councils must consider every representation that raises material planning considerations.

Write a comment