← Knowsley Council

Status

Awaiting decision House extension
Received
Not recorded
New homes
0

Full proposal

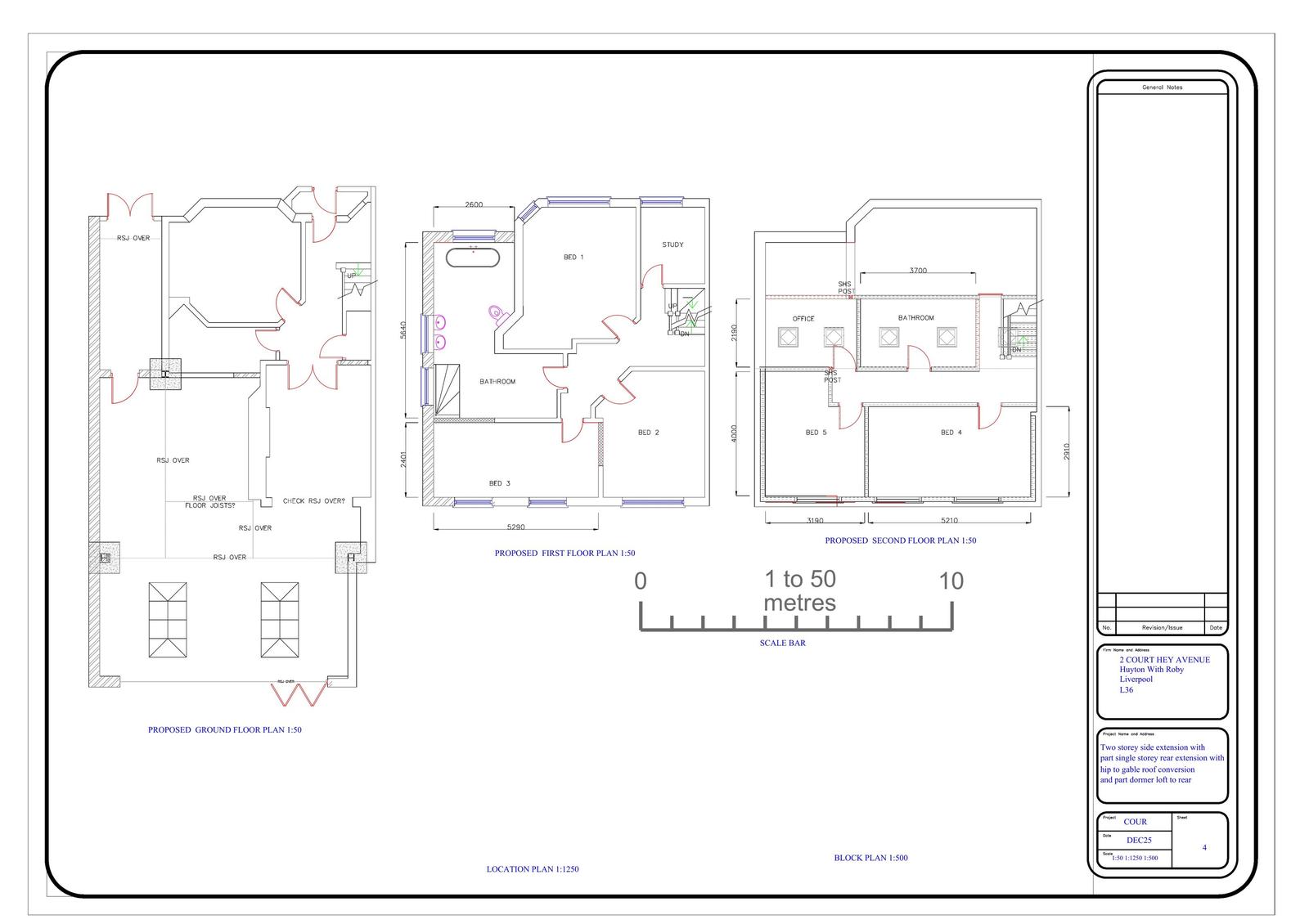
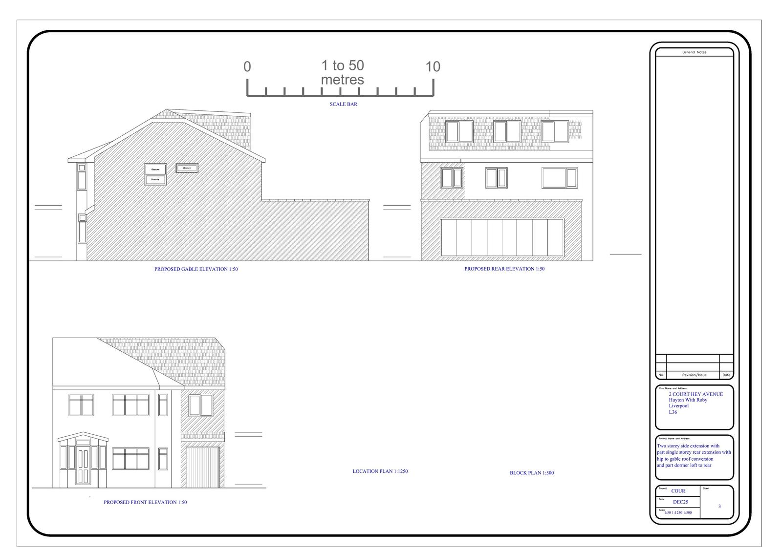
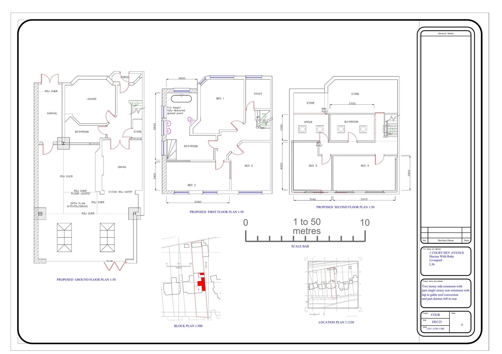
ERECTION OF A FIRST-FLOOR SIDE EXTENSION, SINGLE STOREY REAR EXTENSION WITH ALTERATIONS CARRIED OUT TO EXISTING REAR EXTENSION, TOGETHER WITH A HIP TO GABLE ROOF CONVERSION AND THE ERECTION OF A REAR DORMER.

Documents

Forms
Archived · Original link
Superseded
Archived · Original link
Superseded
Archived · Original link
Location Plan
Archived · Original link
Location Plan
Archived · Original link
Superseded
Archived · Original link
Superseded
Archived · Original link

Have your say

Your comment matters. Councils must consider every representation that raises material planning considerations.

Write a comment