26/00028/FUL
Knowsley Council
Status
Awaiting decision
House extension
Received
Not recorded
New homes
0
Full proposal
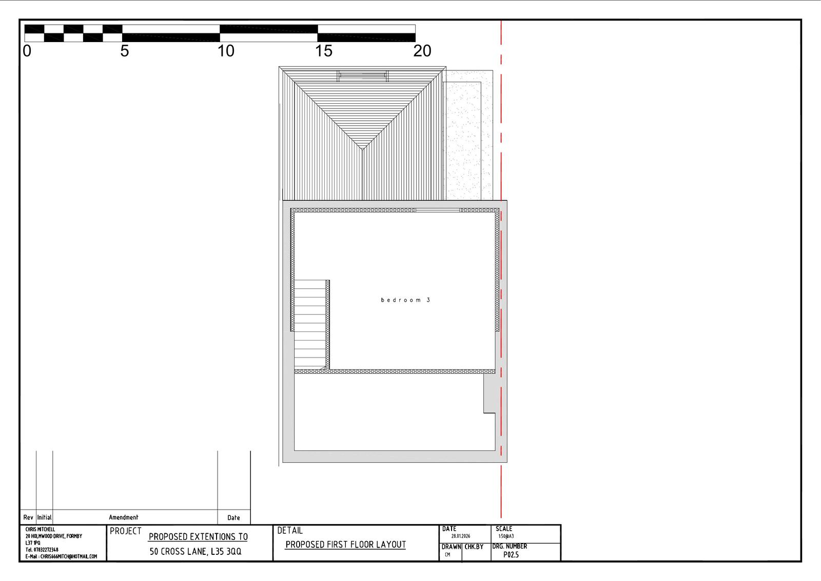
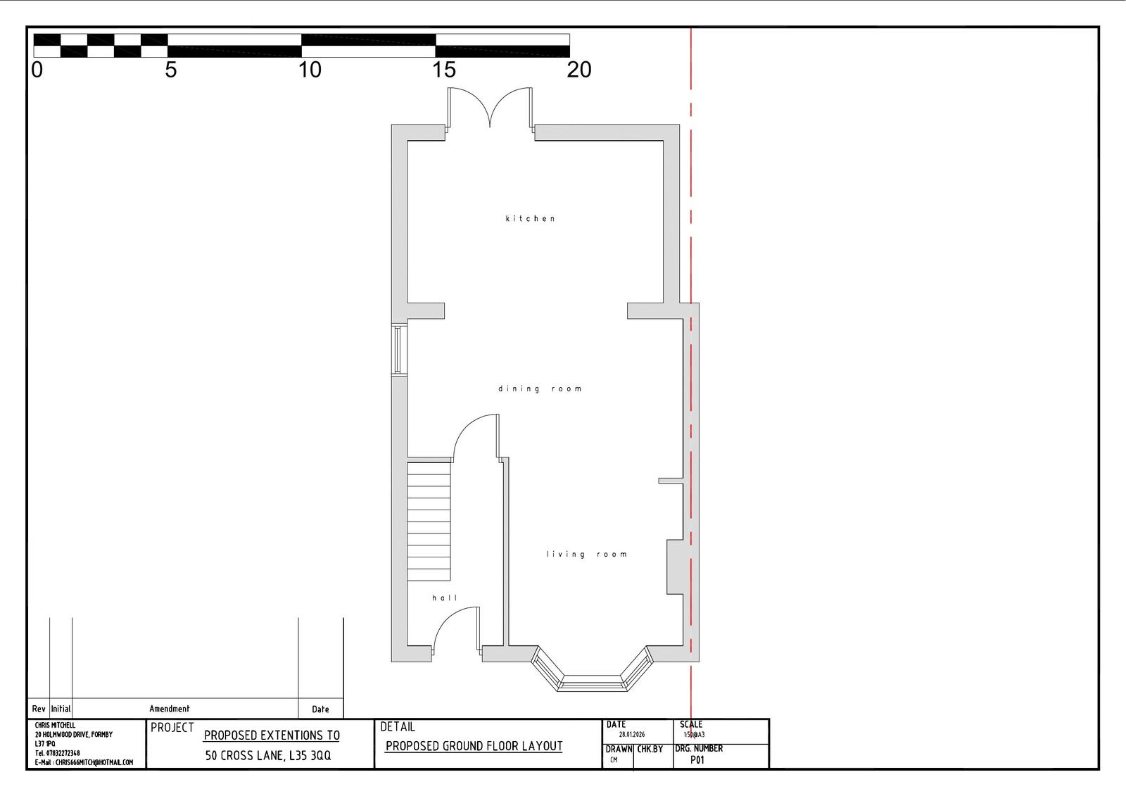
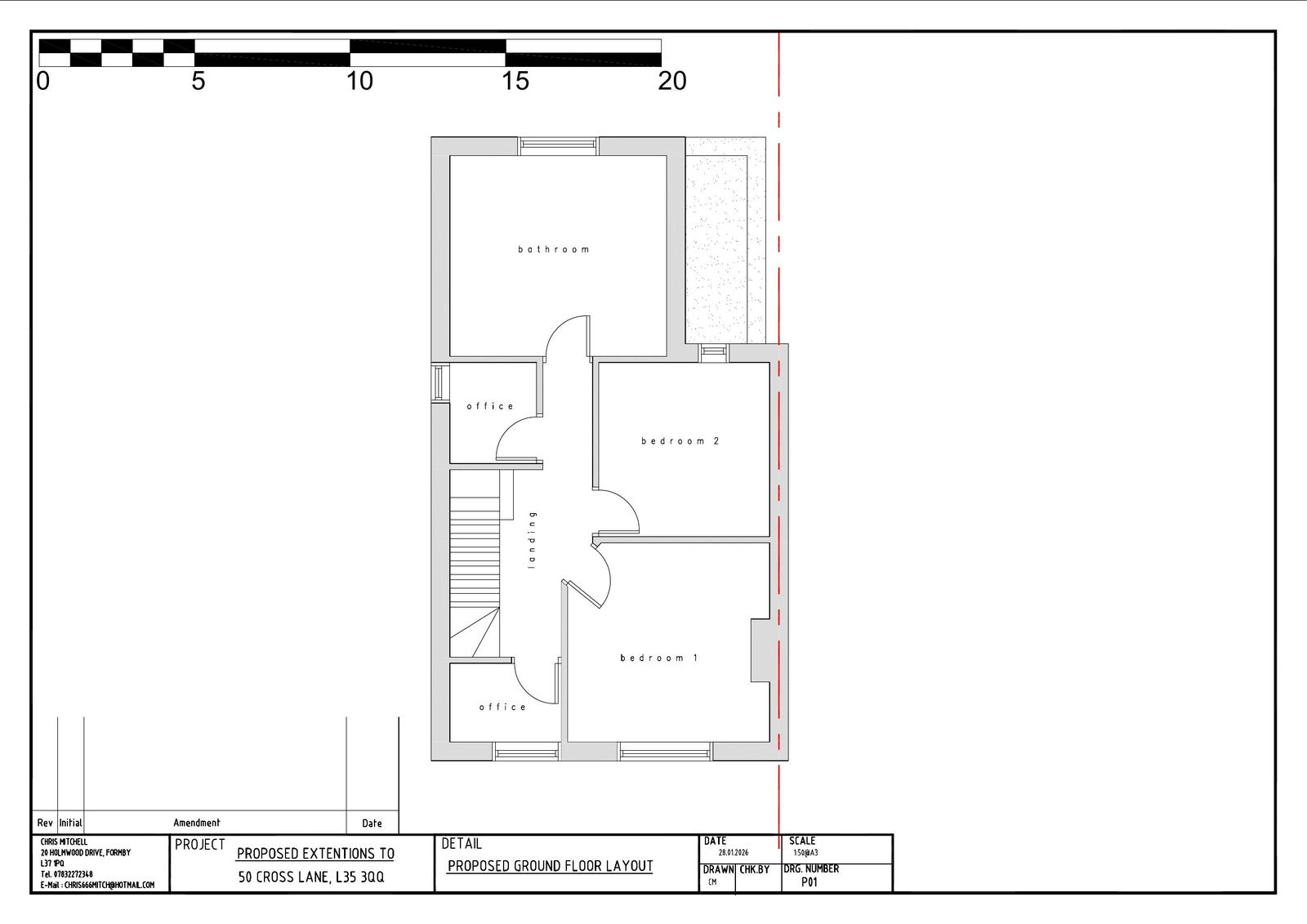
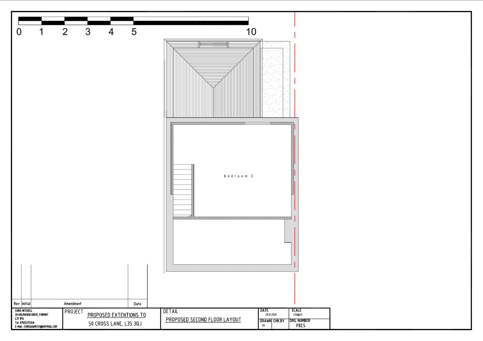
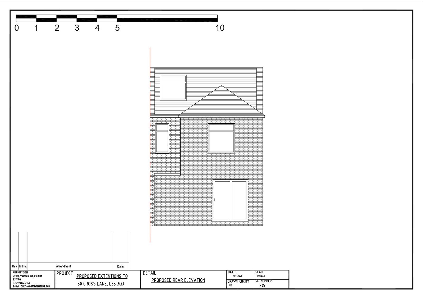
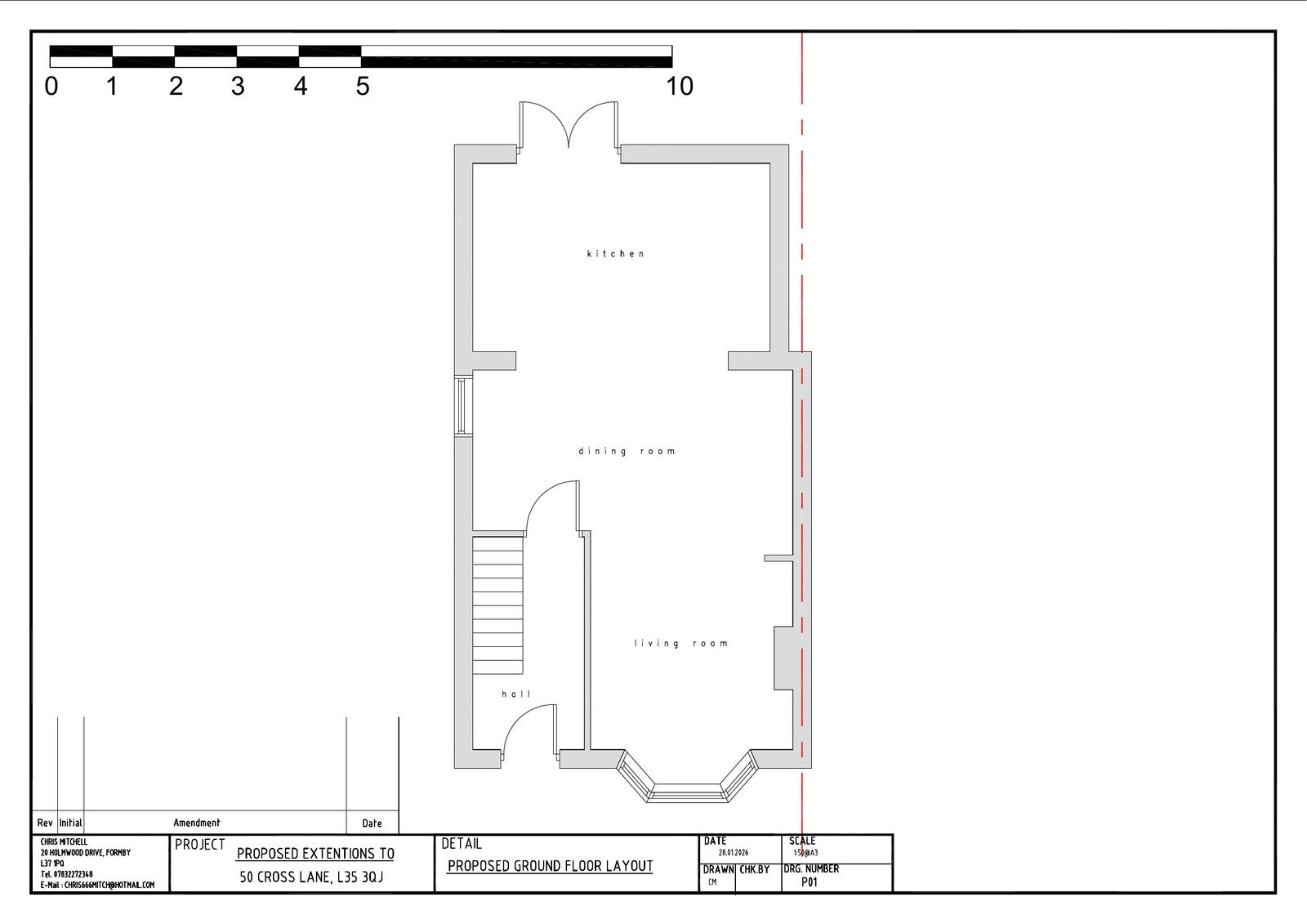
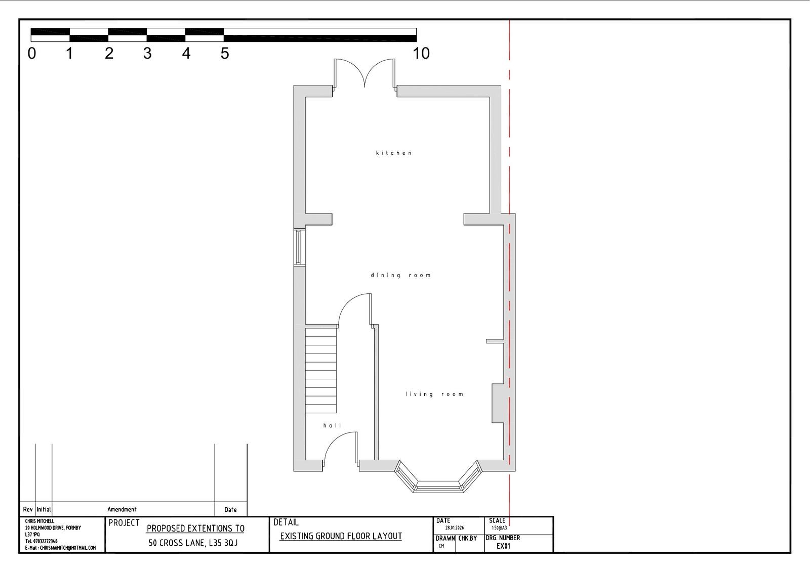
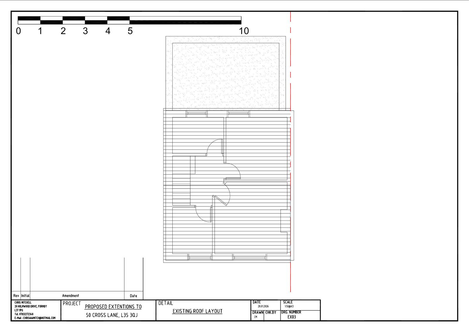
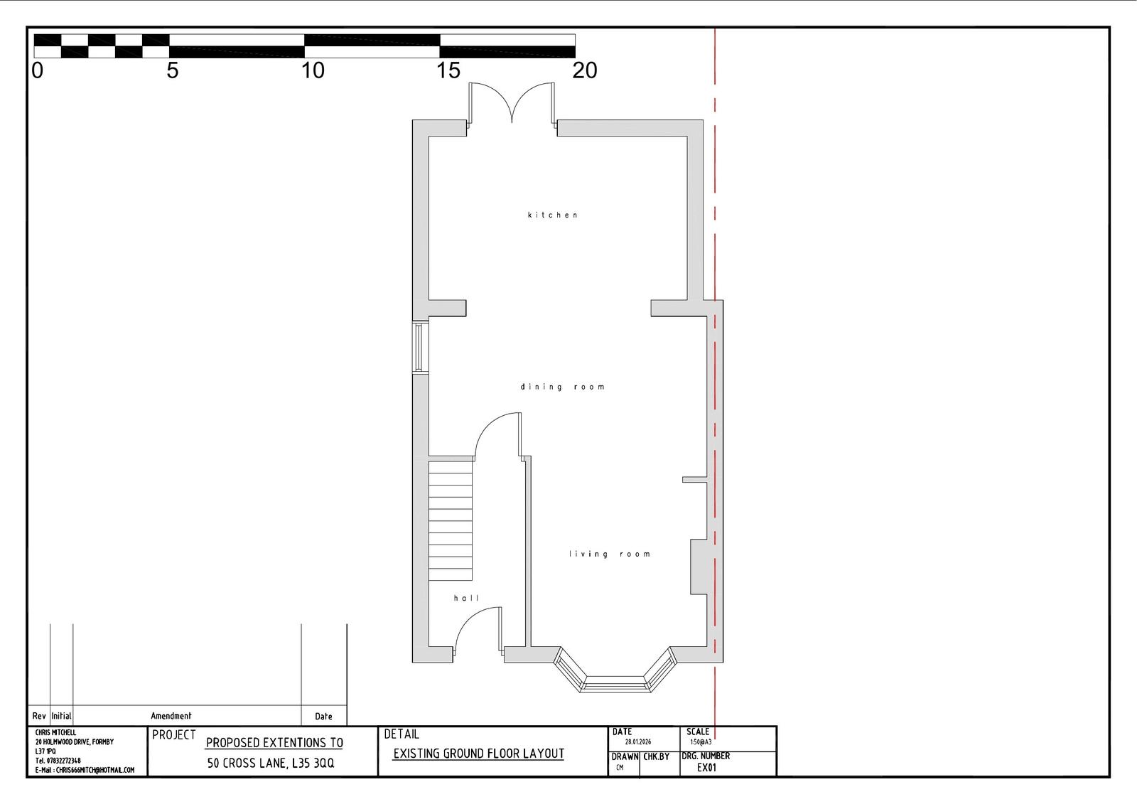
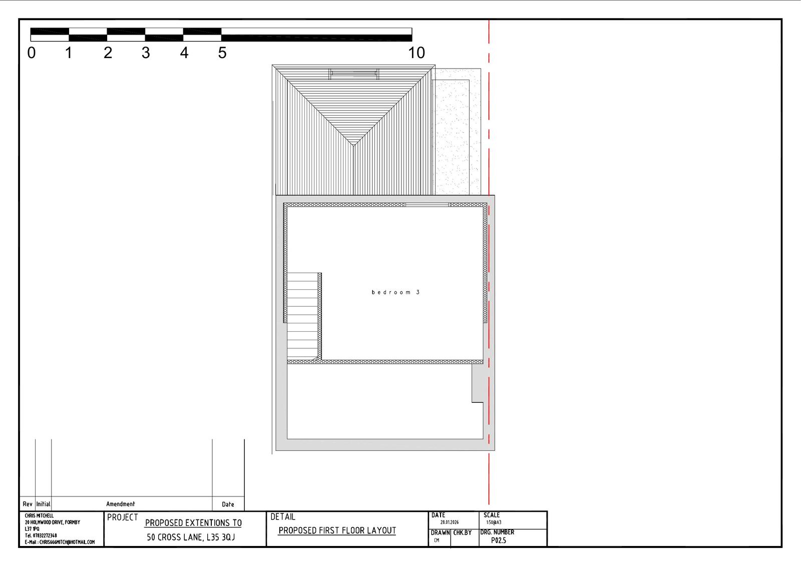
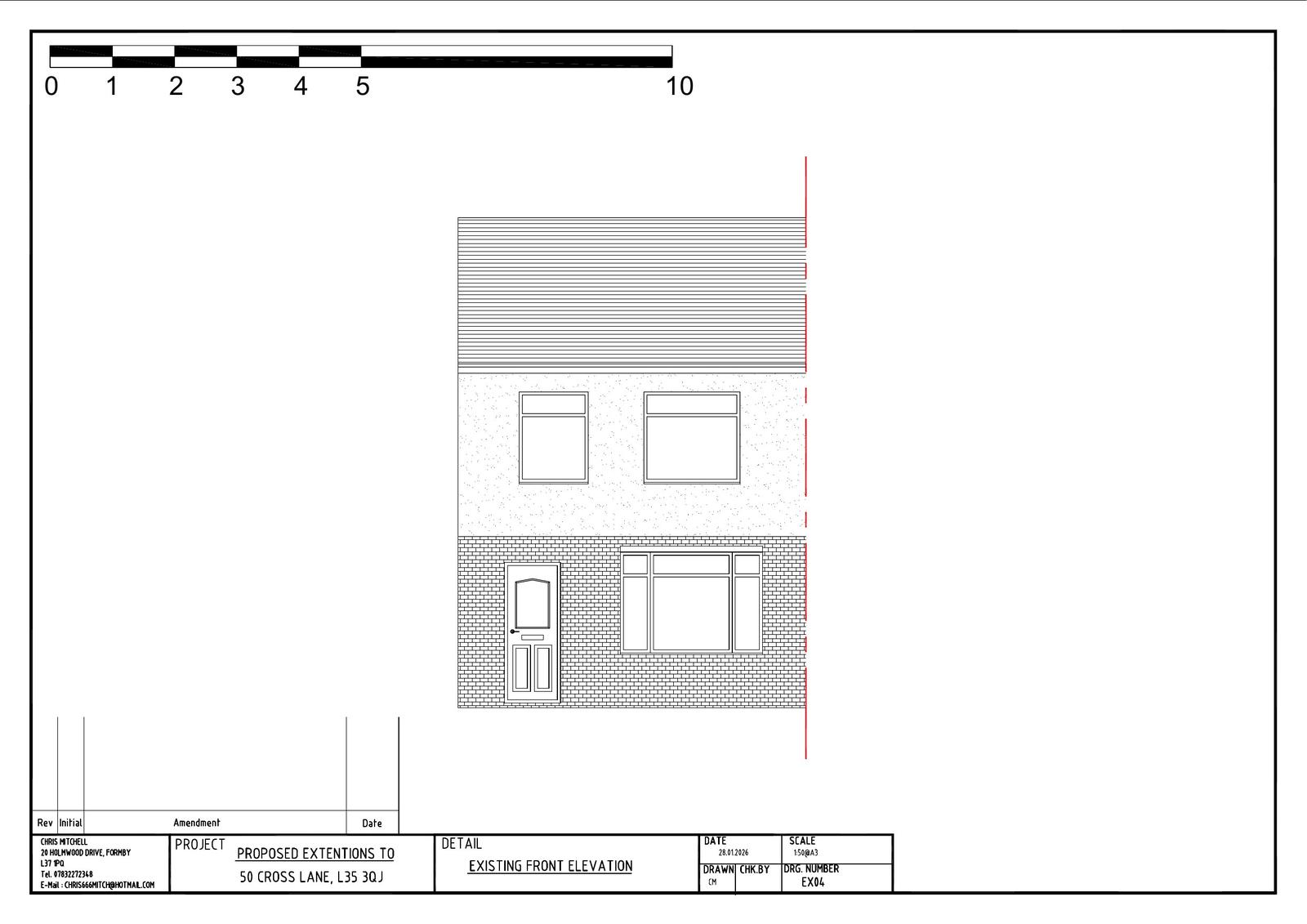
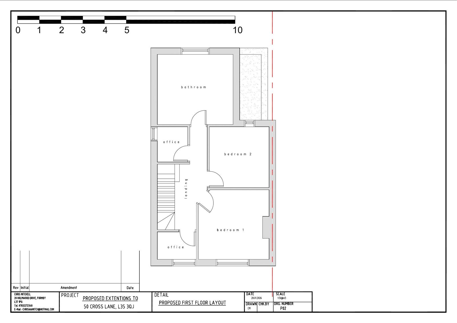
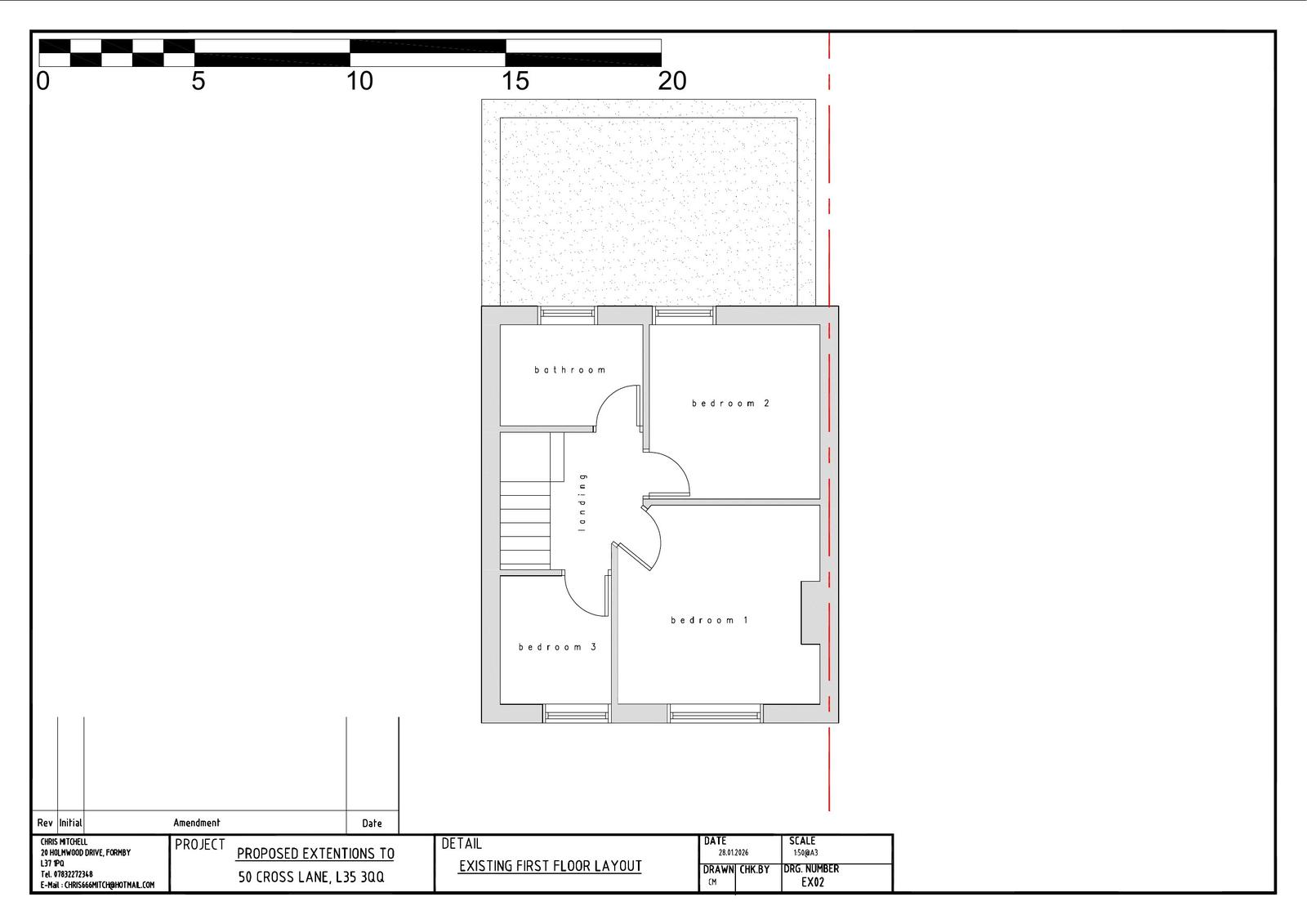
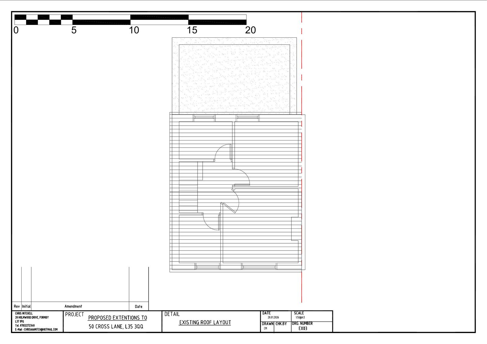
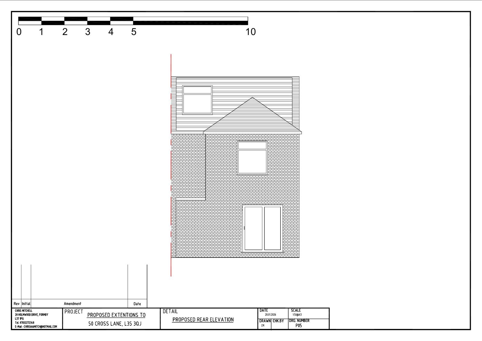
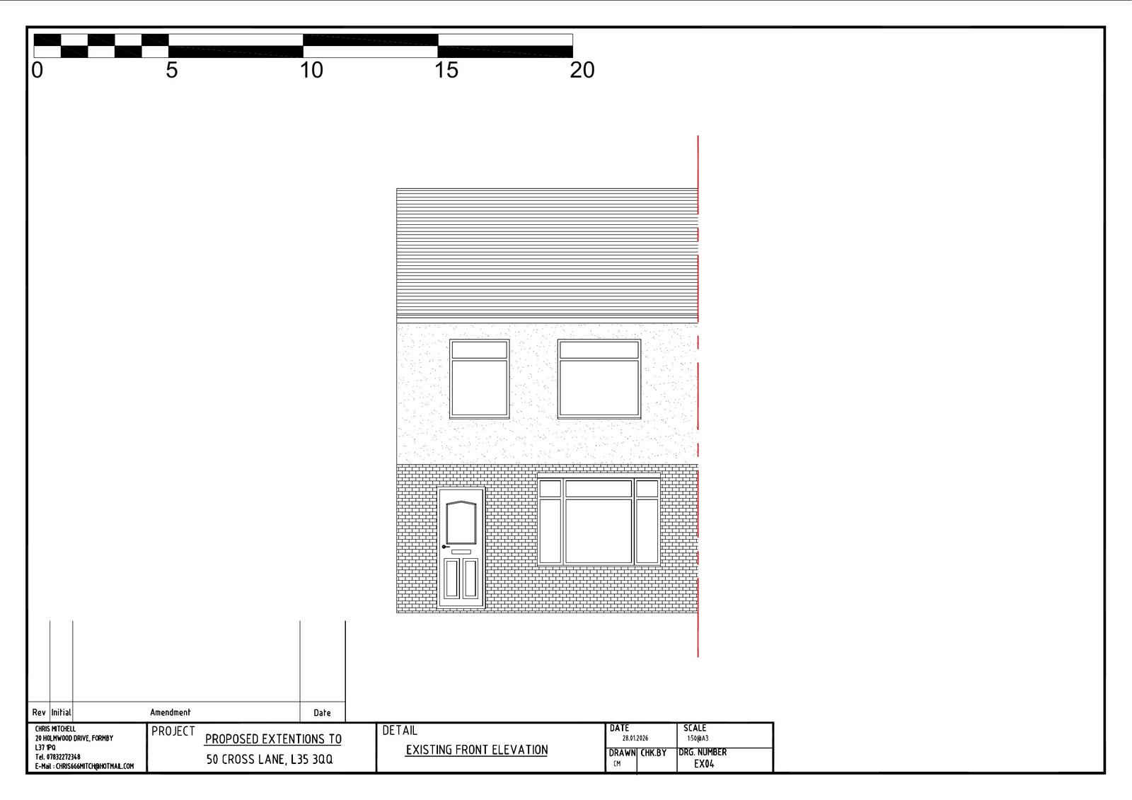
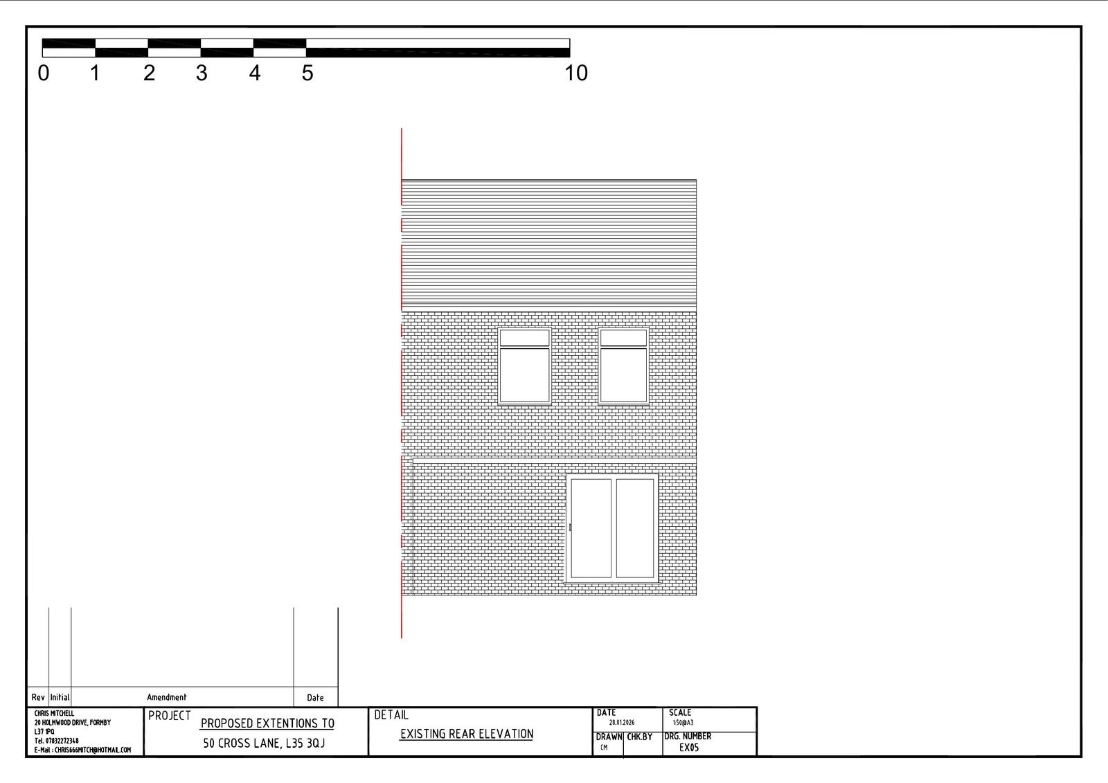
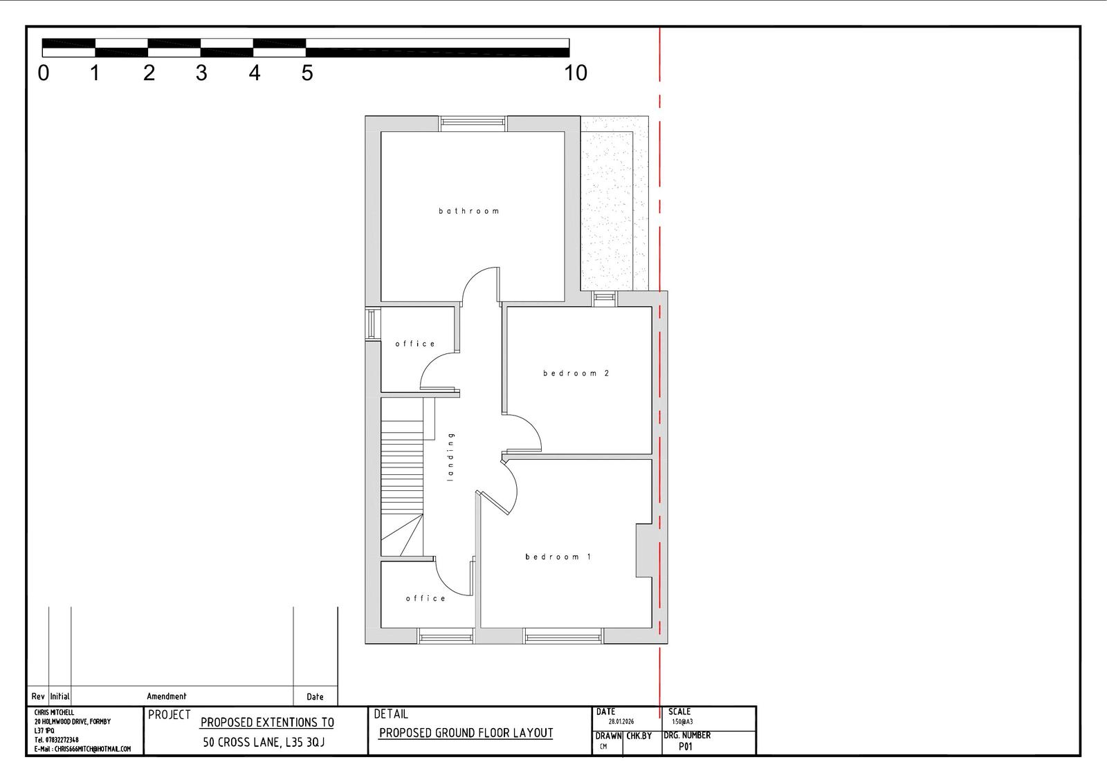
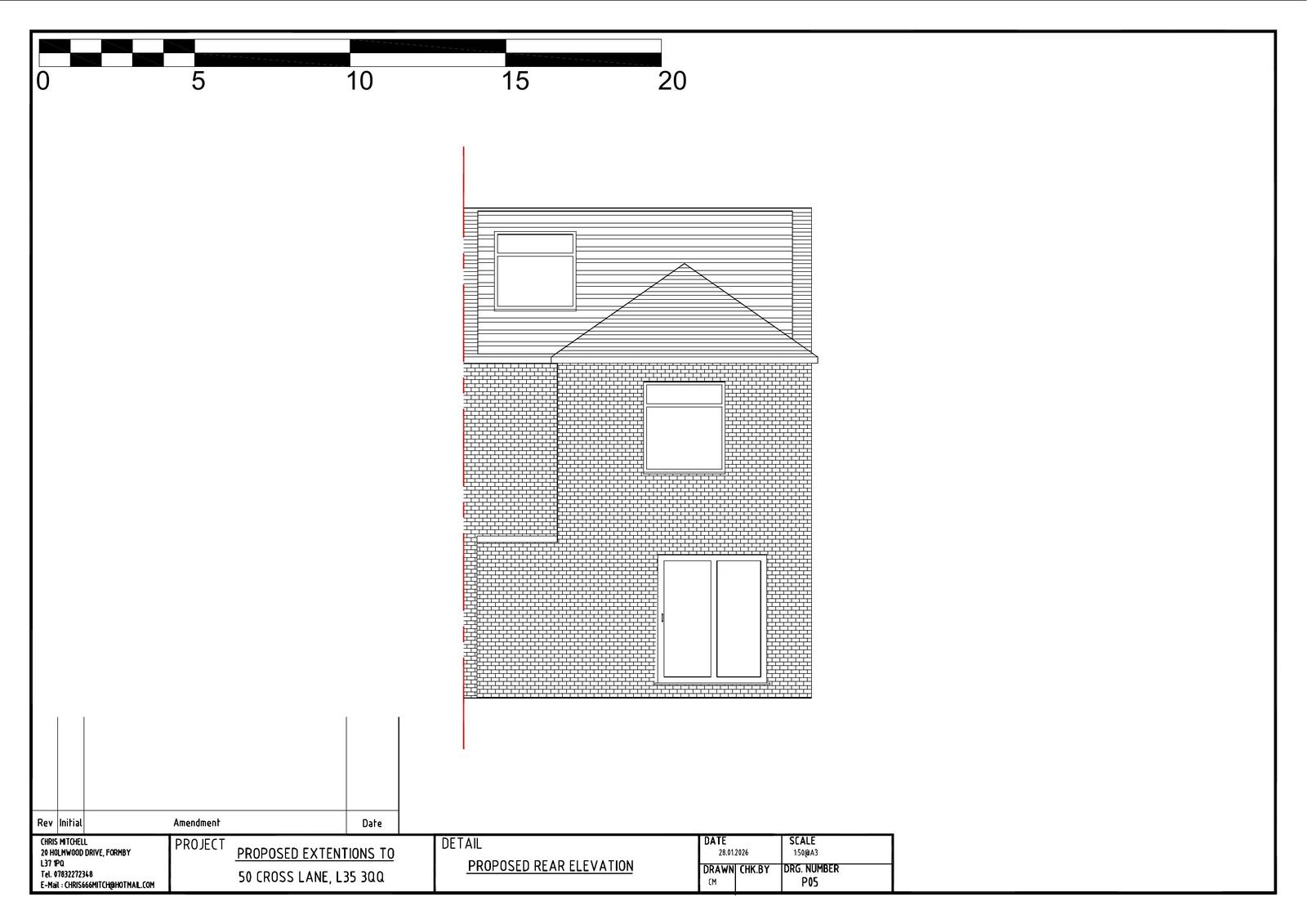
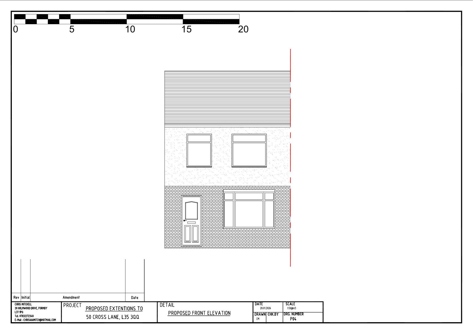
ERECTION OF A FIRST FLOOR REAR EXTENSION TOGETHER WITH LOFT CONVERSION AND REAR DORMER EXTENSION
Documents
Have your say
Your comment matters. Councils must consider every representation that raises material planning considerations.