← Knowsley Council

Status

Awaiting decision House extension
Received
Not recorded
New homes
0

Full proposal

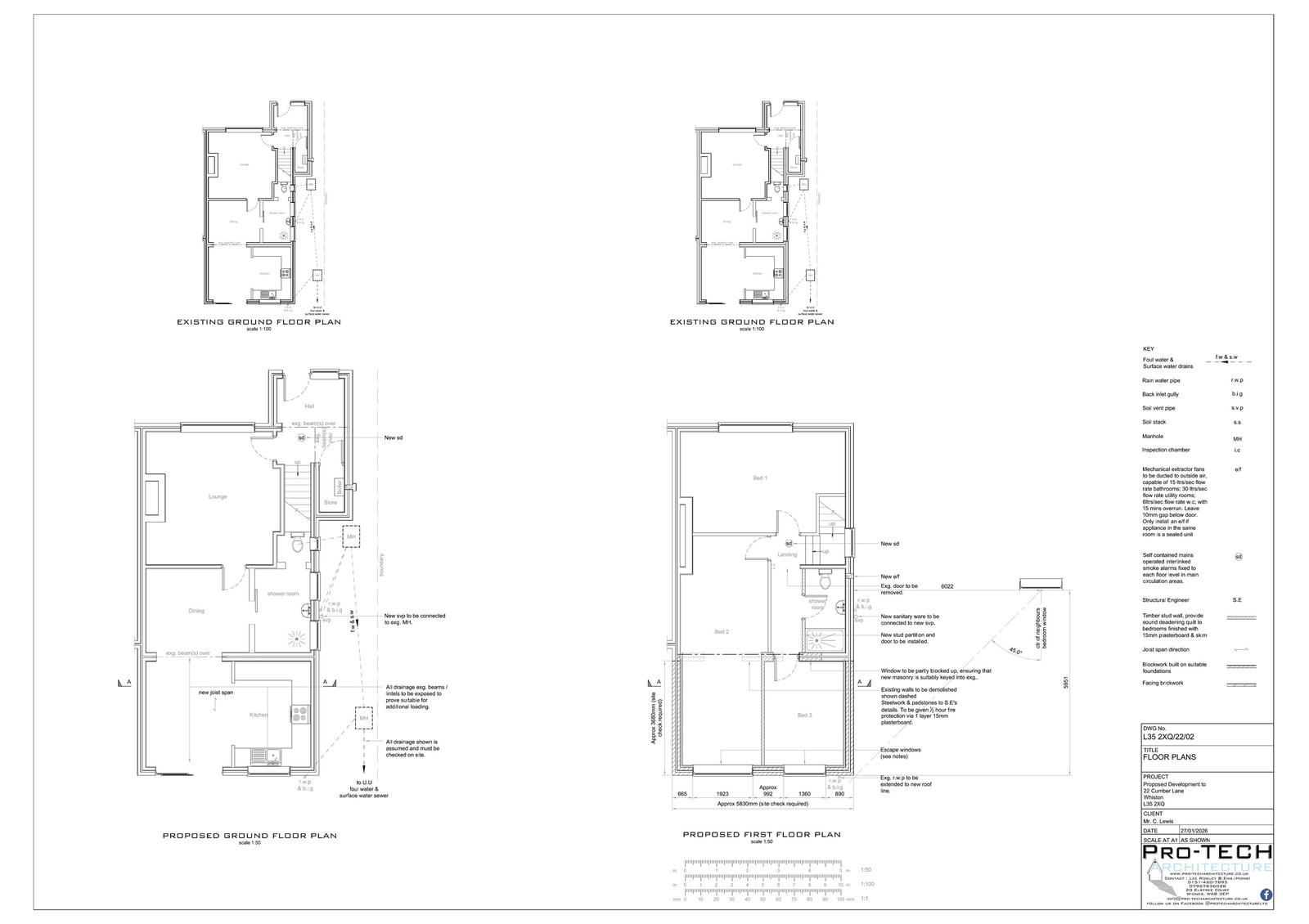
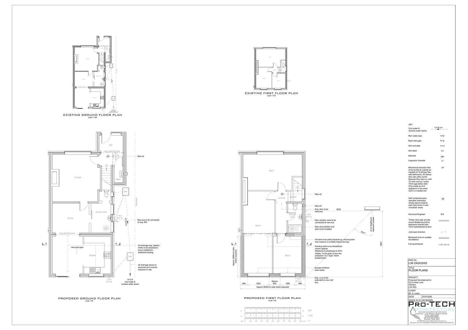
ERECTION OF A FIRST FLOOR REAR EXTENSION

Documents

Plans
Archived · Original link
Plans
Archived · Original link

Have your say

Your comment matters. Councils must consider every representation that raises material planning considerations.

Write a comment