← Knowsley Council

Status

Awaiting decision House extension
Received
Not recorded
New homes
0

Full proposal

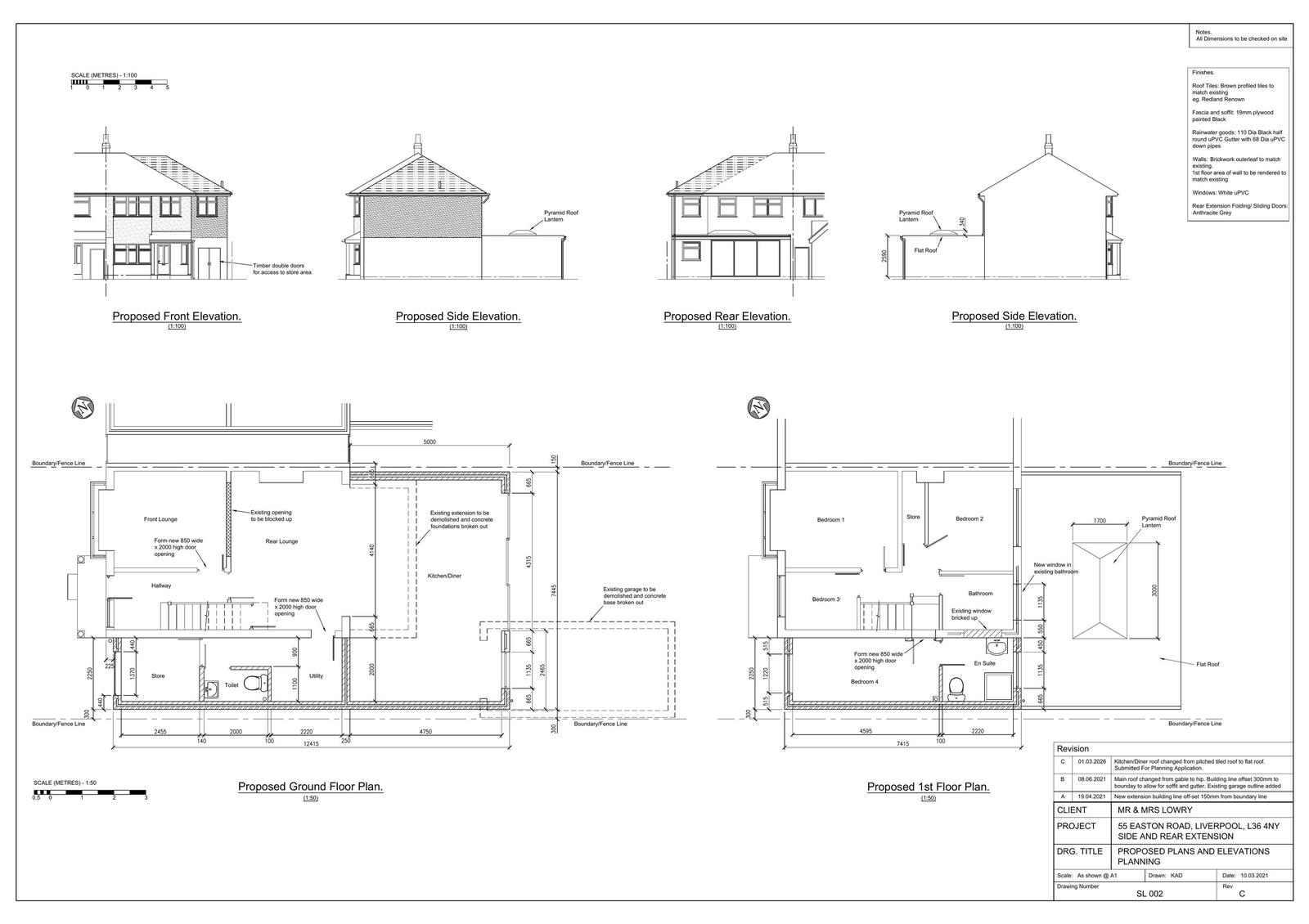
ERECTION OF A TWO STOREY SIDE EXTENSION AND A SINGLE STOREY REAR EXTENSION TOGETHER WITH THE DEMOLITION OF EXISTING DETACHED GARAGE.

Documents

Location Plan
Archived · Original link

Have your say

Your comment matters. Councils must consider every representation that raises material planning considerations.

Write a comment