← Knowsley Council

Status

Awaiting decision House extension
Received
Not recorded
New homes
0

Full proposal

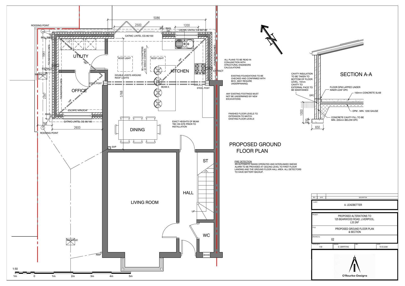
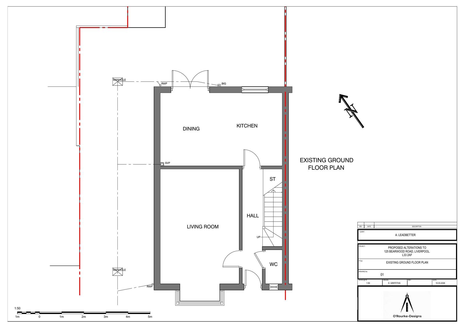
ERECTION OF A SINGLE STOREY SIDE AND REAR EXTENSION.

Have your say

Your comment matters. Councils must consider every representation that raises material planning considerations.

Write a comment