← Lake District National Park Authority

Status

Valid Commercial
Received
27 May 2025
New homes
3

Full proposal

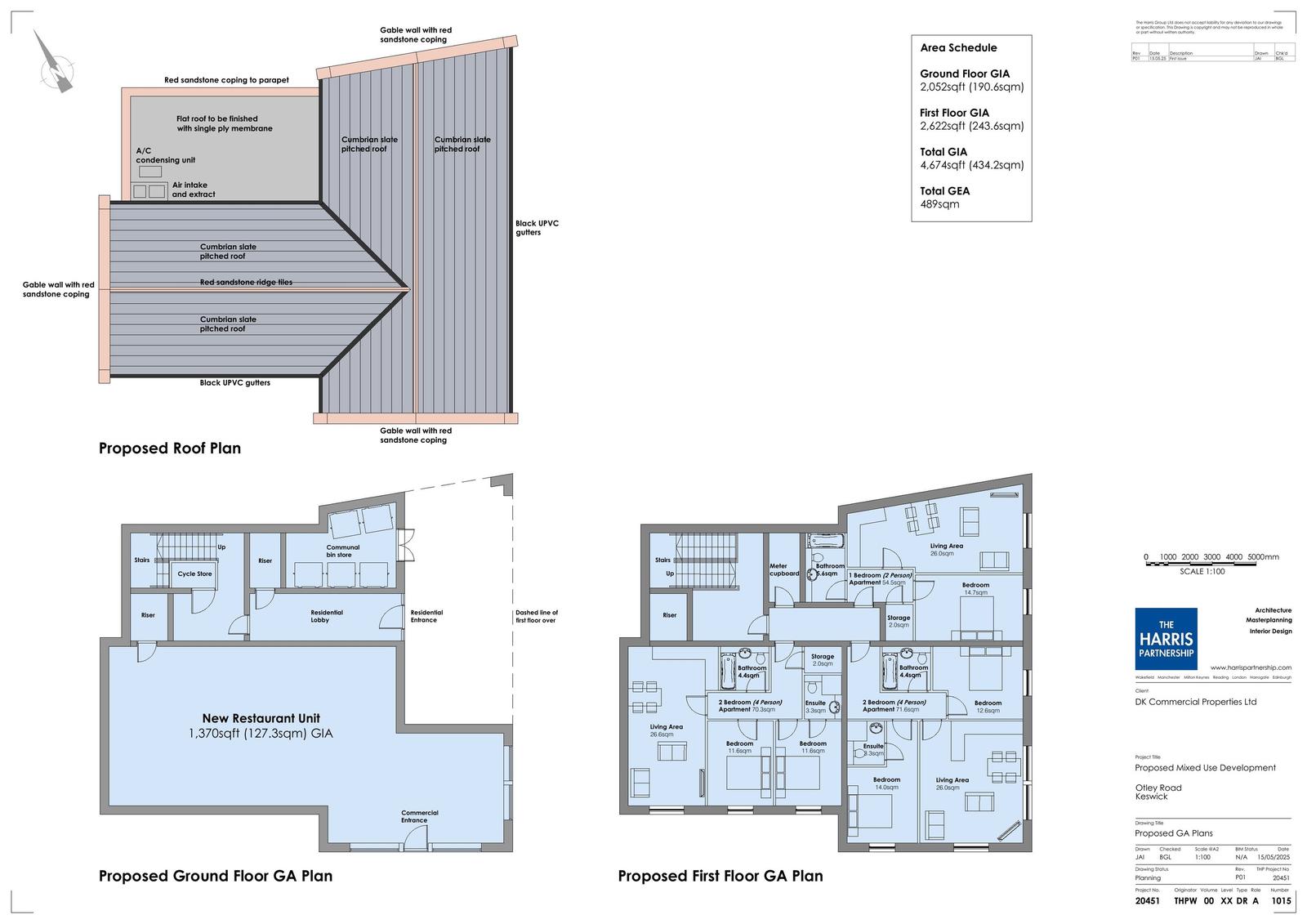
Two storey building providing ground floor restaurant (Use Class Eb)) or hot food takeaway (Sui Generis), with 3 local needs residential apartments (Use Class C3) at first floor, including associated access, parking, hard and soft landscaping and ancillary structures

Documents

Biodiversity Net Gain
Archived · Original link
Biodiversity Net Gain
Archived · Original link
Biodiversity Net Gain
Archived · Original link
Biodiversity Net Gain
Archived · Original link
Design & access statement
Archived · Original link
Consultee response
Archived · Original link
Plan
Archived · Original link
Other supporting information
Archived · Original link
Other correspondence
Archived · Original link
Other supporting information
Archived · Original link
Other supporting information
Archived · Original link
Other supporting information
Archived · Original link
Other supporting information
Archived · Original link
Superseded
Archived · Original link
Other supporting information
Archived · Original link
Other supporting information
Archived · Original link
Other supporting information
Archived · Original link
Plan
Archived · Original link
Other supporting information
Archived · Original link
Consultee response
Archived · Original link
Consultee response
Archived · Original link
Consultee response
Archived · Original link
Consultee response
Archived · Original link
Site location plan
Archived · Original link
Other correspondence
Archived · Original link
Other correspondence
Archived · Original link
Other supporting information
Archived · Original link

Have your say

Your comment matters. Councils must consider every representation that raises material planning considerations.

Write a comment