← Lake District National Park Authority

Status

Valid House extension
Received
08 Jan 2026
New homes
0

Full proposal

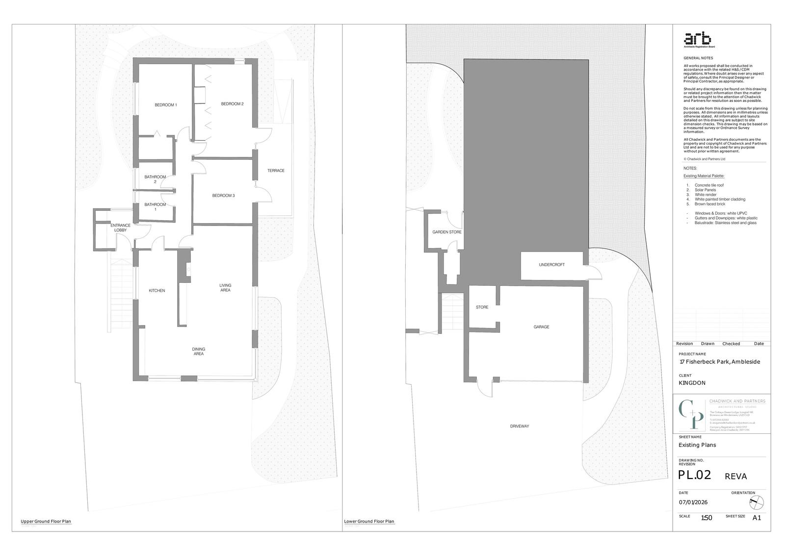
Refurbishment and extension of an existing dwelling

Documents

Application form
Archived · Original link
Other supporting information
Archived · Original link
Plan
Archived · Original link
Design & access statement
Archived · Original link
Site location plan
Archived · Original link
Plan
Archived · Original link
Consultee response
Archived · Original link
Plan
Archived · Original link

Have your say

Your comment matters. Councils must consider every representation that raises material planning considerations.

Write a comment