Application
25/00002/FUL
Lambeth · IDOX
Status
Awaiting decision
Received
02 Jan 2025
New dwellings
n/a
What you can do
Take Action
Make your voice heard. Authorities need to hear from people who support new homes.
Full Proposal
Erection of 1x 2-storey semi-detached dwelling.
Detail pages
- View live detail on council site
- No archived detail page available.
Documents
APPLICATION FORM - WITHOUT PERSONAL DATA
Application Form
Not downloaded
· Council link
BIODIVERSITY GAIN PLAN
Supporting Docs
Not downloaded
· Council link
BIODIVERSITY METRIC CALCULATION TOOL
Supporting Docs
Not downloaded
· Council link
BLOCK PLAN OF THE SITE
Plans
Not downloaded
· Council link
COMMUNITY INFRASTRUCTURE LEVY - COMPLETED FORM
Supporting Docs
Not downloaded
· Council link
DAYLIGHT OR SUNLIGHT ASSESSMENT
Supporting Docs
Not downloaded
· Council link
DESIGN AND ACCESS STATEMENT
Design & Access Statement
Not downloaded
· Council link
ENERGY & SUSTAINABILITY STATEMENT REPORT
Documents - Revised
Not downloaded
· Council link
EXISTING 3D VIEW 1
Plans
Not downloaded
· Council link
EXISTING 3D VIEW 2
Plans
Not downloaded
· Council link
EXISTING EAST ELEVATION
Plans
Not downloaded
· Council link
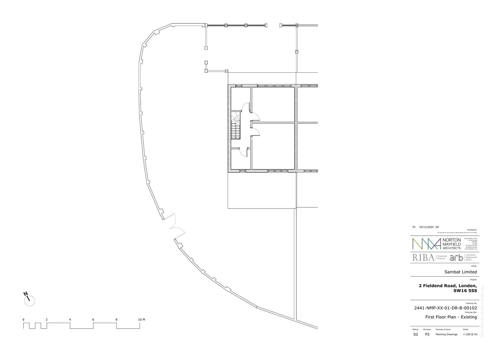
EXISTING FIRST FLOOR PLAN
Plans
Not downloaded
· Council link
EXISTING GROUND FLOOR PLAN
Plans
Not downloaded
· Council link
EXISTING LOFT FLOOR PLAN
Plans
Not downloaded
· Council link
EXISTING NORTH ELEVATION
Plans
Not downloaded
· Council link
EXISTING ROOF PLAN
Plans
Not downloaded
· Council link
EXISTING SECTION BB
Plans
Not downloaded
· Council link
EXISTING SOUTH ELEVATION
Plans
Not downloaded
· Council link
EXISTING WEST ELEVATION
Plans
Not downloaded
· Council link
ISSUE SHEET
Documents - Revised
Not downloaded
· Council link
PART L CALCULATOR
Documents - Revised
Not downloaded
· Council link
PLANNING STATEMENT
Planning Statement
Not downloaded
· Council link
PROPOSED 3D VIEW 1
Plans - Revised
Not downloaded
· Council link
PROPOSED 3D VIEW 1
Plans - Superseded
Not downloaded
· Council link
PROPOSED 3D VIEWS
Plans - Revised
Not downloaded
· Council link
PROPOSED 3D VIEWS
Plans - Superseded
Not downloaded
· Council link
PROPOSED EAST ELEVATION
Plans - Superseded
Not downloaded
· Council link
PROPOSED EAST ELEVATION
Plans - Revised
Not downloaded
· Council link
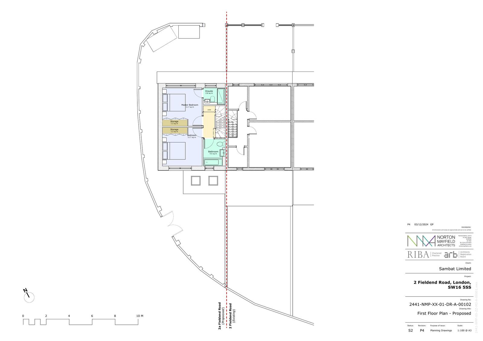
PROPOSED FIRST FLOOR PLAN
Plans
Not downloaded
· Council link
PROPOSED GROUND FLOOR PLAN
Plans - Revised
Not downloaded
· Council link
PROPOSED GROUND FLOOR PLAN
Plans - Superseded
Not downloaded
· Council link
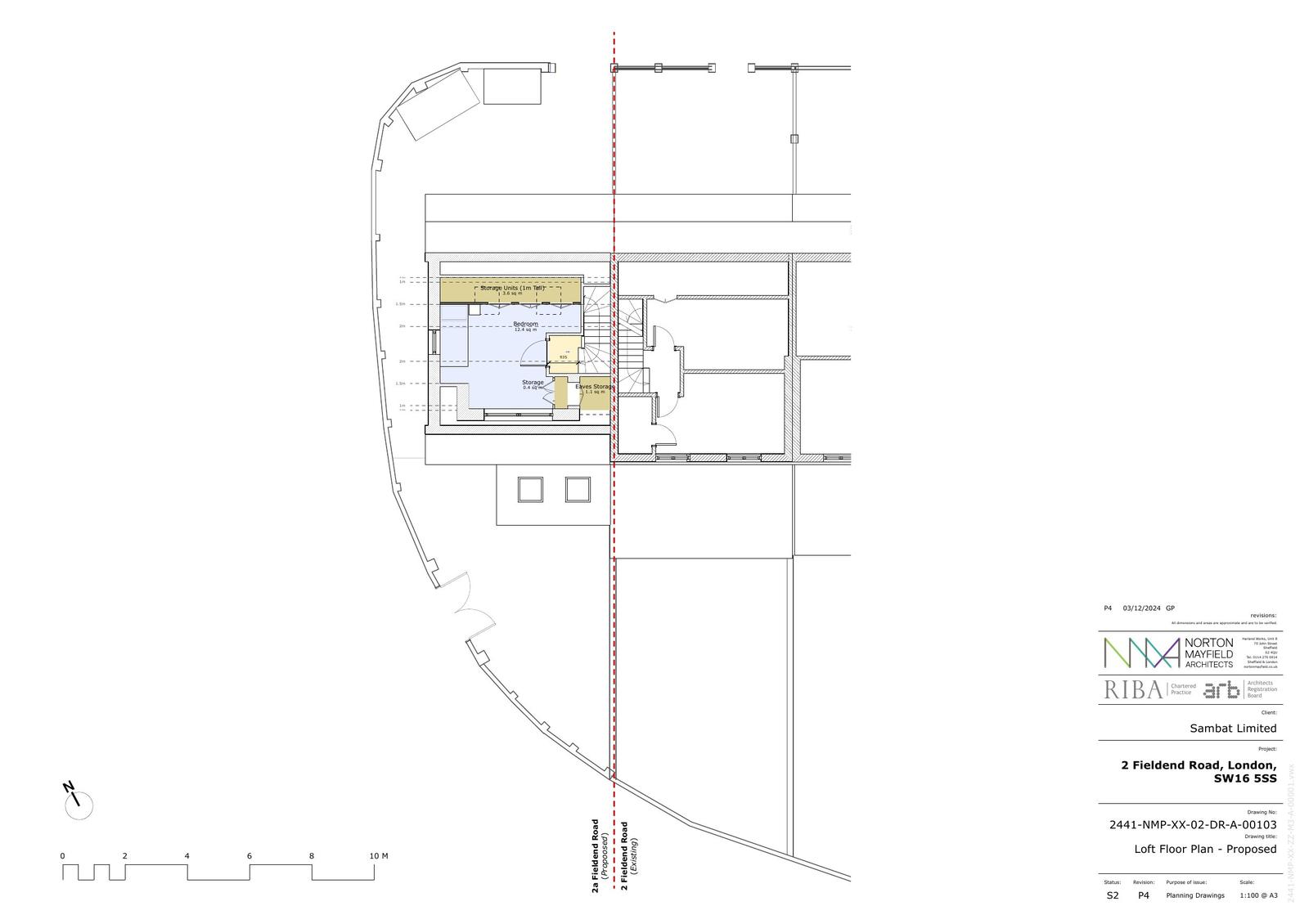
PROPOSED LOFT FLOOR PLAN
Plans
Not downloaded
· Council link
PROPOSED NORTH ELEVATION
Plans - Revised
Not downloaded
· Council link
PROPOSED NORTH ELEVATION
Plans - Superseded
Not downloaded
· Council link
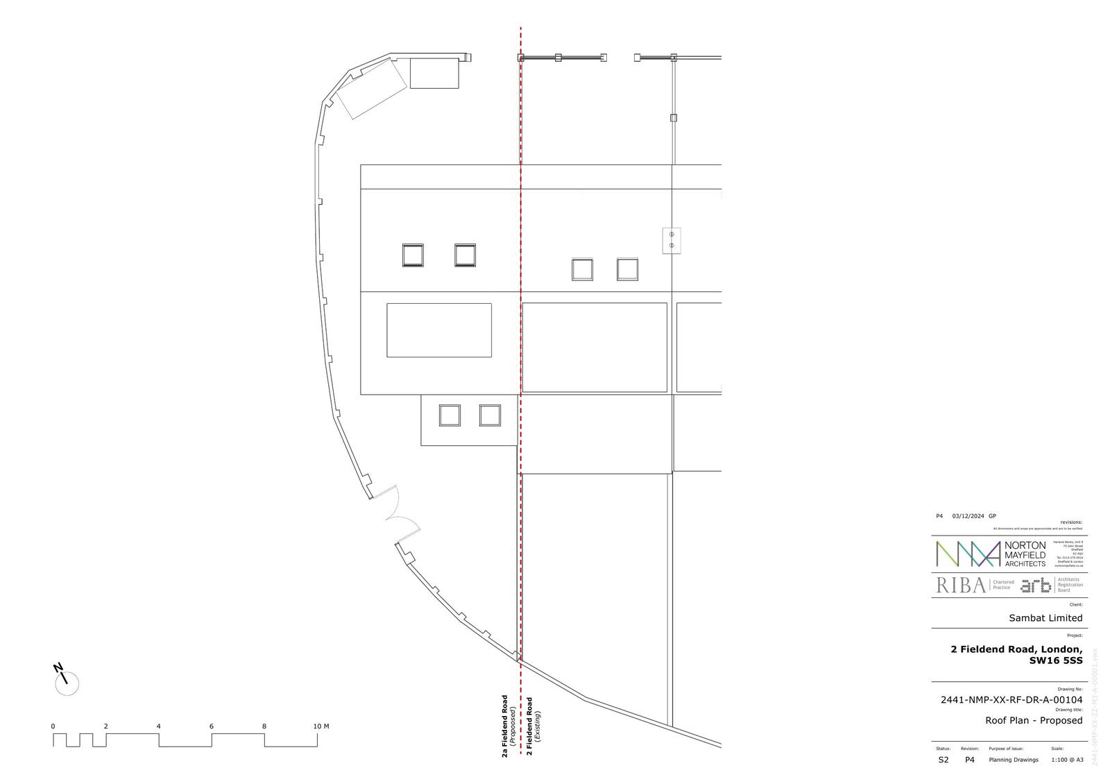
PROPOSED ROOF PLAN
Plans
Not downloaded
· Council link
PROPOSED SECTION AA
Plans
Not downloaded
· Council link
PROPOSED SECTION BB
Plans
Not downloaded
· Council link
PROPOSED SOUTH ELEVATION
Plans - Superseded
Not downloaded
· Council link
PROPOSED SOUTH ELEVATION
Plans - Revised
Not downloaded
· Council link
PROPOSED WEST ELEVATIONS
Plans - Superseded
Not downloaded
· Council link
PROPOSED WEST ELEVATIONS
Plans - Revised
Not downloaded
· Council link
SAP CALCULATIONS
Documents - Revised
Not downloaded
· Council link
SAP CALCULATIONS
Documents - Revised
Not downloaded
· Council link
SITE/BLOCK PLAN - EXISTING
Plans
Not downloaded
· Council link
THE LOCATION PLAN
OS Map
Not downloaded
· Council link
TRANSPORT ASSESSMENT
Transport Statement
Not downloaded
· Council link
UGF CALCULATOR
Documents - Revised
Not downloaded
· Council link
UGF PLAN
Documents - Revised
Not downloaded
· Council link