← Lambeth

Status

Awaiting decision Change of use
Received
19 Jan 2025
New homes
2

Full proposal

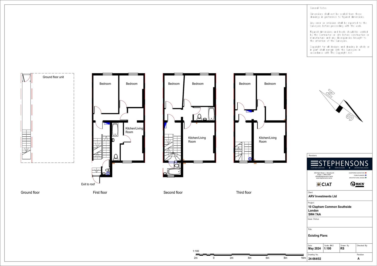
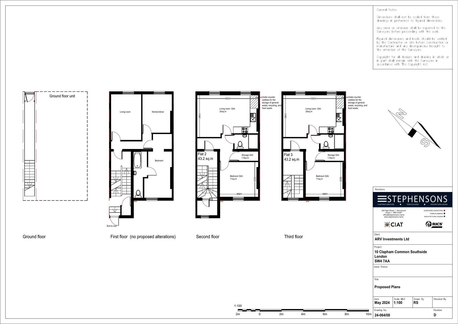
Conversion of the second and third floors units to provide 2 x 1 bed residential units.

Have your say

Your comment matters. Councils must consider every representation that raises material planning considerations.

Write a comment