← Back to Lambeth

Status

Awaiting decision Change of use
Received 17 Apr 2025
New dwellings 5

What you can do

Take Action

Make your voice heard. Authorities need to hear from people who support new homes.

Summary

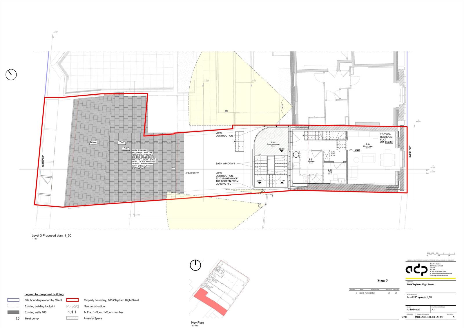
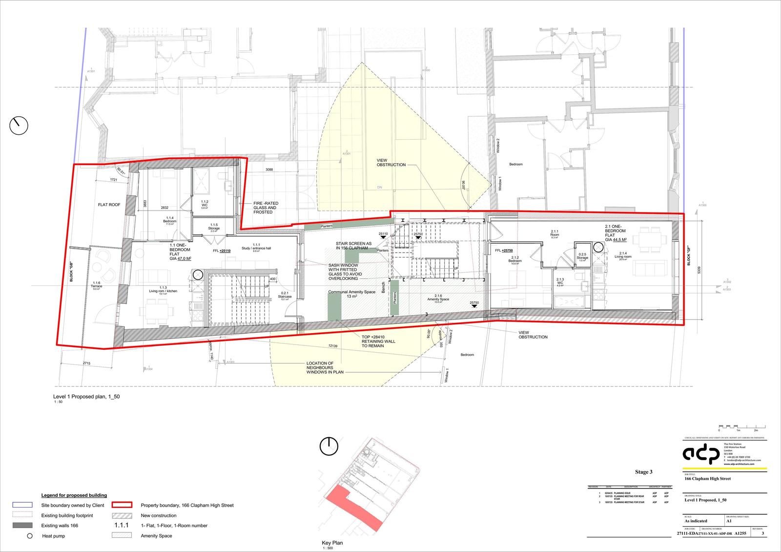
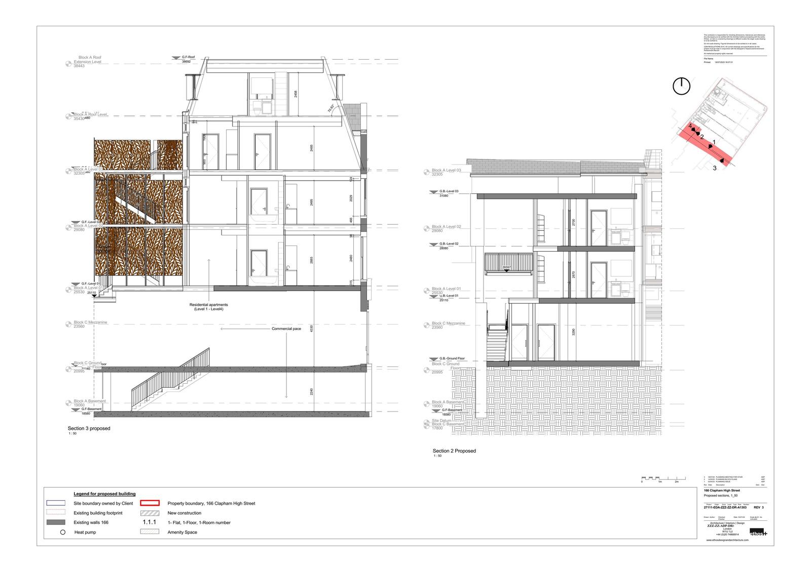
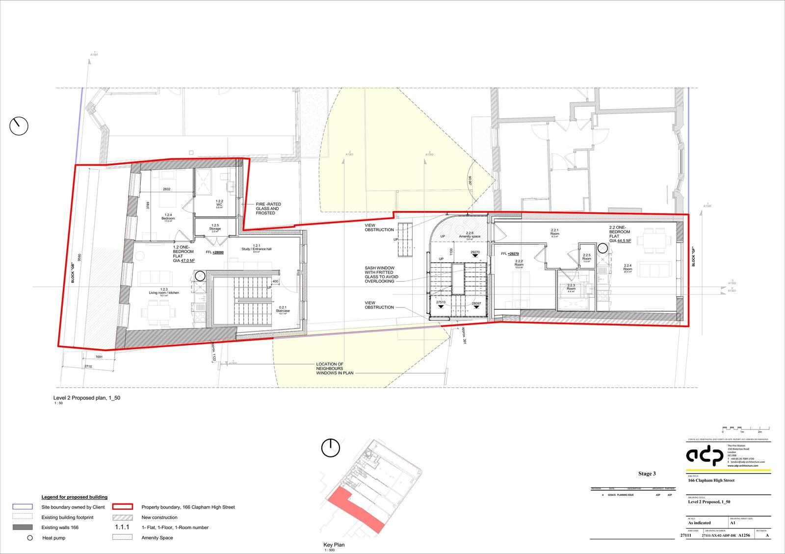
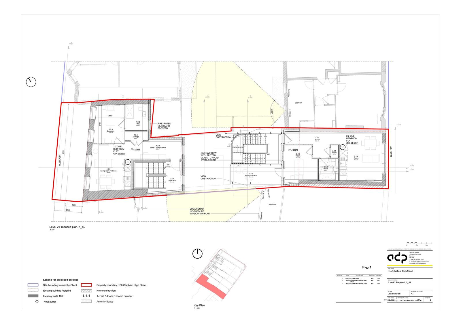
Alter and extend commercial building to create five residential units on upper floors with associated works.

Full Proposal

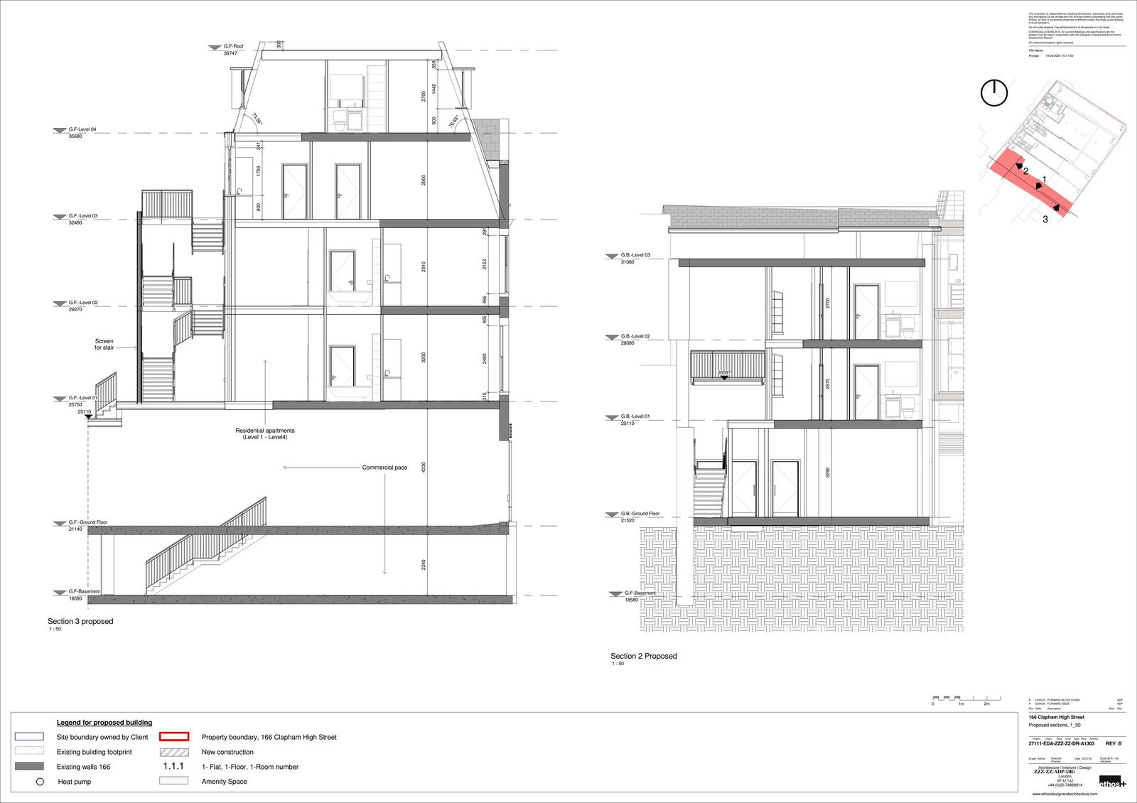
Alterations to the commercial unit (Use Class E), involving infill extension at ground and basement levels; the reconfiguration of commercial floorspace (Use Class E) and ancillary residential floorspace (Use Class C3) at ground floor level. Demolition of the courtyard infill at first floor level and creation of 5no. residential units (Use Class C3) on the upper floors, with rear extensions at 1st, 2nd and 3rd floor levels and mansard roof extension to front block, including external staircase with integrated terraces and rear extension at 1st and 2nd floor levels to rear block; along with other associated works.

Detail pages

Documents

+ HERITAGE STATEMENT - PART 1
Design & Access Statement
Not downloaded · Council link
+ HERITAGE STATEMENT - PART 2
Design & Access Statement
Not downloaded · Council link
+ HERITAGE STATEMENT - PART 3
Design & Access Statement
Not downloaded · Council link
+ HERITAGE STATEMENT - PART 4
Design & Access Statement
Not downloaded · Council link
+ HERITAGE STATEMENT - PART 5
Design & Access Statement
Not downloaded · Council link
APPLICATION FORM - WITHOUT PERSONAL DATA
Application Form
Not downloaded · Council link
COMMUNITY INFRASTRUCTURE LEVY - COMPLETED FORM
Supporting Docs
Not downloaded · Council link
COVERING LETTER
Supporting Docs
Not downloaded · Council link
DAS ADDENDUM - COURTYARD STAIR DESIGN DOC
Documents - Revised
Not downloaded · Council link
DAYLIGHT /SUNLIGHT REPORT (NEIGHBOURING PROPERTIES)
Supporting Docs
Not downloaded · Council link
DEMOLITION FLOOR PLANS
Plans
Not downloaded · Council link
DRAWING AND SCHEDULE ISSUE SHEET
Supporting Docs
Not downloaded · Council link
ENERGY AND SUSTAINABILITY STATEMENT
Supporting Docs
Not downloaded · Council link
EXISTING BLOCK PLAN
Plans
Not downloaded · Council link
EXISTING ELEVATIONS - BLOCK GB
Plans
Not downloaded · Council link
EXISTING ELEVATIONS - BLOCK GF
Plans
Not downloaded · Council link
EXISTING FLOORPLANS
Plans
Not downloaded · Council link
EXISTING LEVEL -1
Plans
Not downloaded · Council link
EXISTING LEVEL 0
Plans
Not downloaded · Council link
EXISTING LEVEL 1
Plans
Not downloaded · Council link
EXISTING LEVEL 2
Plans
Not downloaded · Council link
EXISTING LEVEL 3
Plans
Not downloaded · Council link
EXISTING LEVEL 4
Plans
Not downloaded · Council link
EXISTING SECTION
Plans
Not downloaded · Council link
EXISTING SECTIONS
Plans
Not downloaded · Council link
INCL. HERITAGE STATEMENT
Planning Statement
Not downloaded · Council link
OUTLINE CONSTRUCTION LOGISTICS PLAN
Supporting Docs
Not downloaded · Council link
Plans - Revised
Plans - Revised
Not downloaded · Council link
Plans - Revised
Plans - Revised
Not downloaded · Council link
Plans - Revised
Plans - Revised
Not downloaded · Council link
Plans - Revised
Plans - Revised
Not downloaded · Council link
Plans - Revised
Plans - Revised
Not downloaded · Council link
Plans - Revised
Plans - Revised
Not downloaded · Council link
Plans - Revised
Plans - Revised
Not downloaded · Council link
Plans - Revised
Plans - Revised
Not downloaded · Council link
PROPOSED BLOCK PLAN
Plans
Not downloaded · Council link
PROPOSED ELEVATIONS - BLOCK GB
Plans
Not downloaded · Council link
PROPOSED ELEVATIONS - BLOCK GF
Plans
Not downloaded · Council link
PROPOSED FIRE STRATEGY PLANS
Plans
Not downloaded · Council link
PROPOSED FLOORPLANS
Plans
Not downloaded · Council link
PROPOSED LEVEL -1
Plans
Not downloaded · Council link
PROPOSED LEVEL 0
Plans
Not downloaded · Council link
PROPOSED LEVEL 1
Plans
Not downloaded · Council link
PROPOSED LEVEL 2
Plans
Not downloaded · Council link
PROPOSED LEVEL 3
Plans
Not downloaded · Council link
PROPOSED LEVEL 4
Plans
Not downloaded · Council link
PROPOSED LEVEL 5
Plans
Not downloaded · Council link
PROPOSED SECTION
Plans
Not downloaded · Council link
PROPOSED SECTIONS
Plans
Not downloaded · Council link
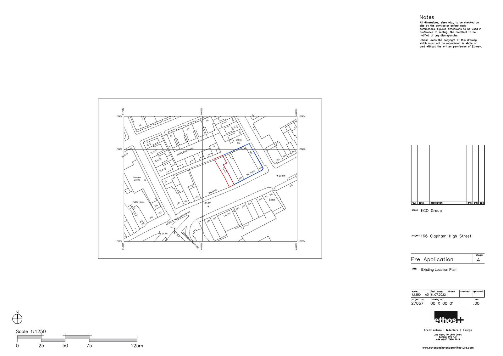
THE LOCATION PLAN
OS Map
Not downloaded · Council link
TRANSPORT ASSESSMENT
Transport Statement
Not downloaded · Council link