← Lambeth

Status

Awaiting decision New housing
Received
28 Apr 2025
New homes
18

Summary

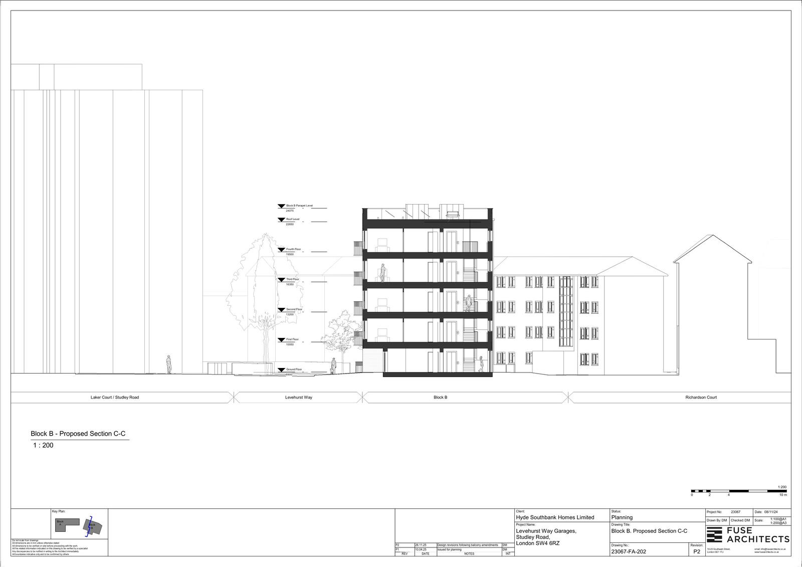
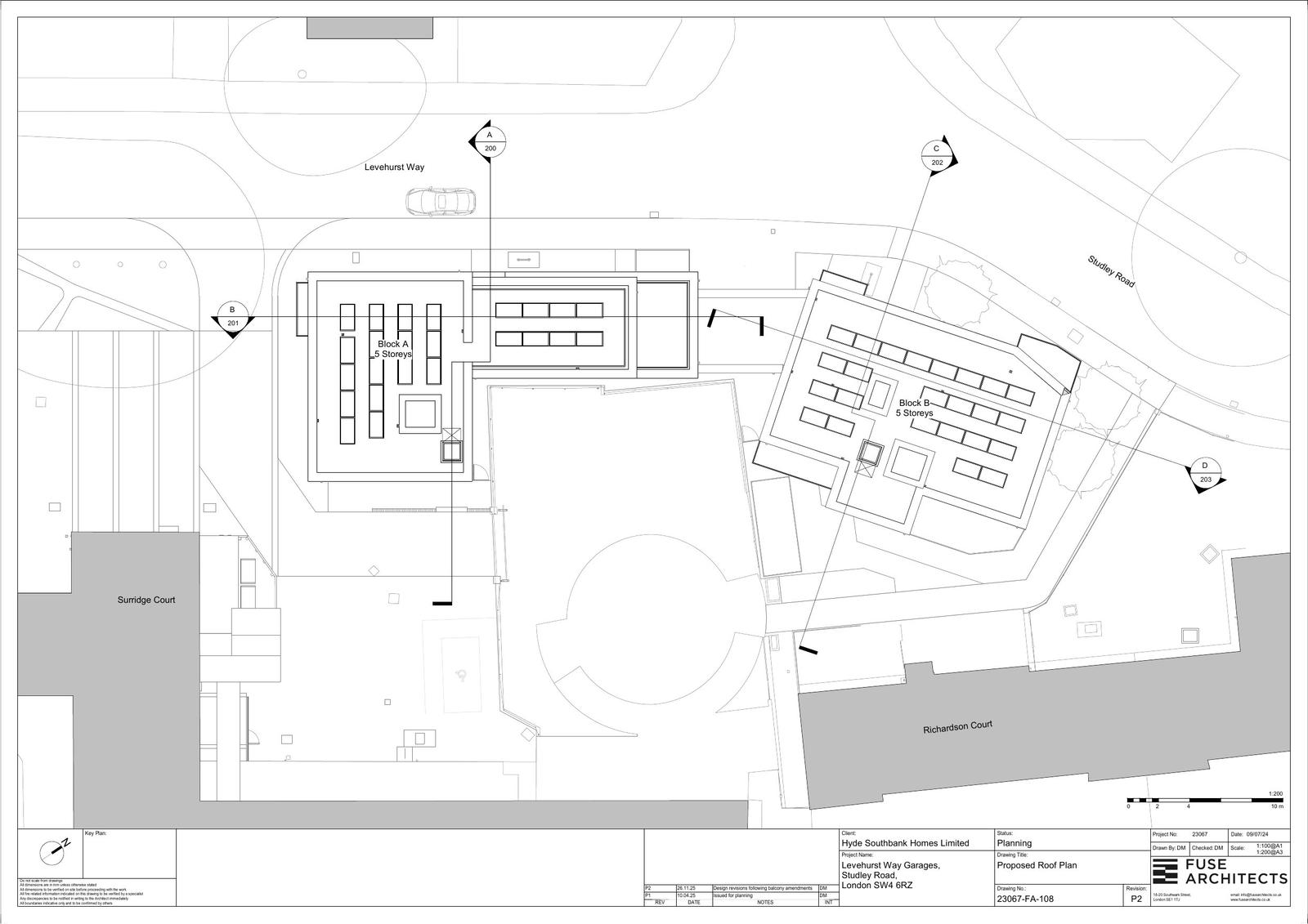
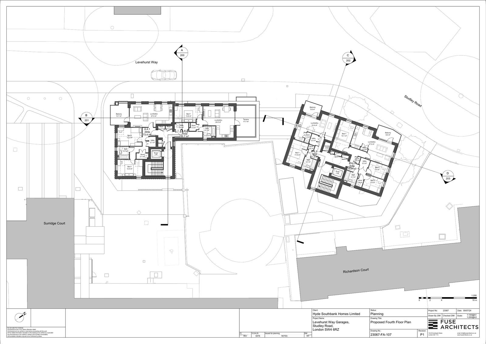
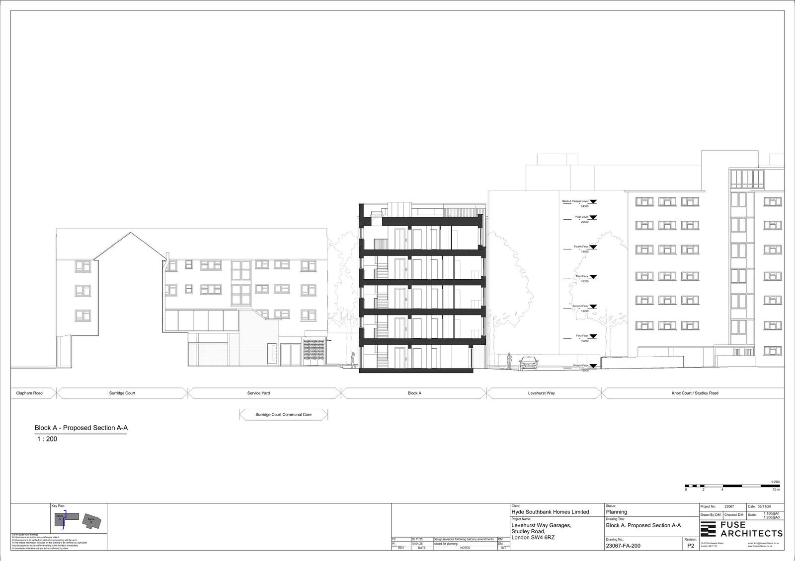
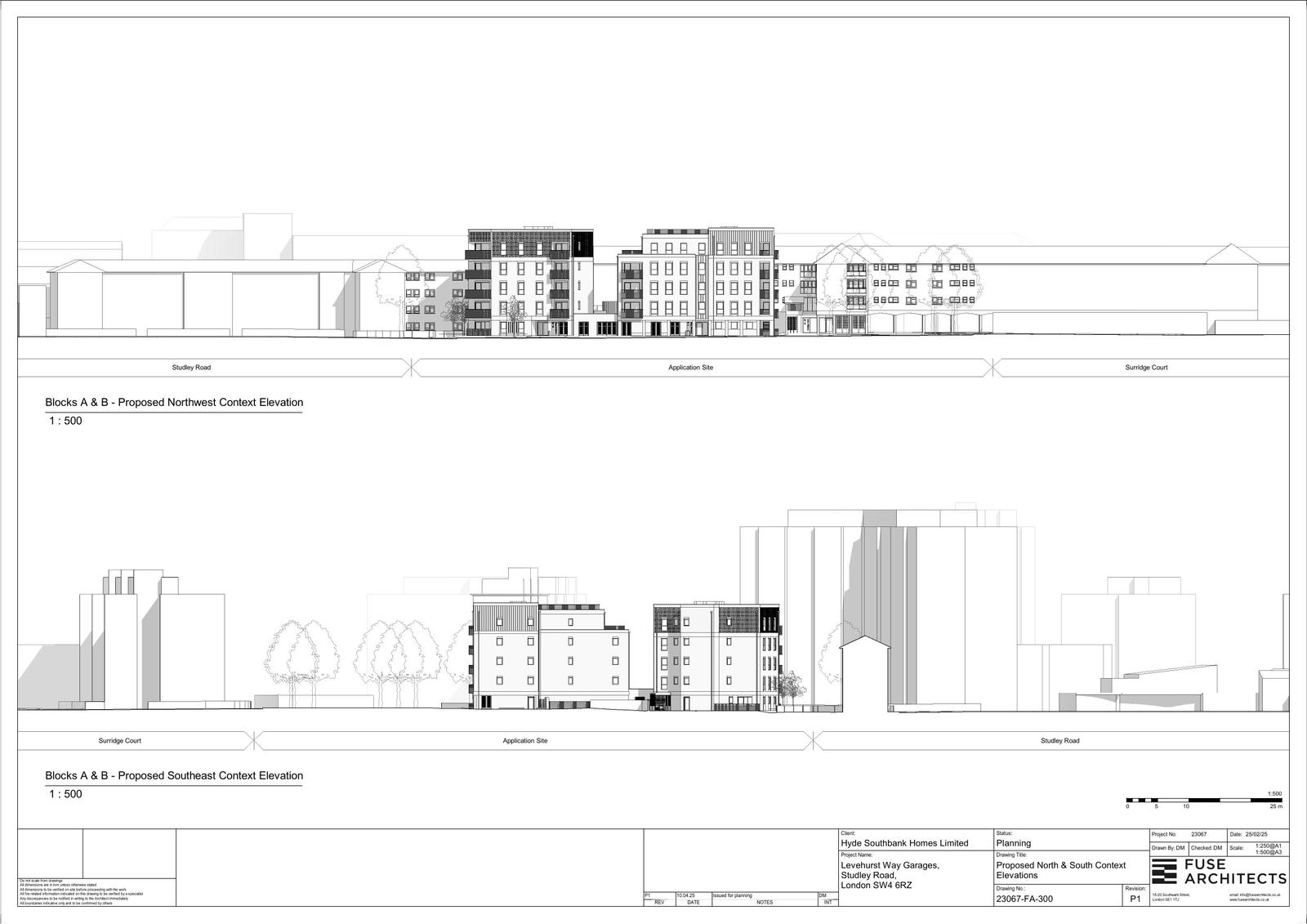
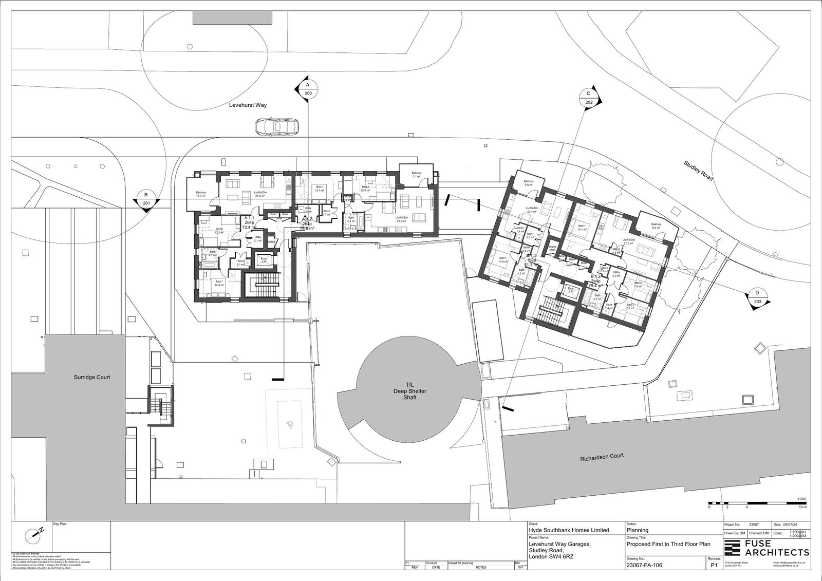
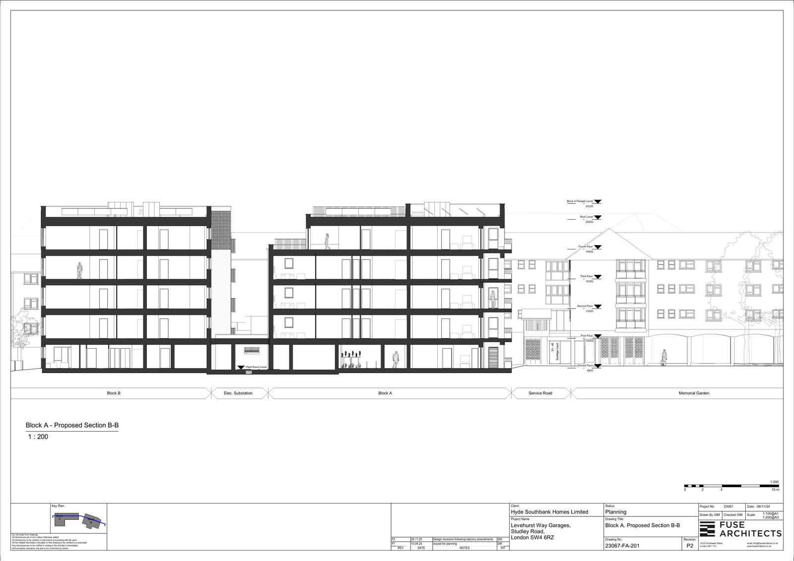
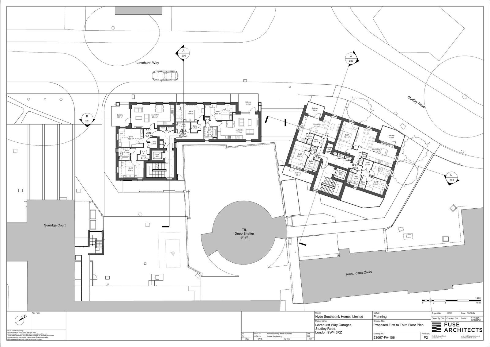
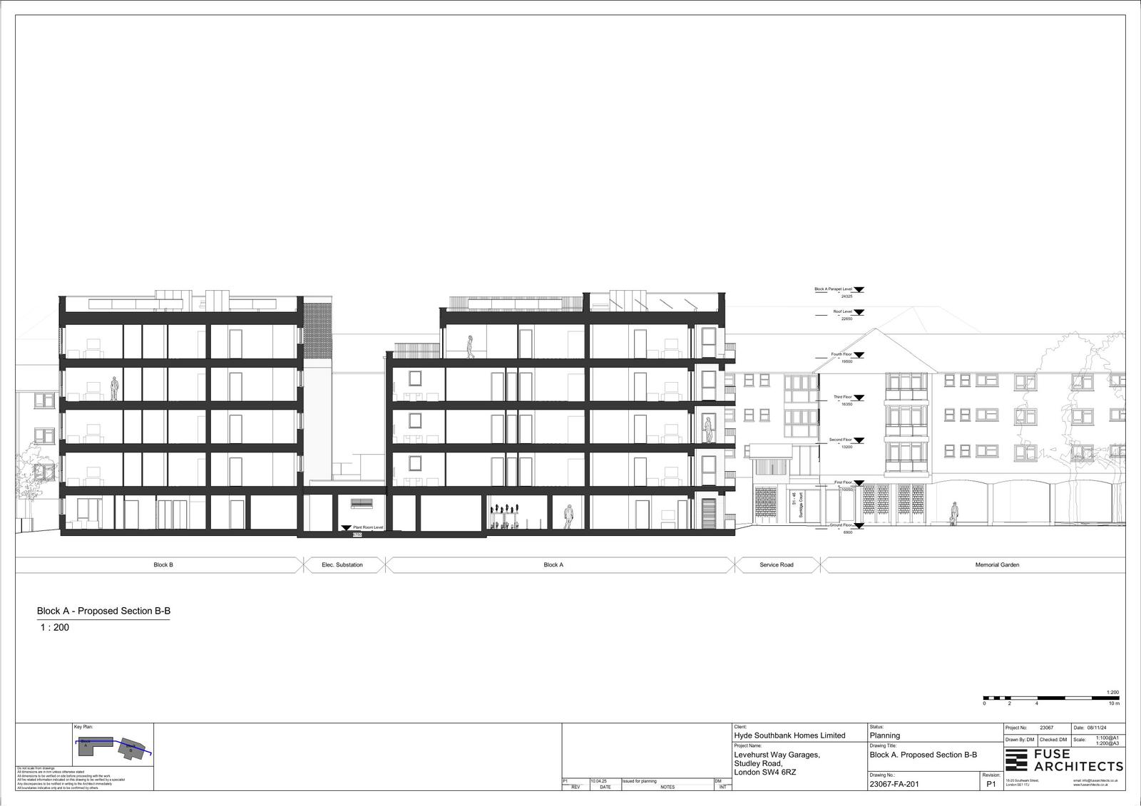
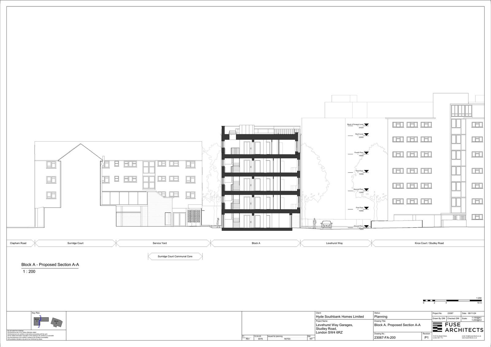
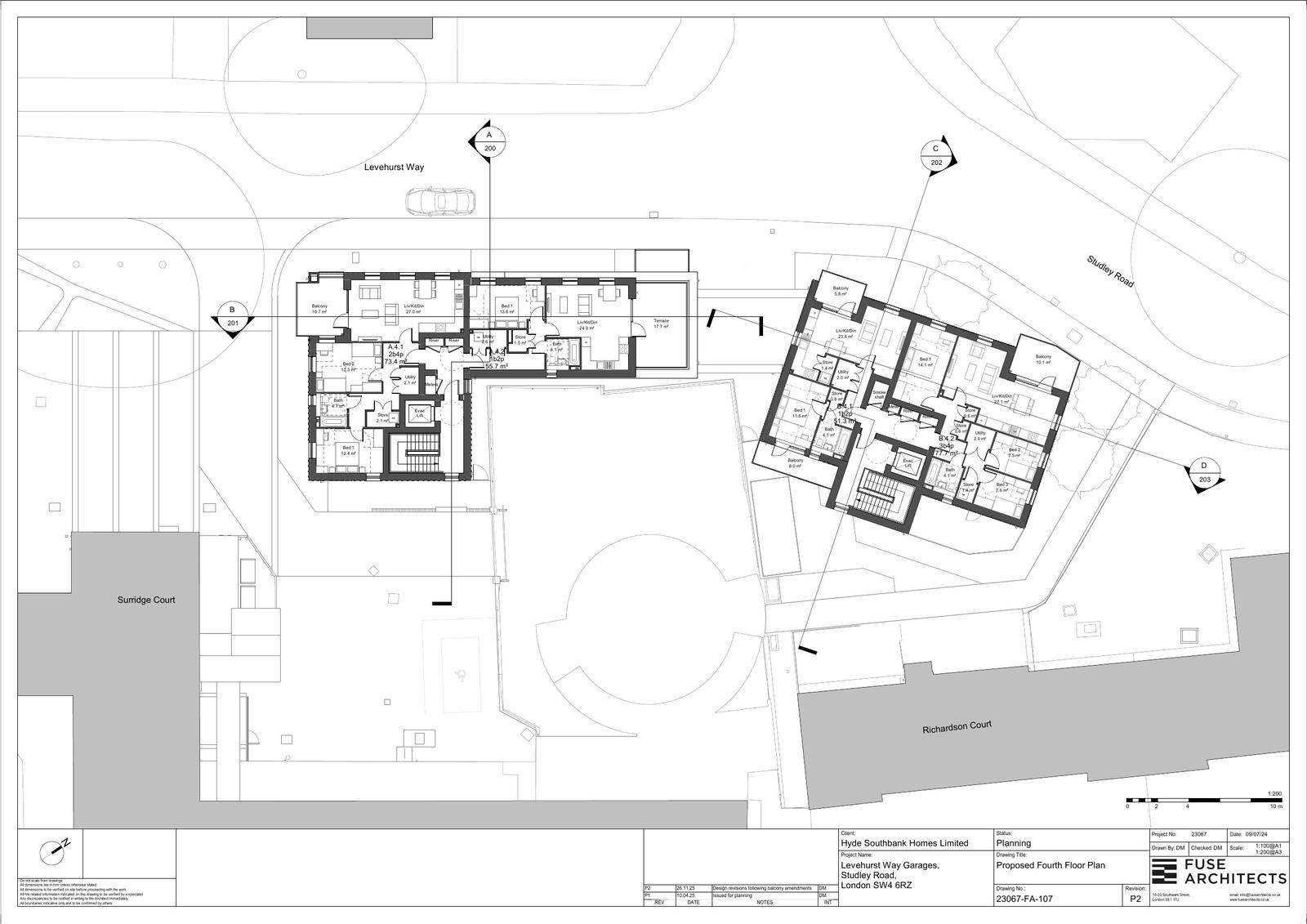
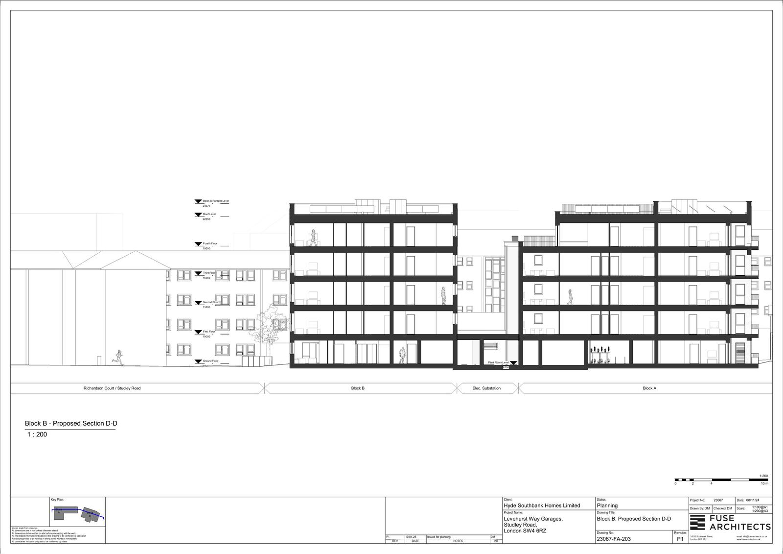
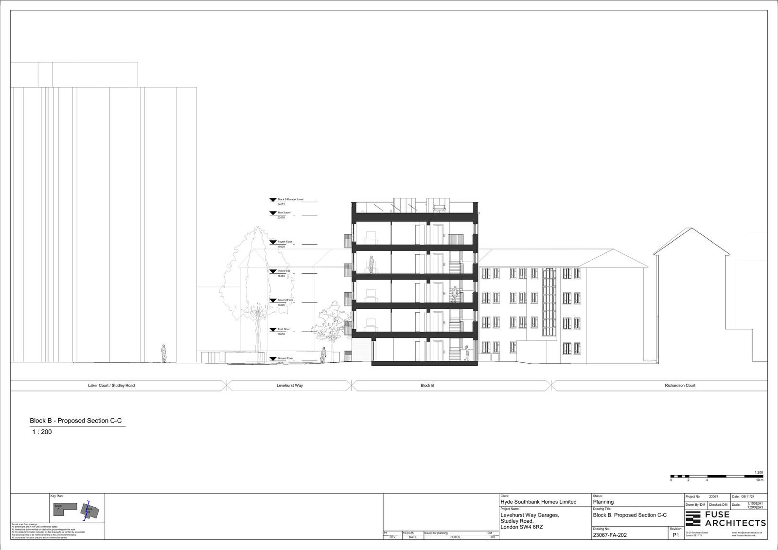
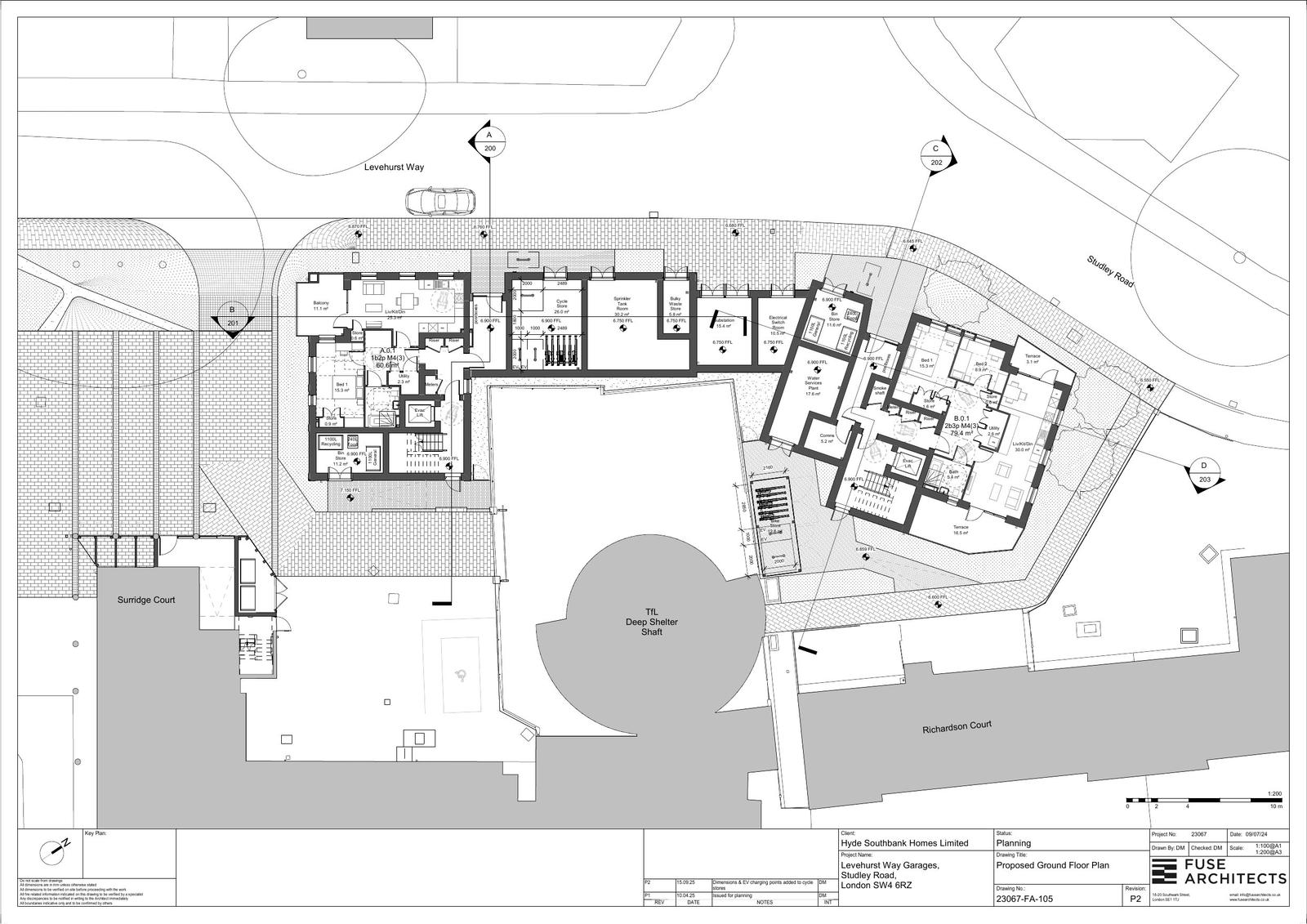
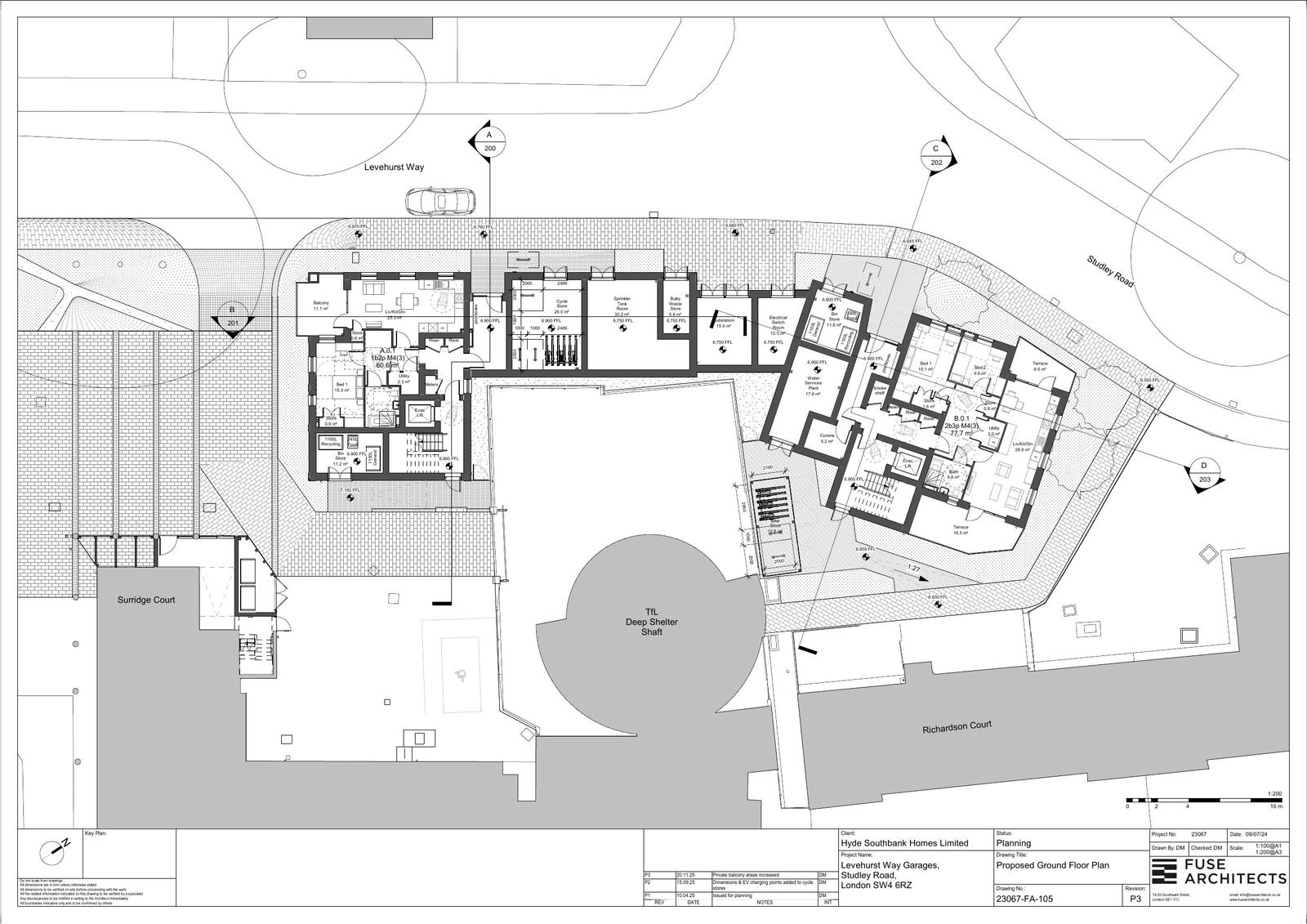
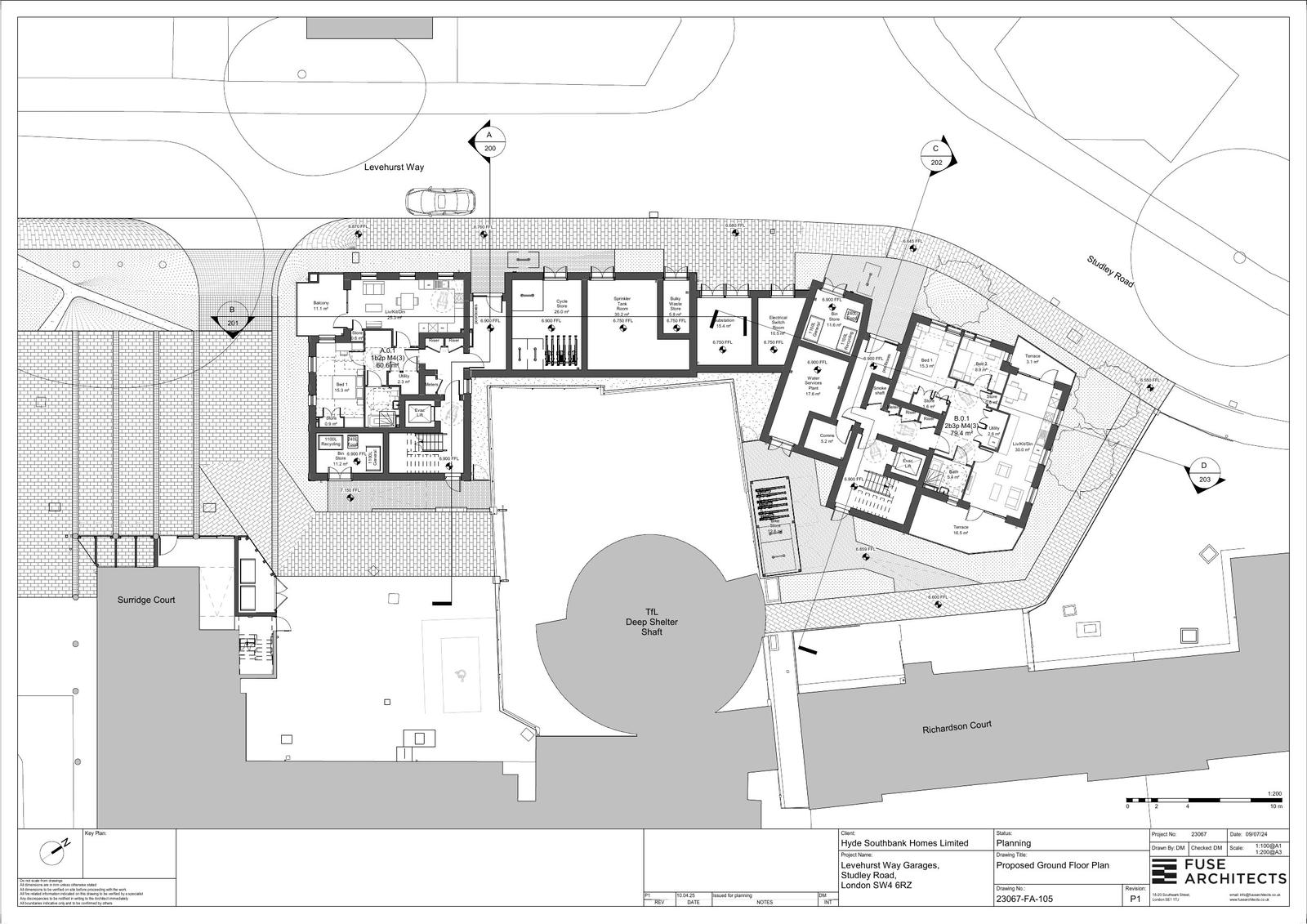
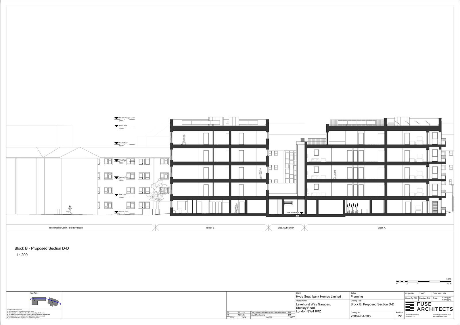
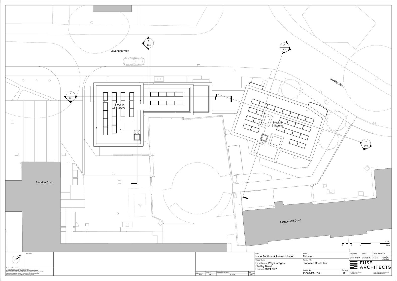
Two five-storey buildings providing 18 flats with cycle parking, landscaping; garages demolished.

Full proposal

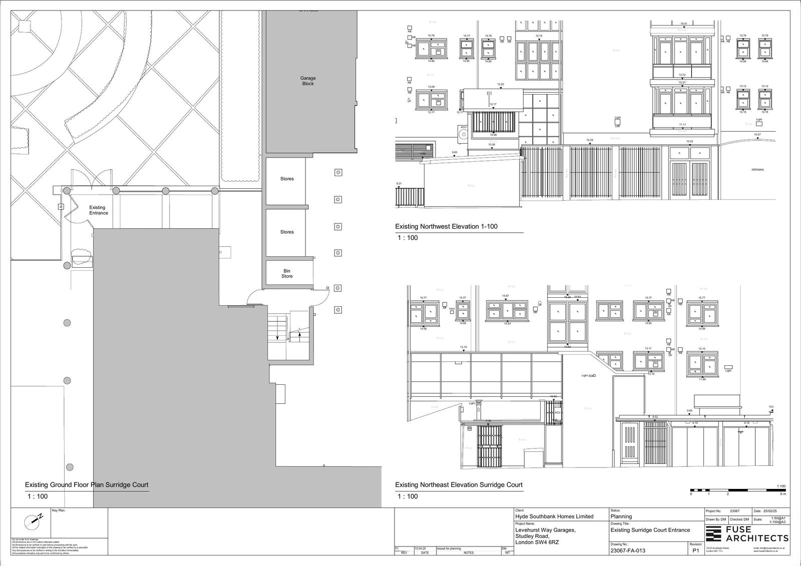
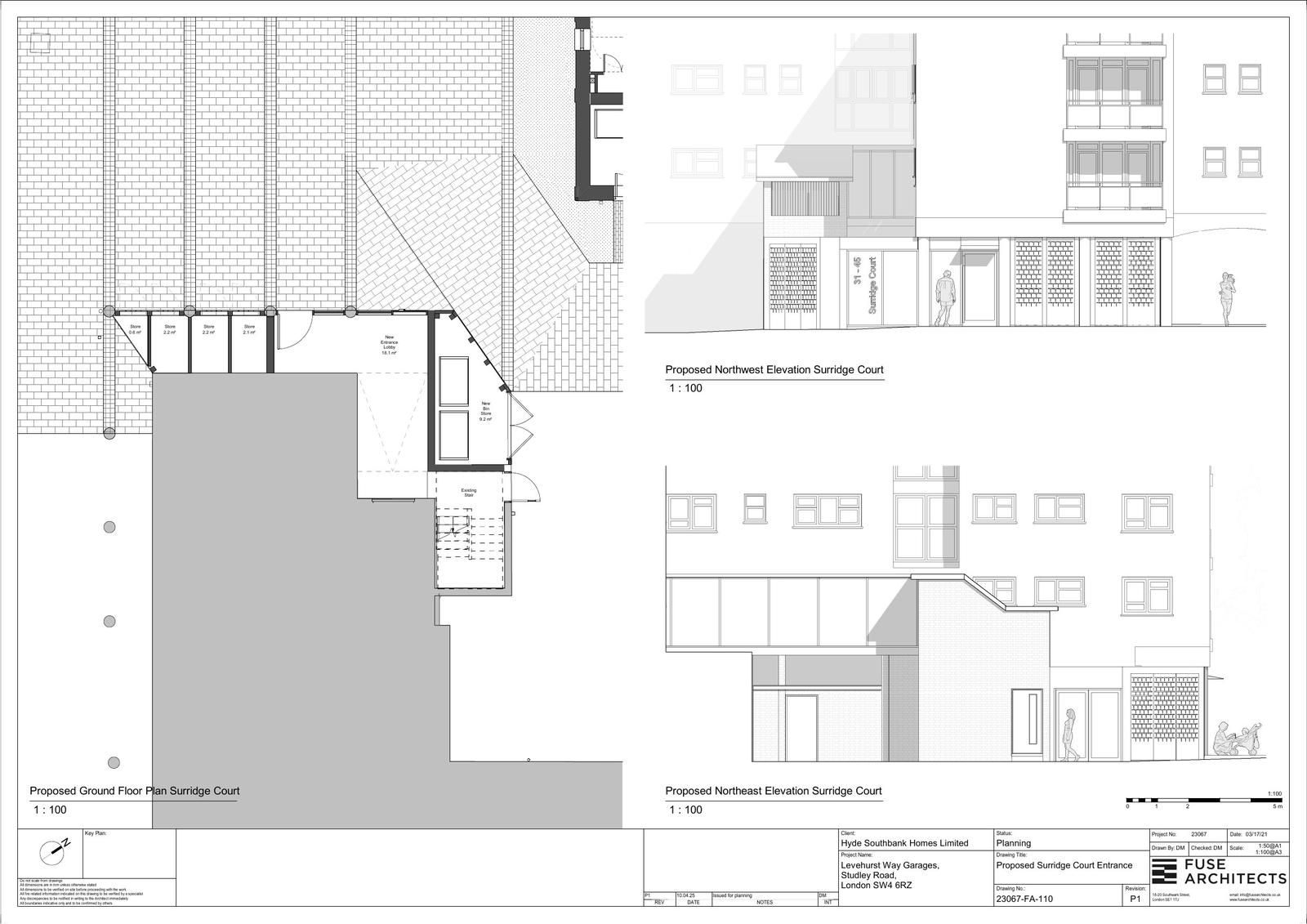
Erection of two 5 storey buildings, to provide 18 dwelling flats (Use Class C3) and associated cycle parking and hard and soft landscaping, in addition to alterations and improvements to the existing Surridge Court building entrance, and following demolition of the existing garages. (RECONSULTATION DUE TO AMENDED PLANS RECEIVED)

Documents

Plans - Revised
Archived · Original link
Supporting Docs
Archived · Original link
Supporting Docs
Archived · Original link
Supporting Docs
Archived · Original link
Supporting Docs
Archived · Original link
Supporting Docs
Archived · Original link
Plans - Superseded
Archived · Original link
Plans - Superseded
Archived · Original link
Plans - Superseded
Archived · Original link
Plans - Superseded
Archived · Original link
Plans - Superseded
Archived · Original link
Plans - Revised
Archived · Original link
Plans - Revised
Archived · Original link
Plans - Superseded
Archived · Original link
Plans - Superseded
Archived · Original link
Plans - Superseded
Archived · Original link
Plans - Superseded
Archived · Original link
Plans - Superseded
Archived · Original link
Plans - Revised
Archived · Original link
Plans - Revised
Archived · Original link
Plans - Superseded
Archived · Original link
Plans - Superseded
Archived · Original link
CARBON EMISSIONS REPORTING SPREADSHEET
Supporting Docs
Not yet archived · Original link
Supporting Docs
Archived · Original link
Transport Statement
Archived · Original link
Supporting Docs
Archived · Original link
Supporting Docs
Archived · Original link
Supporting Docs
Archived · Original link
Supporting Docs
Archived · Original link
Documents - Revised
Archived · Original link
Plans
Archived · Original link
Supporting Docs
Archived · Original link
Supporting Docs
Archived · Original link
GLA CARBON EMISSIONS REPORTING SPREADSHEET
Documents - Revised
Not yet archived · Original link
Supporting Docs
Archived · Original link
Supporting Docs
Archived · Original link
Supporting Docs
Archived · Original link
Supporting Docs
Archived · Original link
Supporting Docs
Archived · Original link
Supporting Docs
Archived · Original link
Supporting Docs
Archived · Original link
Supporting Docs
Archived · Original link
Supporting Docs
Archived · Original link
Supporting Docs
Archived · Original link
Supporting Docs
Archived · Original link
Supporting Docs
Archived · Original link
Supporting Docs
Archived · Original link
Supporting Docs
Archived · Original link
Supporting Docs
Archived · Original link
Supporting Docs
Archived · Original link
Supporting Docs
Archived · Original link
Transport Statement
Archived · Original link
Plans - Revised
Archived · Original link
Supporting Docs
Archived · Original link
Plans - Superseded
Archived · Original link
Plans - Superseded
Archived · Original link
Plans - Revised
Archived · Original link
Plans - Revised
Archived · Original link
Plans - Revised
Archived · Original link
Plans - Superseded
Archived · Original link
Plans - Superseded
Archived · Original link
Plans - Revised
Archived · Original link
Plans - Superseded
Archived · Original link
Plans - Revised
Archived · Original link
Supporting Docs
Archived · Original link
Design & Access Statement
Archived · Original link
STATEMENT OF COMMUNITY INVOLVEMENT
Supporting Docs
Not yet archived · Original link
Supporting Docs
Archived · Original link
Plans - Revised
Archived · Original link
Supporting Docs
Archived · Original link
OS Map
Archived · Original link
Supporting Docs
Archived · Original link
Transport Statement
Archived · Original link
Supporting Docs
Archived · Original link
Supporting Docs
Archived · Original link
Supporting Docs
Archived · Original link
Supporting Docs
Archived · Original link

Have your say

Your comment matters. Councils must consider every representation that raises material planning considerations.

Write a comment