Application
25/01526/FUL
Lambeth · IDOX
Status
Awaiting decision
Change of use
Received
11 May 2025
New dwellings
2
What you can do
Take Action
Make your voice heard. Authorities need to hear from people who support new homes.
Summary
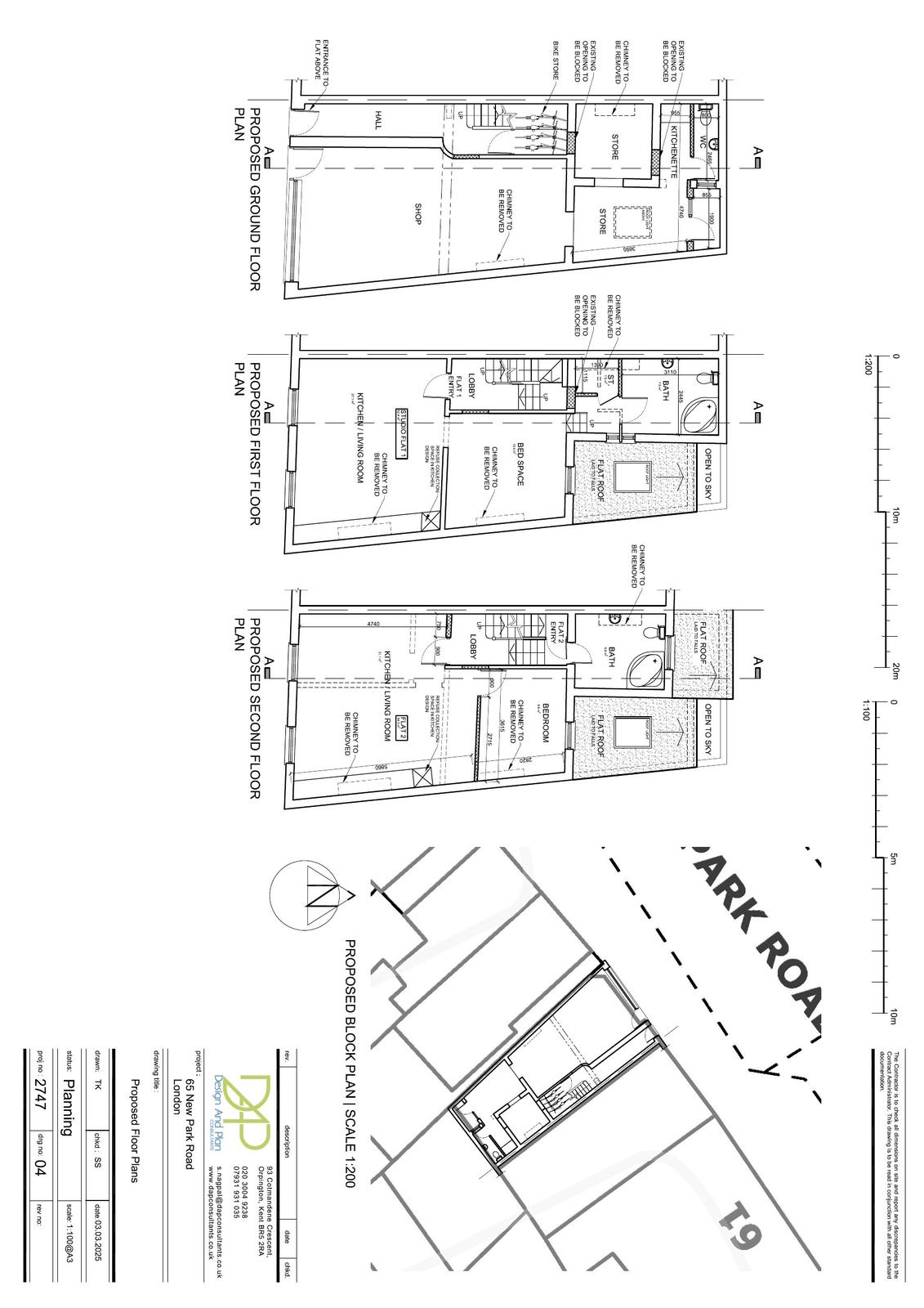
Convert upper floors into two residential units with mansard roof extension and cycle store.
Full Proposal
Conversion of the upper floors into two residential units, together with the erection of a mansard roof extension including two windows to the front and rear, a new roof and a roof light to the ground floor shop addition and the provision of cycle store.
Detail pages
- View live detail on council site
- No archived detail page available.
Documents
+ EXISTING BLOCK PLAN
OS Map
Not downloaded
· Council link
+ HERITAGE STATEMENT
Planning Statement
Not downloaded
· Council link
COMMUNITY INFRASTRUCTURE LEVY - COMPLETED FORM
Supporting Docs
Not downloaded
· Council link
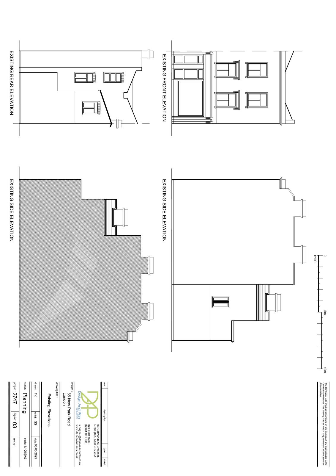
EXISTING ELEVATIONS
Plans
Not downloaded
· Council link
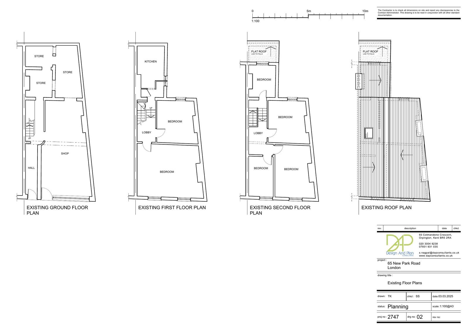
EXISTING FLOORPLANS
Plans
Not downloaded
· Council link
PROPOSED ELEVATIONS
Plans - Revised
Not downloaded
· Council link
PROPOSED ELEVATIONS
Plans
Not downloaded
· Council link
PROPOSED ELEVATIONS
Plans - Revised
Not downloaded
· Council link
PROPOSED FLOOR PLANS
Plans - Revised
Archived copy
· Council link
PROPOSED FLOOR PLANS
Plans - Revised
Archived copy
· Council link
PROPOSED FLOOR PLANS AND SECTION
Plans - Revised
Archived copy
· Council link
PROPOSED FLOORPLANS + BLOCK PLAN
Plans
Not downloaded
· Council link
Archived copy
· Council link
REDACTED
Application Form
Not downloaded
· Council link