Application
25/01697/FUL
Lambeth · IDOX
Status
Awaiting decision
Change of use
Received
22 May 2025
New dwellings
1
What you can do
Take Action
Make your voice heard. Authorities need to hear from people who support new homes.
Summary
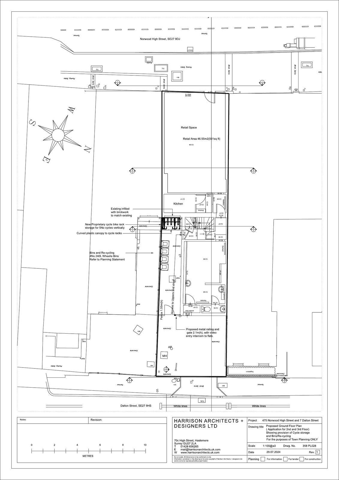
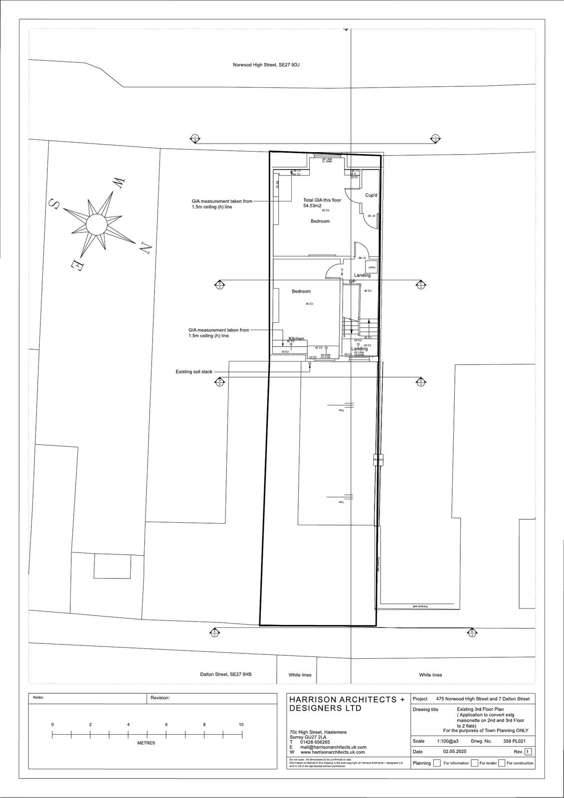
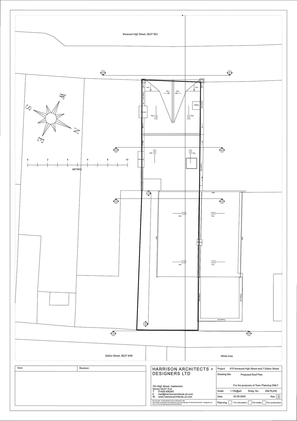
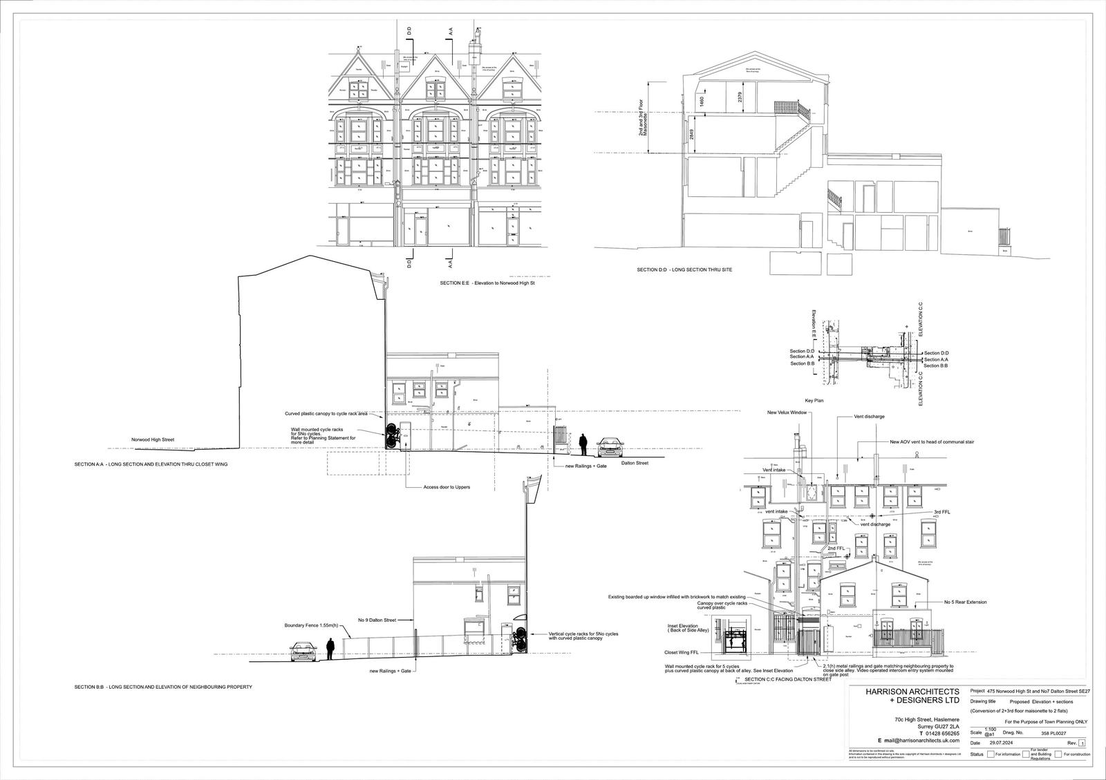
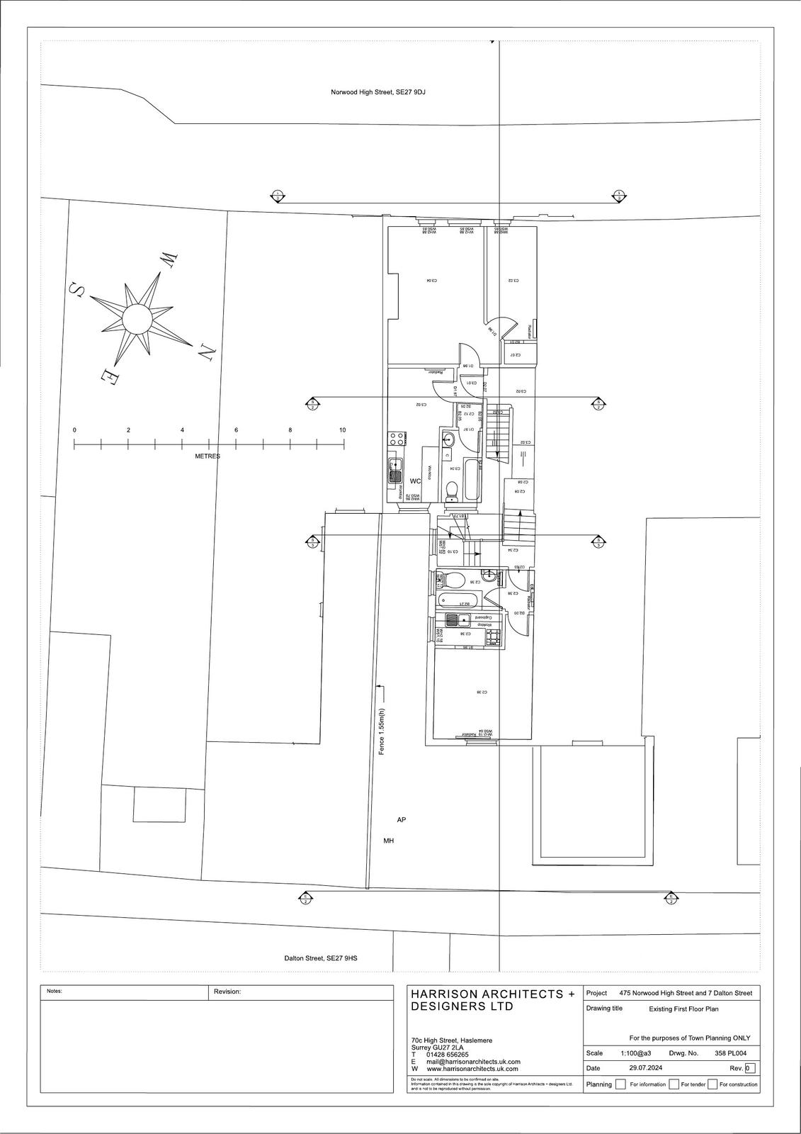
Convert one 2-bed maisonette into two studio flats with rooflight, railings, cycle and bin storage.
Full Proposal
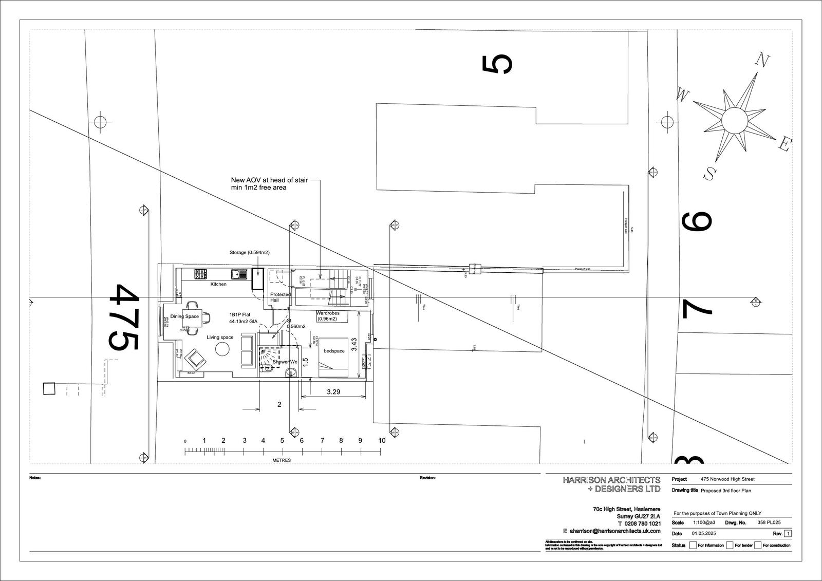
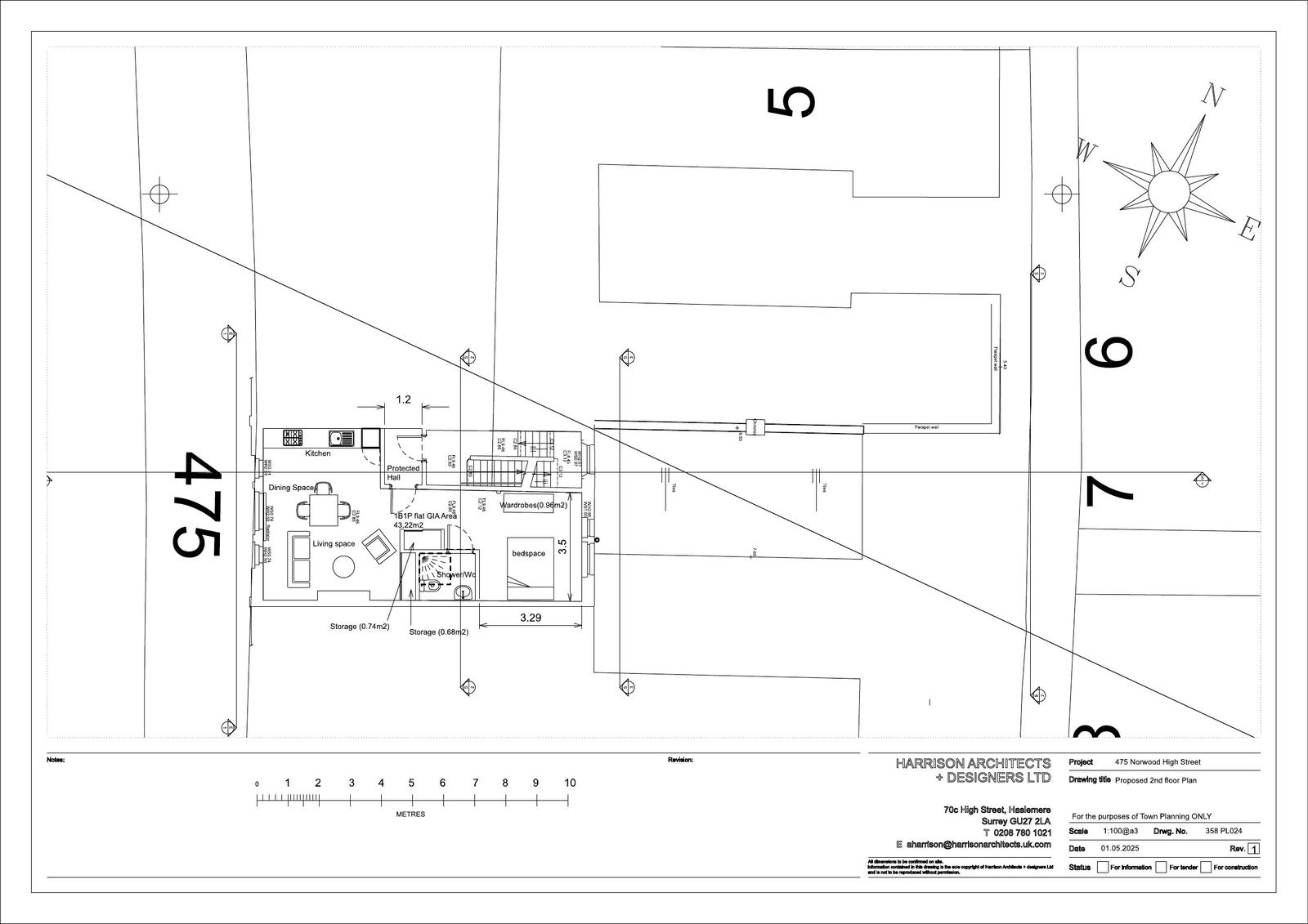
Conversion of 2bed maisonette flat into 2x Studio flats, together with installation of a rear roof light, metal railing and gate to the rear, plus the provision of cycle storage and additional bin. (Flat 3).
Detail pages
- View live detail on council site
- No archived detail page available.
Documents
APPLICATION FORM - WITHOUT PERSONAL DATA
Application Form
Not downloaded
· Council link
COMMUNITY INFRASTRUCTURE LEVY - COMPLETED FORM
Supporting Docs
Not downloaded
· Council link
EXISTING 3RD FLOOR PLAN
Plans
Not downloaded
· Council link
EXISTING BLOCK PLAN
Plans
Not downloaded
· Council link
EXISTING ELEVATIONS + SECTION
Plans
Not downloaded
· Council link
EXISTING FIRST FLOOR PLAN
Plans
Not downloaded
· Council link
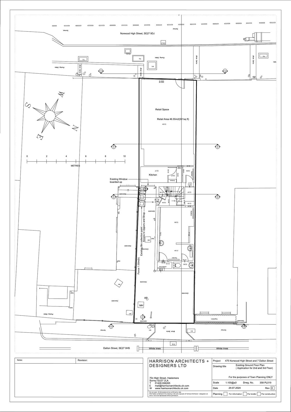
EXISTING GROUND FLOOR PLAN
Plans
Not downloaded
· Council link
EXISTING ROOF PLAN
Plans
Not downloaded
· Council link
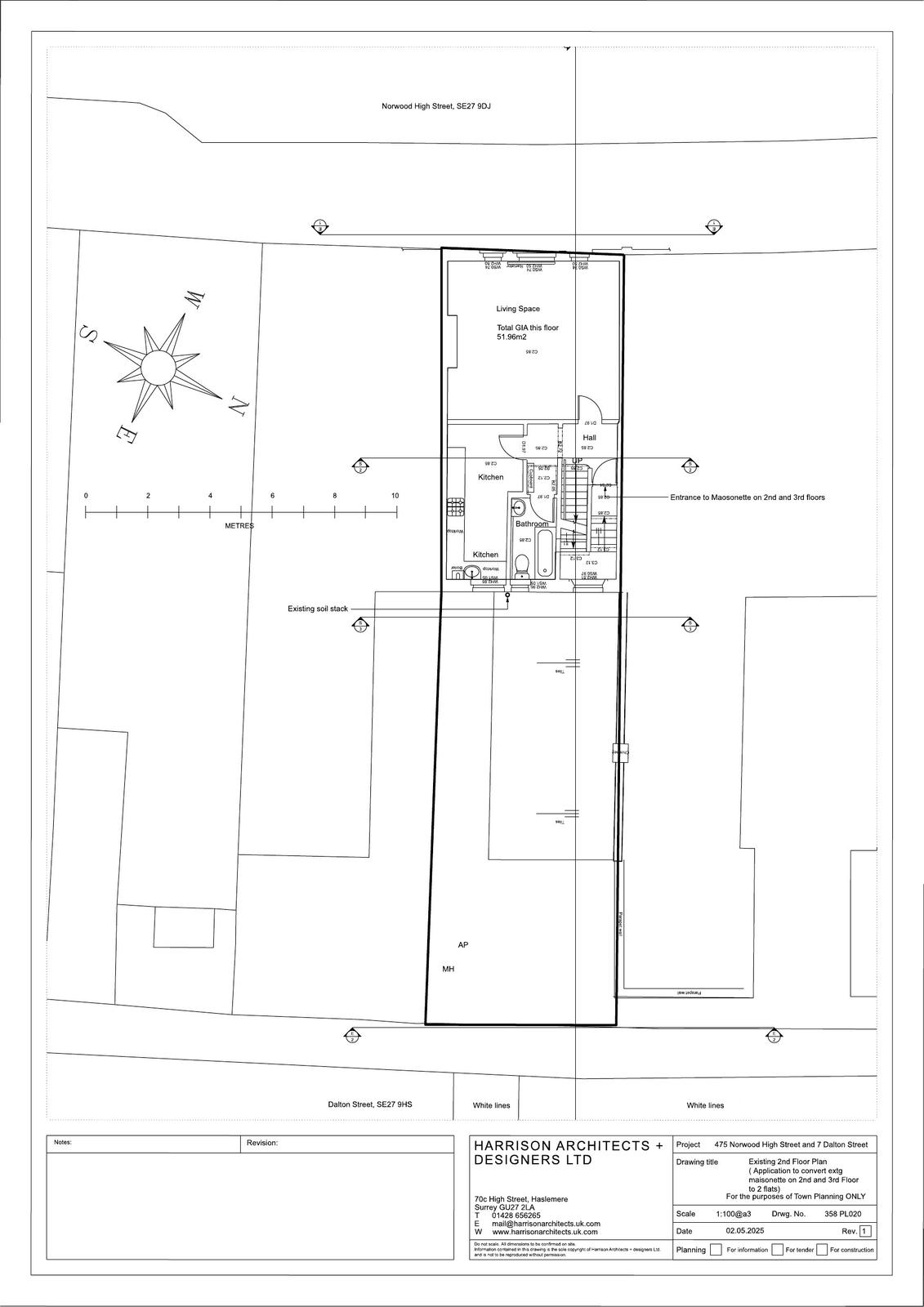
EXISTING SECOND FLOOR PLAN
Plans
Not downloaded
· Council link
OFFICER REPORT
Delegated Register
Not downloaded
· Council link
PLANNING STATEMENT
Planning Statement
Not downloaded
· Council link
PROPOSED 3RD FLOOR PLAN
Plans
Not downloaded
· Council link
PROPOSED ELEVATIONS AND SECTION
Plans
Not downloaded
· Council link
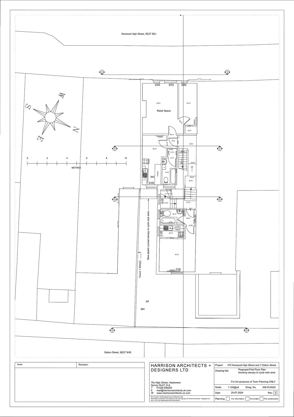
PROPOSED FIRST FLOOR PLAN
Plans
Not downloaded
· Council link
PROPOSED GROUND FLOOR PLAN
Plans
Not downloaded
· Council link
PROPOSED ROOF PLAN
Plans
Not downloaded
· Council link
PROPOSED SECOND FLOOR PLAN
Plans
Not downloaded
· Council link
THE LOCATION PLAN
OS Map
Not downloaded
· Council link