← Lambeth

Status

Awaiting decision Change of use
Received
04 Jun 2025
New homes
1

Summary

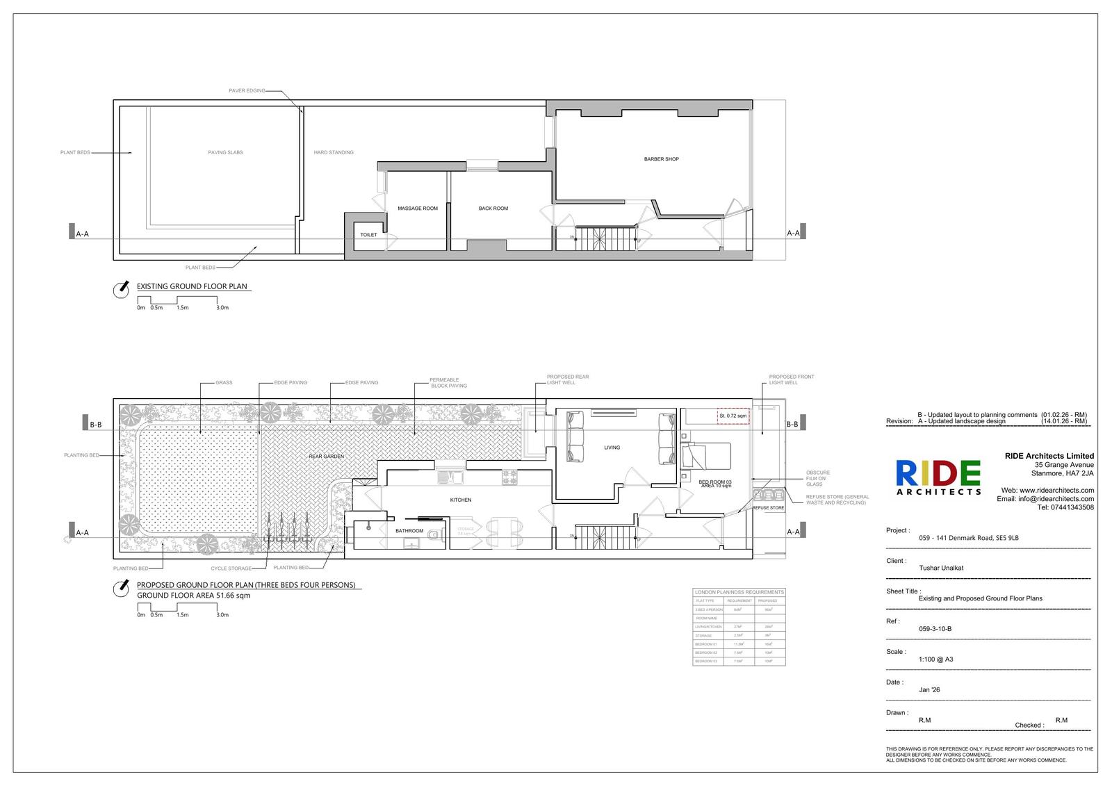
Change of use of barber shop to a single 3-bed duplex residential unit.

Full proposal

Change of use of the ground floor and basement Barber Shop (Use Class E) into a 3-bed duplex residential unit (Use Class C3), including the formation of a rear and front light-wells with new windows and railings, alteration to side and rear fenestration elevations, together with the provision of refuse and cycle store and landscaping.

Documents

APPLICATION FORM - WITHOUT PERSONAL DATA
Application Form
Not yet archived · Original link
BIODIVERSITY METRIC CALCULATION TOOL
Supporting Docs
Not yet archived · Original link
DAYLIGHT AND SUNLIGHT ASSESSMENT REPORT
Documents - Revised
Not yet archived · Original link
DAYLIGHT SUNLIGHT REPORT
Supporting Docs
Not yet archived · Original link
Plans - Revised
Archived · Original link
Plans - Superseded
Archived · Original link
EXISTING FRONT ELEVATION
Plans
Not yet archived · Original link
EXISTING REAR ELEVATION
Plans
Not yet archived · Original link
EXISTING SECTION
Plans
Not yet archived · Original link
EXISTING SIDE (NORTH) ELEVATION
Plans
Not yet archived · Original link
EXISTING/PROPOSED BASEMENT PLAN
Plans
Not yet archived · Original link
EXISTING/PROPOSED DRAWINGS
Plans
Not yet archived · Original link
EXISTING/PROPOSED GROUND FLOOR PLANS
Plans
Not yet archived · Original link
EXISTING/PROPOSED REAR ELEVATIONS
Plans
Not yet archived · Original link
FIRE STRATEGY PLAN
Plans
Not yet archived · Original link
FIRE STRATEGY STATEMENT
Supporting Docs
Not yet archived · Original link
FLOOD RISK & BASEMENT IMPACT STATEMENT
Supporting Docs
Not yet archived · Original link
FLOOD RISK MITIGATION RAINWATER HARVESTING STRATEGY
Plans
Not yet archived · Original link
HERITAGE IMPACT ASSESSMENT
Supporting Docs
Not yet archived · Original link
INCL. HERITAGE STATEMENT
Design & Access Statement
Not yet archived · Original link
NOISE AND ACOUSTIC STATEMENT
Supporting Docs
Not yet archived · Original link
PROPOSED ELEVATIONS AND SECTIONS - COMPILED
Plans
Not yet archived · Original link
PROPOSED FRONT ELEVATION
Plans
Not yet archived · Original link
PROPOSED FRONT ELEVATION, WITH BASEMENT WINDOW DETAILS
Plans
Not yet archived · Original link
PROPOSED MATERIAL SUMMARY
Supporting Docs
Not yet archived · Original link
PROPOSED NORTH (SIDE) ELEVATION
Plans
Not yet archived · Original link
PROPOSED REAR ELEVATION
Plans
Not yet archived · Original link
PROPOSED REAR ELEVATION WITH WINDOW DETAILS
Plans
Not yet archived · Original link
PROPOSED SECTION
Plans
Not yet archived · Original link
PROPOSED SECTION BB
Plans - Superseded
Not yet archived · Original link
PROPOSED SECTION CC, NEIGHBOURING PRECEDENTS & PHOTOGRAPHIC REFERENCES
Plans
Not yet archived · Original link
PROPOSED SIDE (NORTH) ELEVATION
Plans
Not yet archived · Original link
REFUSE AND CYCLE STORAGE STATEMENT
Supporting Docs
Not yet archived · Original link
REVISED DRAWING
Plans - Revised
Not yet archived · Original link
SEWER AND WATER LINE
Plans
Not yet archived · Original link
SEWER AND WATER LINE
Plans
Not yet archived · Original link
SITE/BLOCK PLAN
Plans
Not yet archived · Original link
SUPPLEMENTARY STATEMENT
Planning Statement
Not yet archived · Original link
SUSTAINABLE DRAINAGE
Supporting Docs
Not yet archived · Original link
THE LOCATION PLAN
OS Map
Not yet archived · Original link
TRANSPORT AND PARKING STATEMENT
Supporting Docs
Not yet archived · Original link

Have your say

Your comment matters. Councils must consider every representation that raises material planning considerations.

Write a comment