← Lambeth

Status

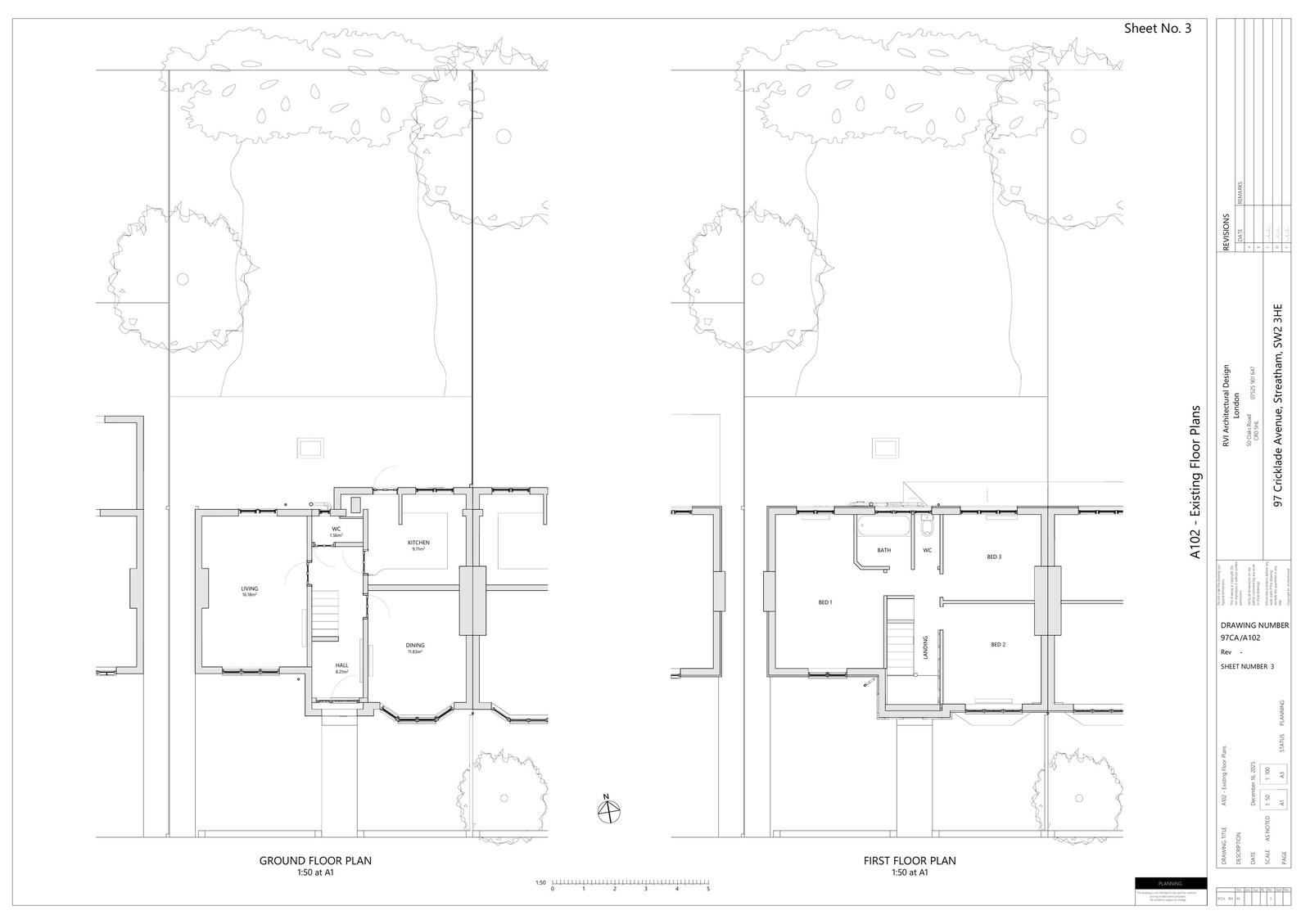
Awaiting decision House extension
Received
17 Dec 2025
New homes
0

Full proposal

Erection of a single storey ground floor rear extension and the replacement of first floor rear windows with double glazed white painted timber framed windows and the ground floor rear window with french door.

Have your say

Your comment matters. Councils must consider every representation that raises material planning considerations.

Write a comment