← Lambeth

Status

Awaiting decision House extension
Received
01 Jan 2026
New homes
0

Full proposal

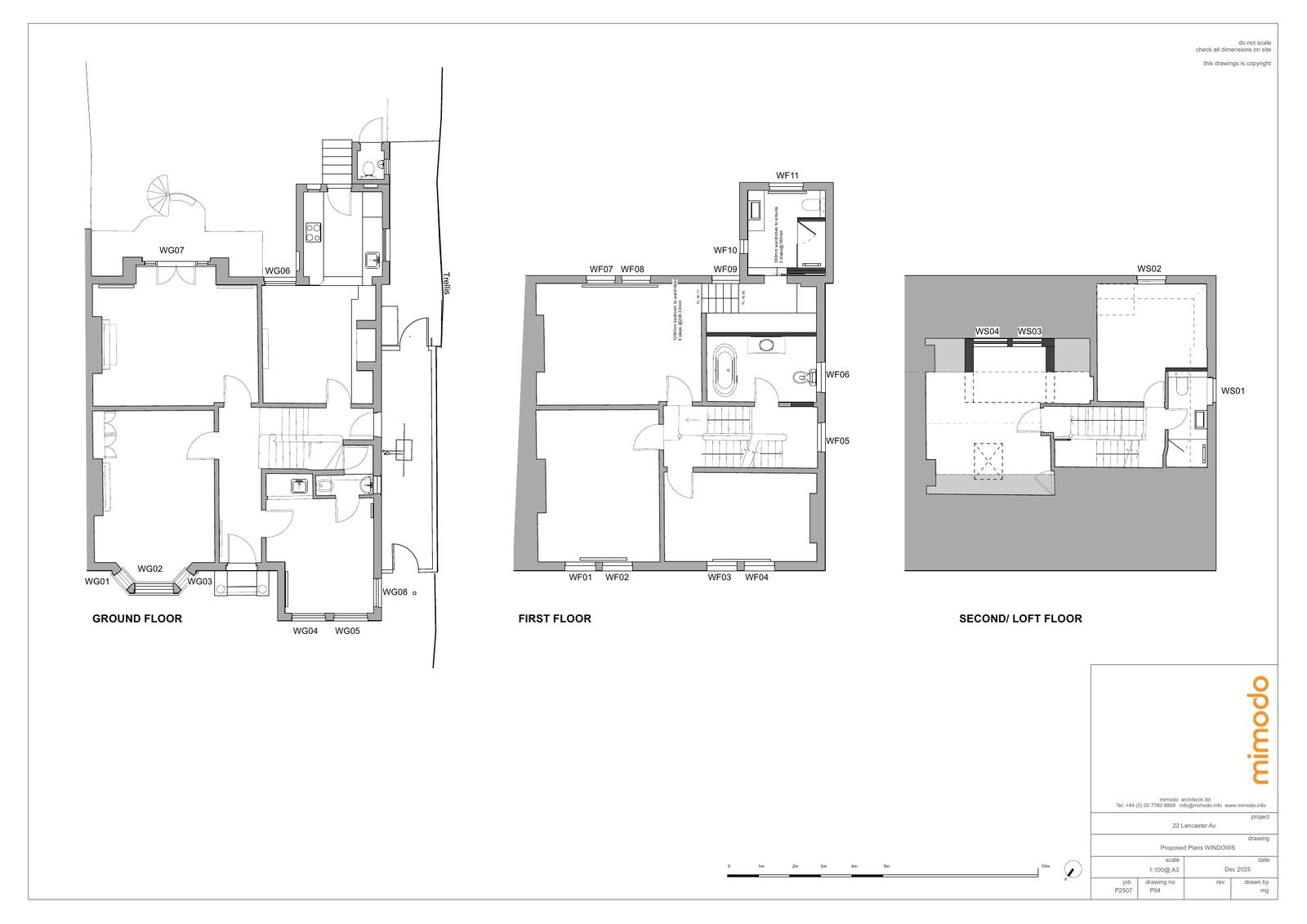
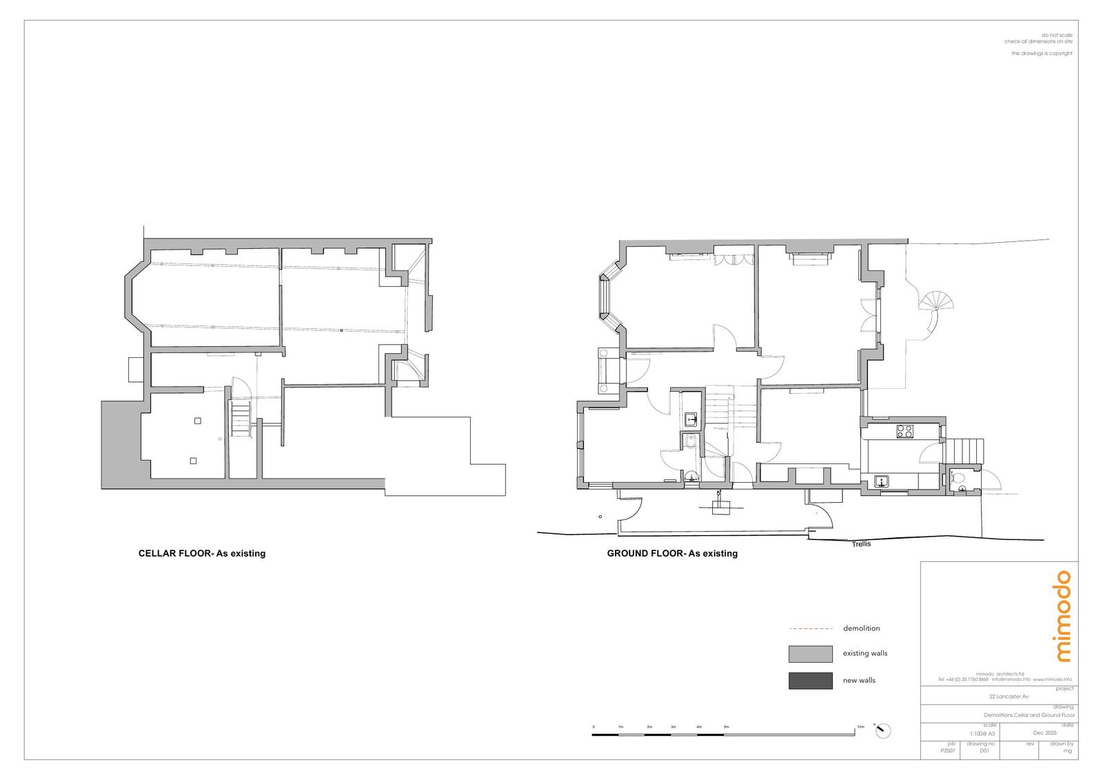
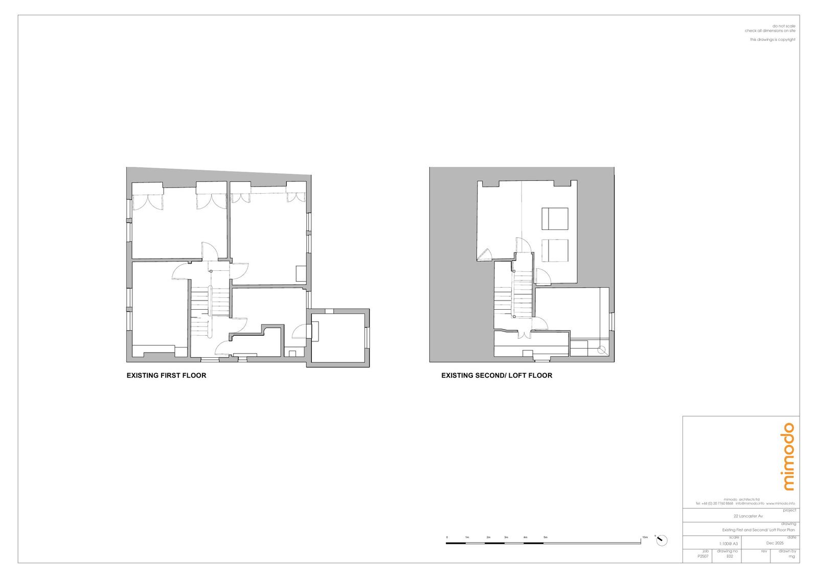
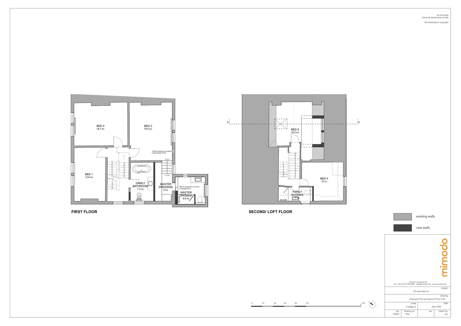
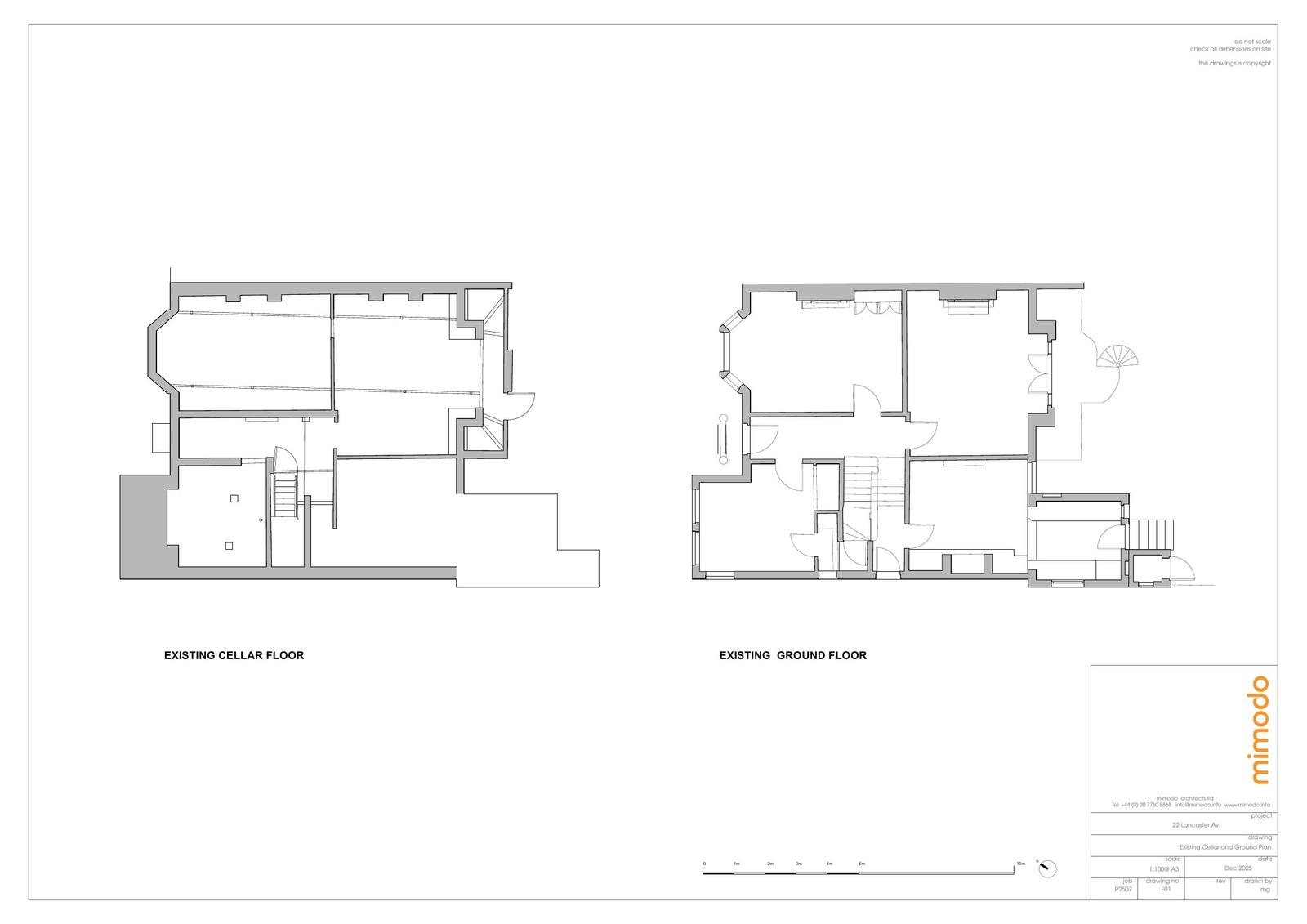
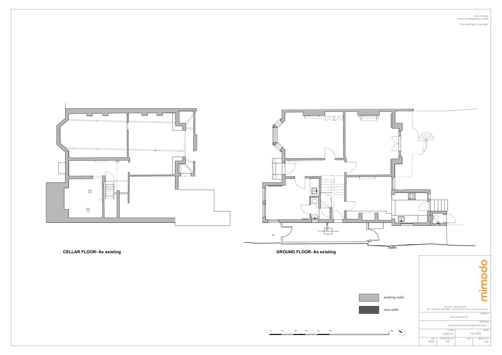
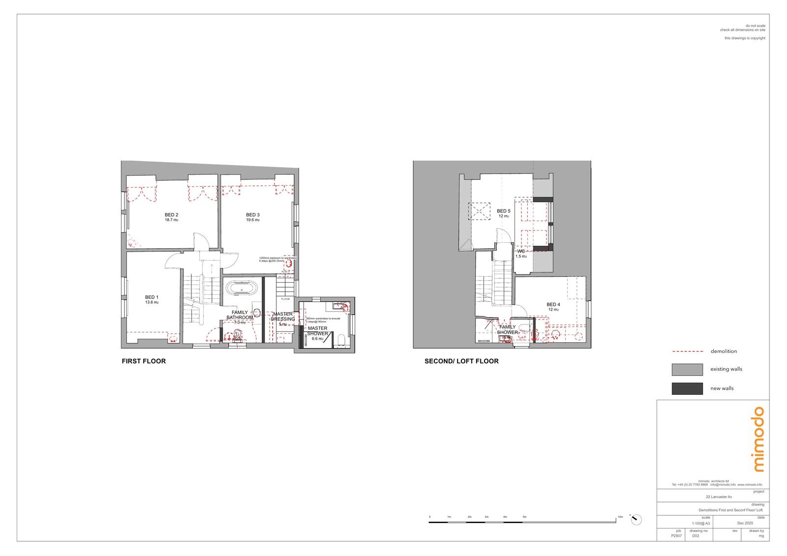
Erection of a rear dormer extension including 1 rooflight to the front and replacement natural slate tiles to entire roof. [RE-CONSULTATION DUE TO REVISED PLANS]

Documents

Design & Access Statement
Archived · Original link
Plans - Revised
Archived · Original link
Plans - Revised
Archived · Original link
Plans - Revised
Archived · Original link
Plans - Revised
Archived · Original link
Plans - Revised
Archived · Original link
Plans - Revised
Archived · Original link
Plans - Revised
Archived · Original link
Plans - Revised
Archived · Original link
Plans - Revised
Archived · Original link
Plans - Revised
Archived · Original link
Plans - Revised
Archived · Original link
OS Map
Archived · Original link

Have your say

Your comment matters. Councils must consider every representation that raises material planning considerations.

Write a comment