← Lambeth

Status

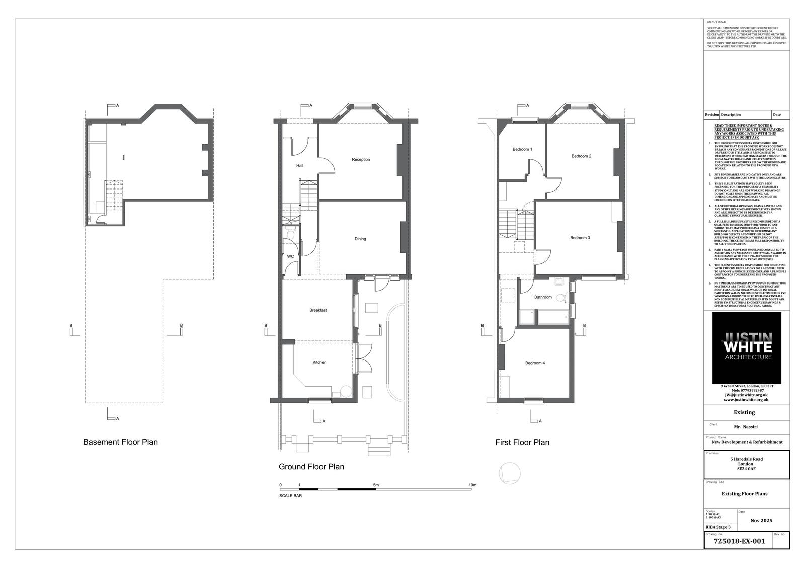
Awaiting decision House extension
Received
06 Jan 2026
New homes
0

Full proposal

Erection of a ground floor single storey side infill extension and erection of a rear L-shaped dormer including 2 roof lights to the front elevation.

Have your say

Your comment matters. Councils must consider every representation that raises material planning considerations.

Write a comment