← Lambeth

Status

Awaiting decision House extension
Received
08 Jan 2026
New homes
0

Full proposal

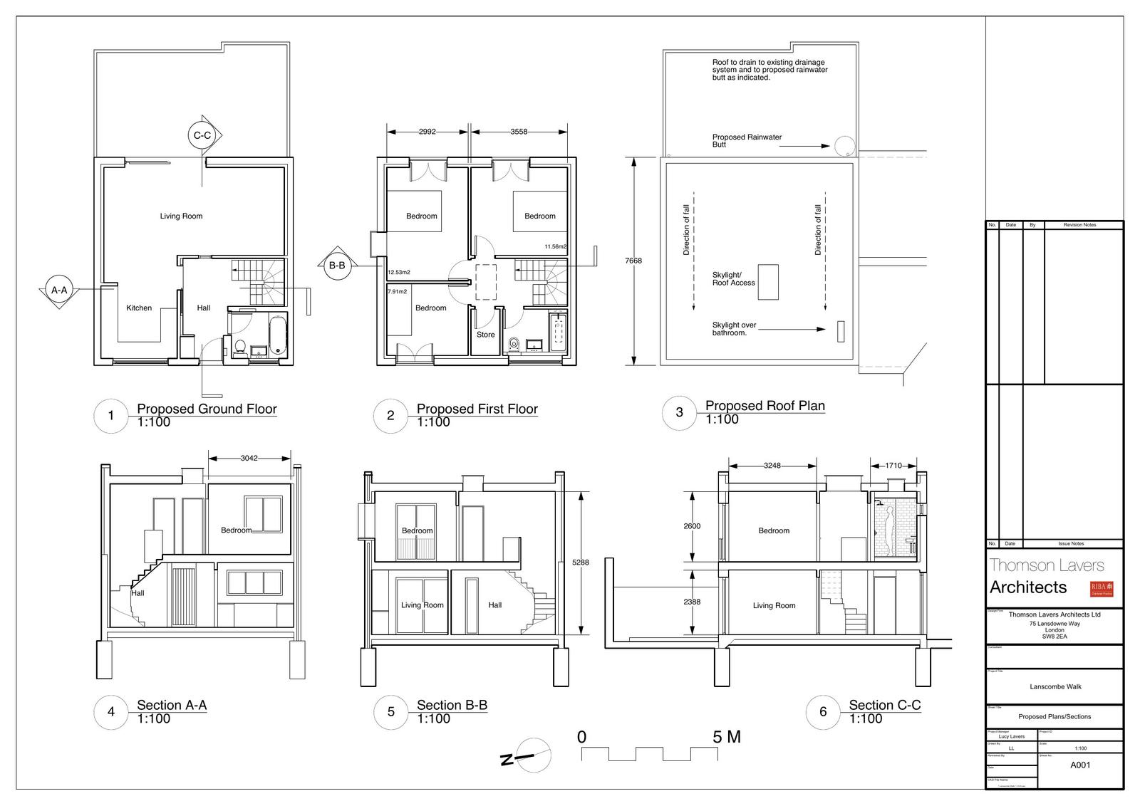
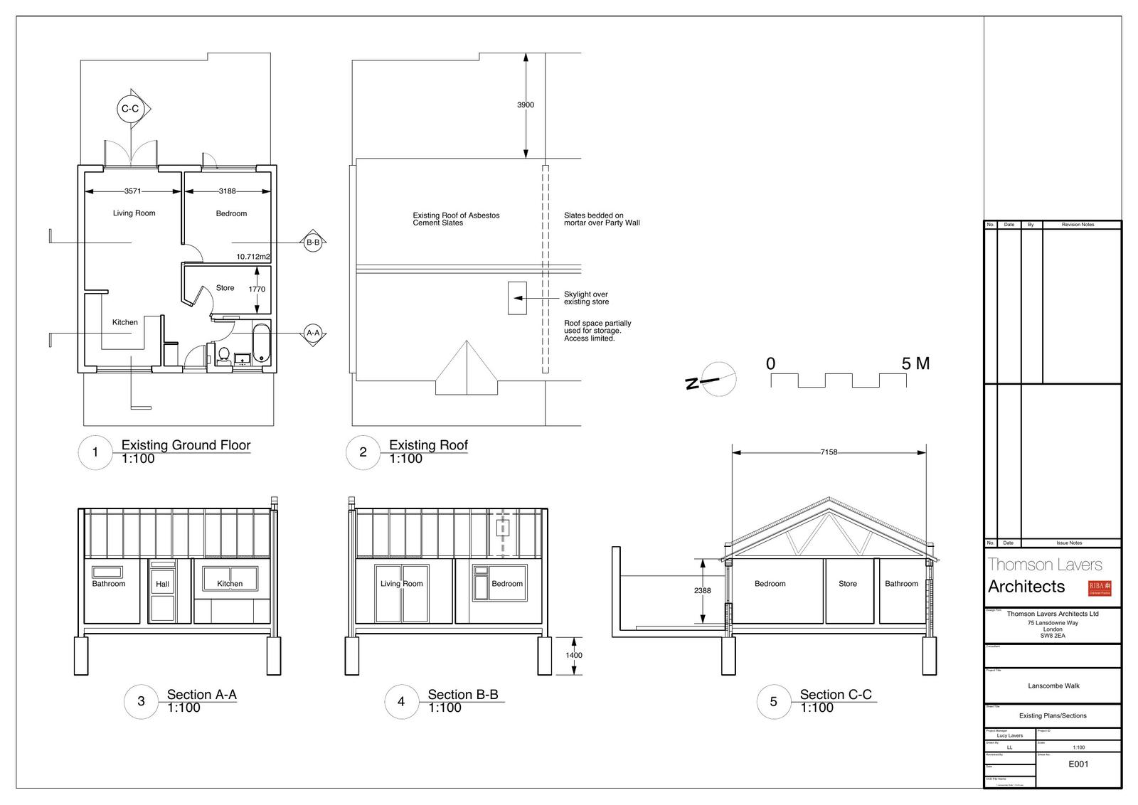
Erection of an additional storey to create a first floor extension with alterations to existing front and rear fenestration.

Have your say

Your comment matters. Councils must consider every representation that raises material planning considerations.

Write a comment