← Lambeth

Status

Awaiting decision House extension
Received
13 Jan 2026
New homes
0

Full proposal

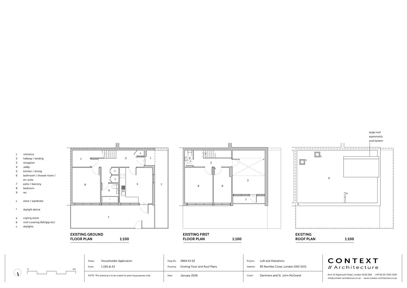
Erection of a roof extension with roof lights to create a second floor, together with the replacement of the first floor balcony and windows/door with infill windows and the installation of opaque side windows.

Have your say

Your comment matters. Councils must consider every representation that raises material planning considerations.

Write a comment