← Lambeth

Status

Awaiting decision House extension
Received
Last month
New homes
0

Full proposal

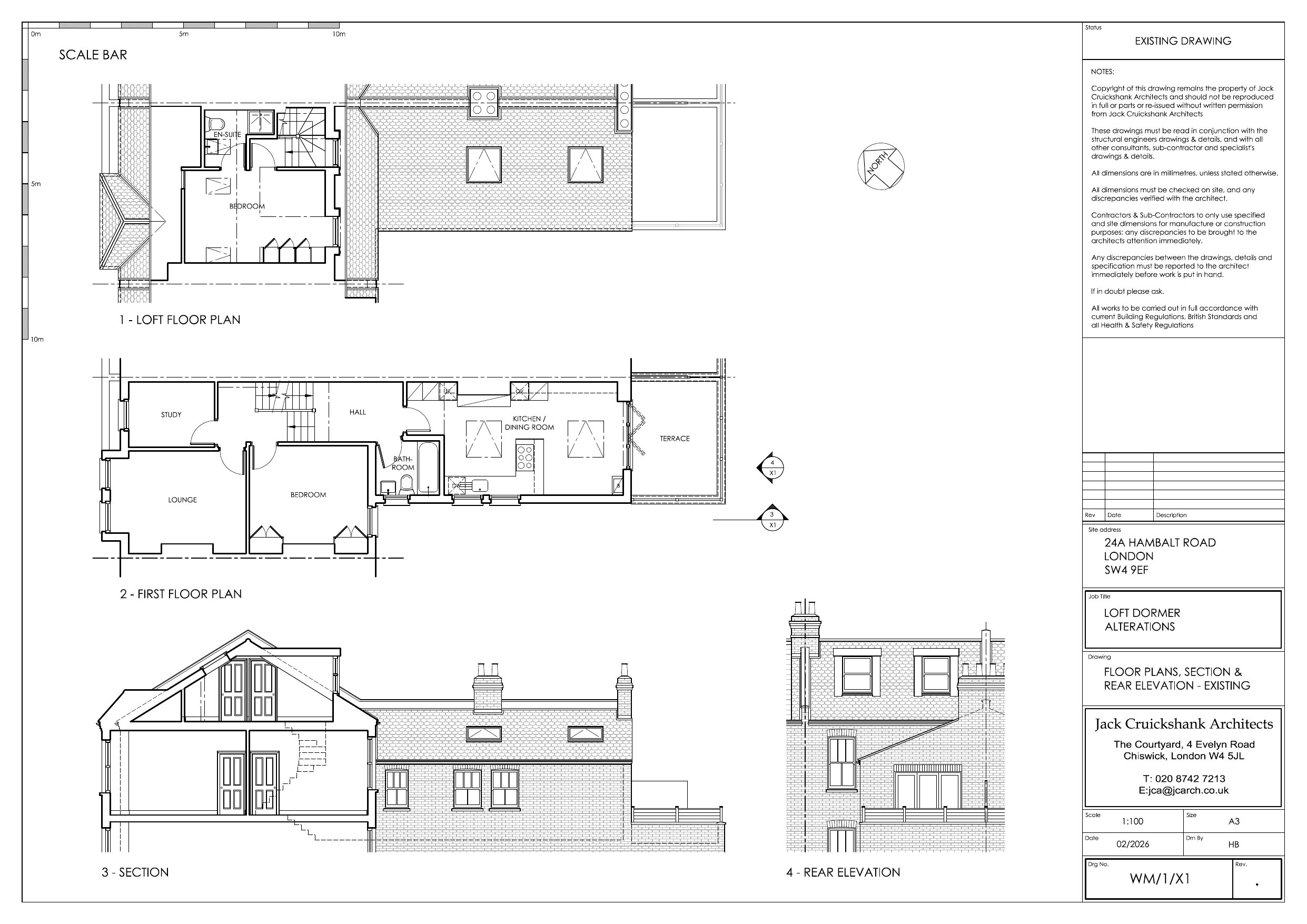
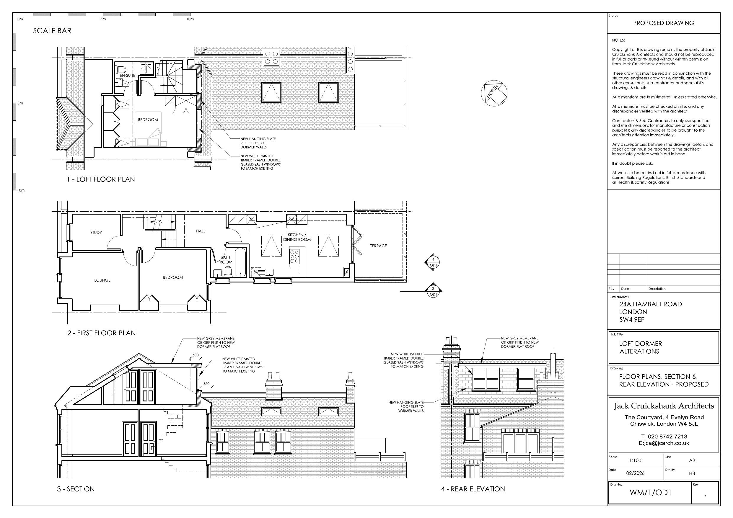
Erection of rear dormer (to Flat A).

Have your say

Your comment matters. Councils must consider every representation that raises material planning considerations.

Write a comment