← Lambeth

Status

Awaiting decision House extension
Received
28 days ago
New homes
0

Full proposal

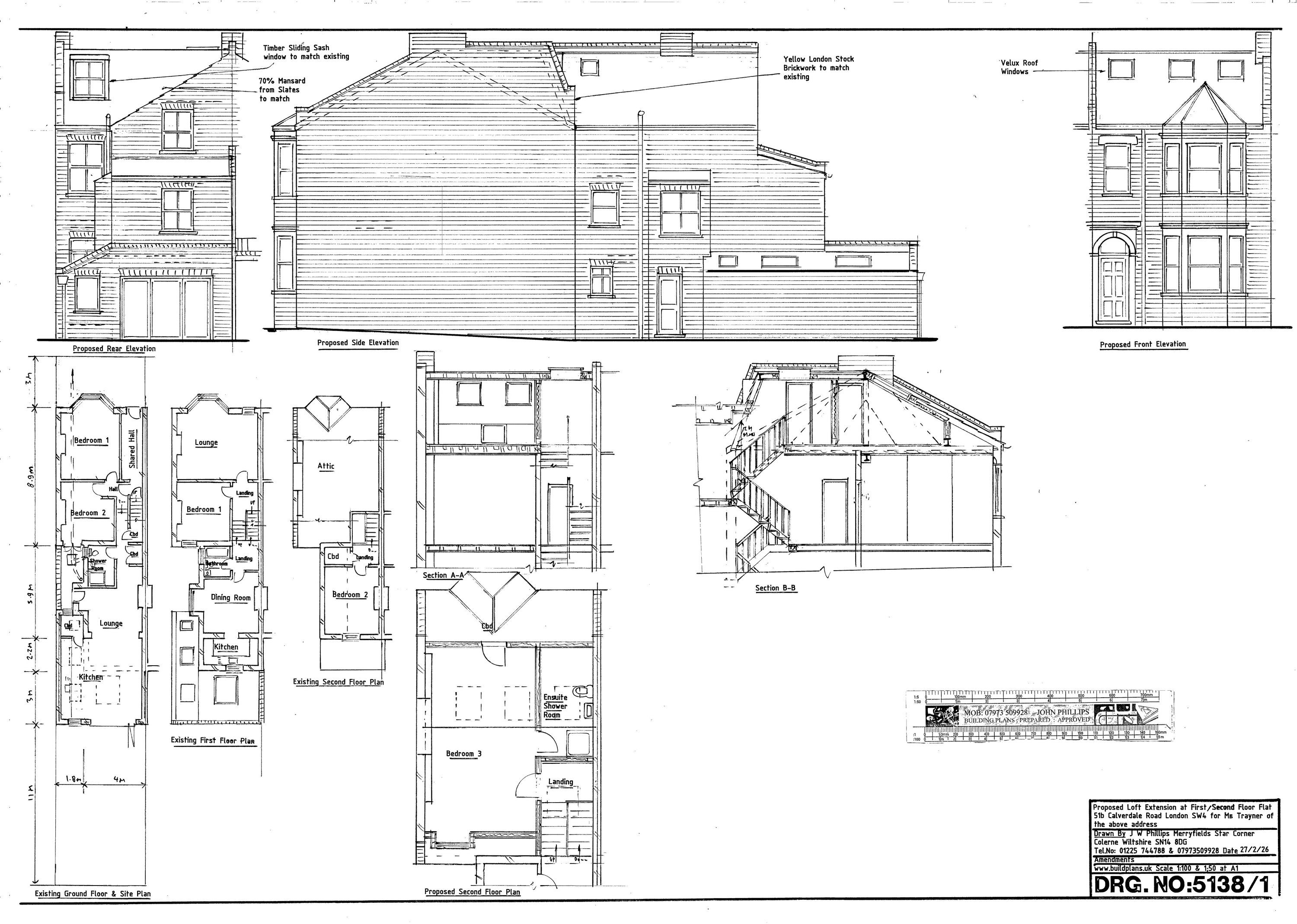
Erection of rear mansard roof extension and installation of 3 roof lights to the front roof slope - Flat B

Have your say

Your comment matters. Councils must consider every representation that raises material planning considerations.

Write a comment