← Lambeth

Status

Awaiting decision House extension
Received
27 days ago
New homes
0

Full proposal

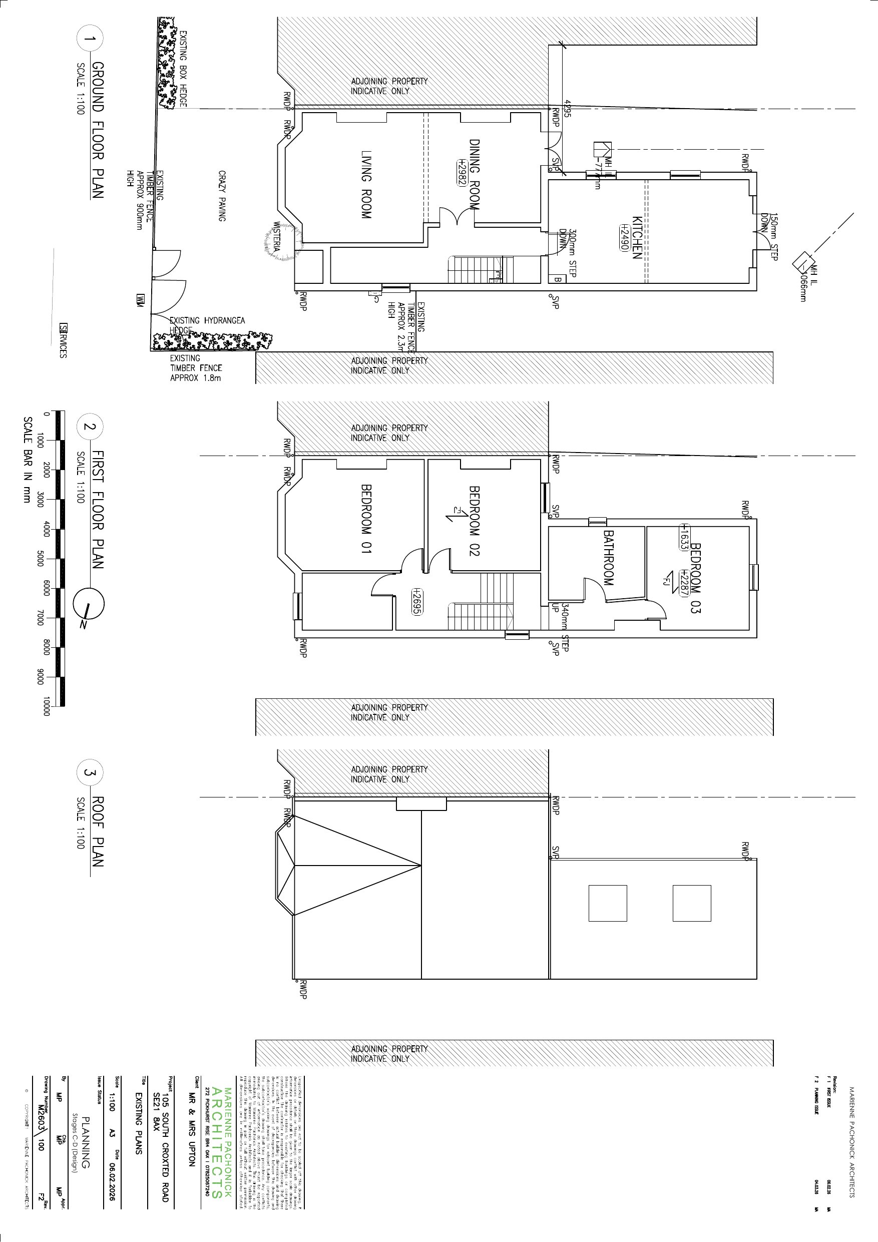
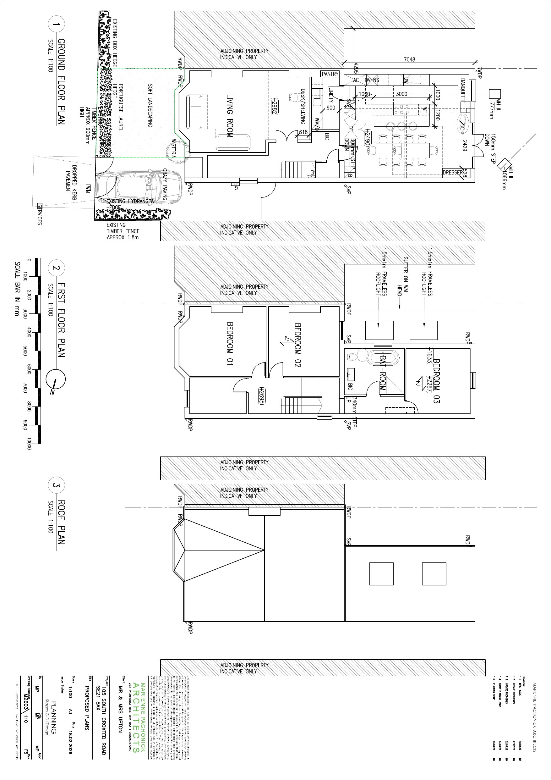
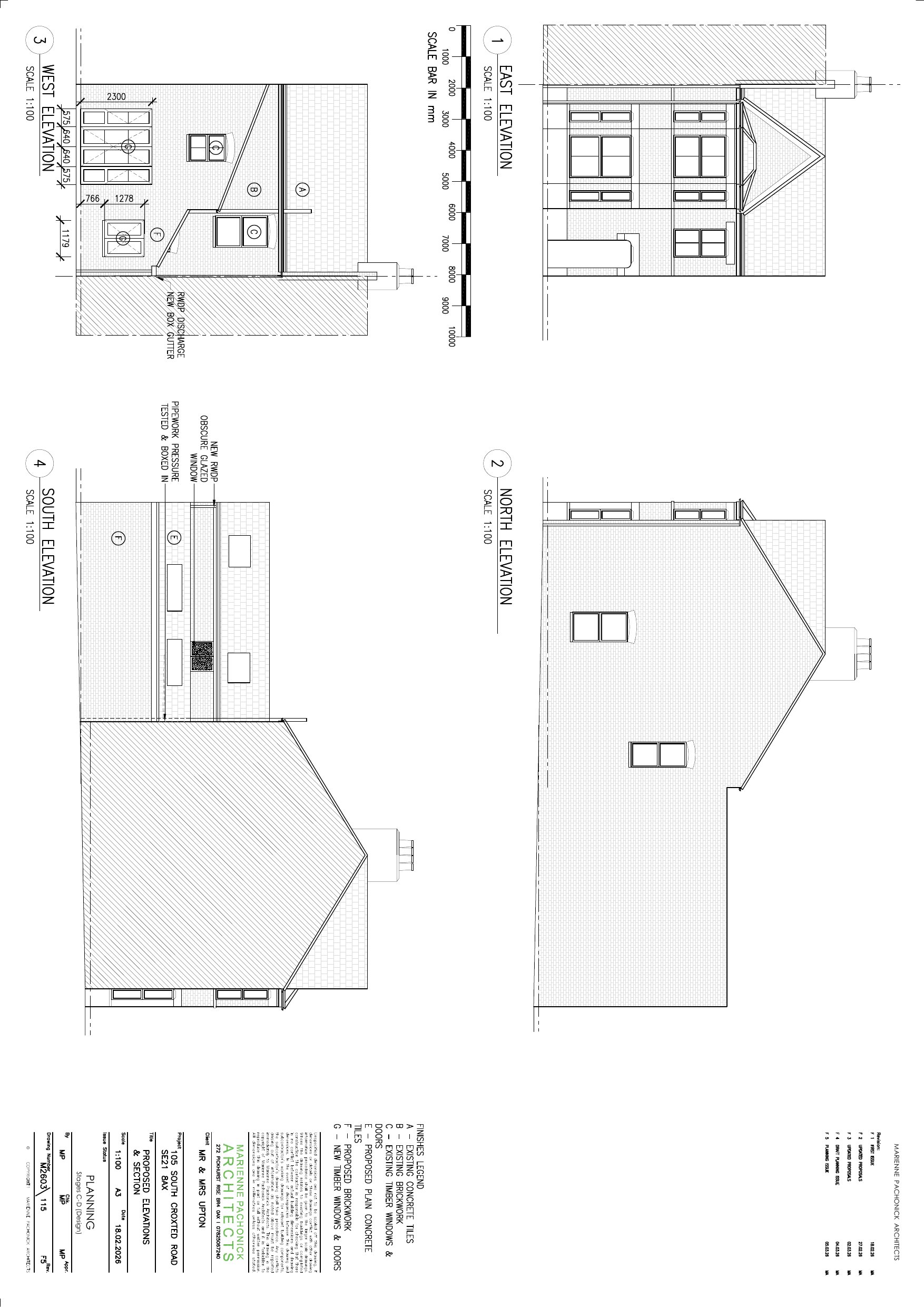
Erection of a single storey ground floor rear infill extension, together with the formation of a vehicular means of access (crossover) for the parking of a motor vehicle, and soft landscaping.

Have your say

Your comment matters. Councils must consider every representation that raises material planning considerations.

Write a comment