← Lancaster City Council

Status

Decided Demolition
Received
26 Mar 2025
New homes
0

Planning Inspectorate

Appeal: Decided Dismissed
Reference3372801
TypeHouseholder (HAS)
Decision date25 Nov 2025

Summary

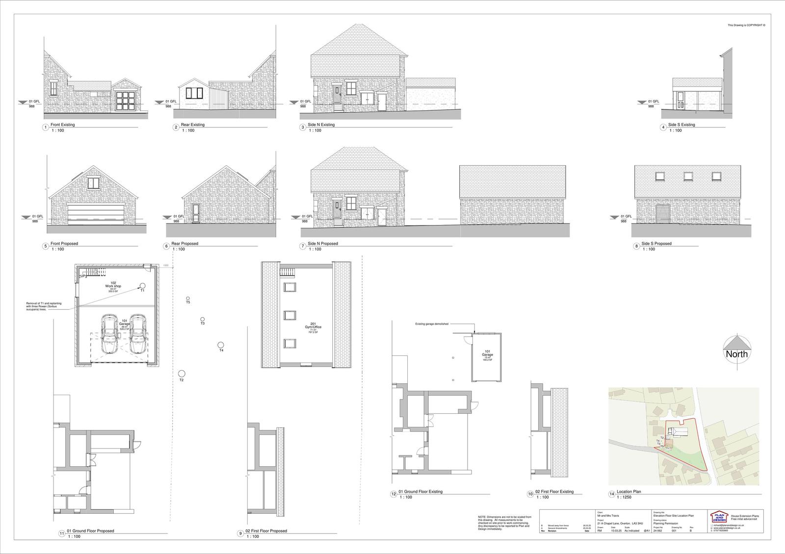
Demolish garage and erect detached double garage with gym and office.

Full proposal

Demolition of existing garage and erection of a detached double domestic garage/gym and office

Documents

Application Amendments (p)
Archived · Original link
Appeal decision
Decision Notices (p)
Not yet archived · Original link
Application form
Application Forms (p)
Not yet archived · Original link
Bat survey
Supporting Information (p)
Not yet archived · Original link
consultee response - arboricultural officer
Consultee Response (p)
Not yet archived · Original link
consultee response - arboricultural officer
Consultee Response (p)
Not yet archived · Original link
consultee response - county highways
Consultee Response (p)
Not yet archived · Original link
consultee response - county highways
Consultee Response (p)
Not yet archived · Original link
consultee response - parish council
Consultee Response (p)
Not yet archived · Original link
Decision notice
Decision Notices (p)
Not yet archived · Original link
Location of trees
Supporting Information (p)
Not yet archived · Original link
Officer report
Officer Report (p)
Not yet archived · Original link
Proposed replacement tree locations
Application Amendments (p)
Not yet archived · Original link
Tree assessment
Supporting Information (p)
Not yet archived · Original link
Tree location plan
Supporting Information (p)
Not yet archived · Original link
Tree schedule
Supporting Information (p)
Not yet archived · Original link

Have your say

Your comment matters. Councils must consider every representation that raises material planning considerations.

Write a comment