← Lancaster City Council

Status

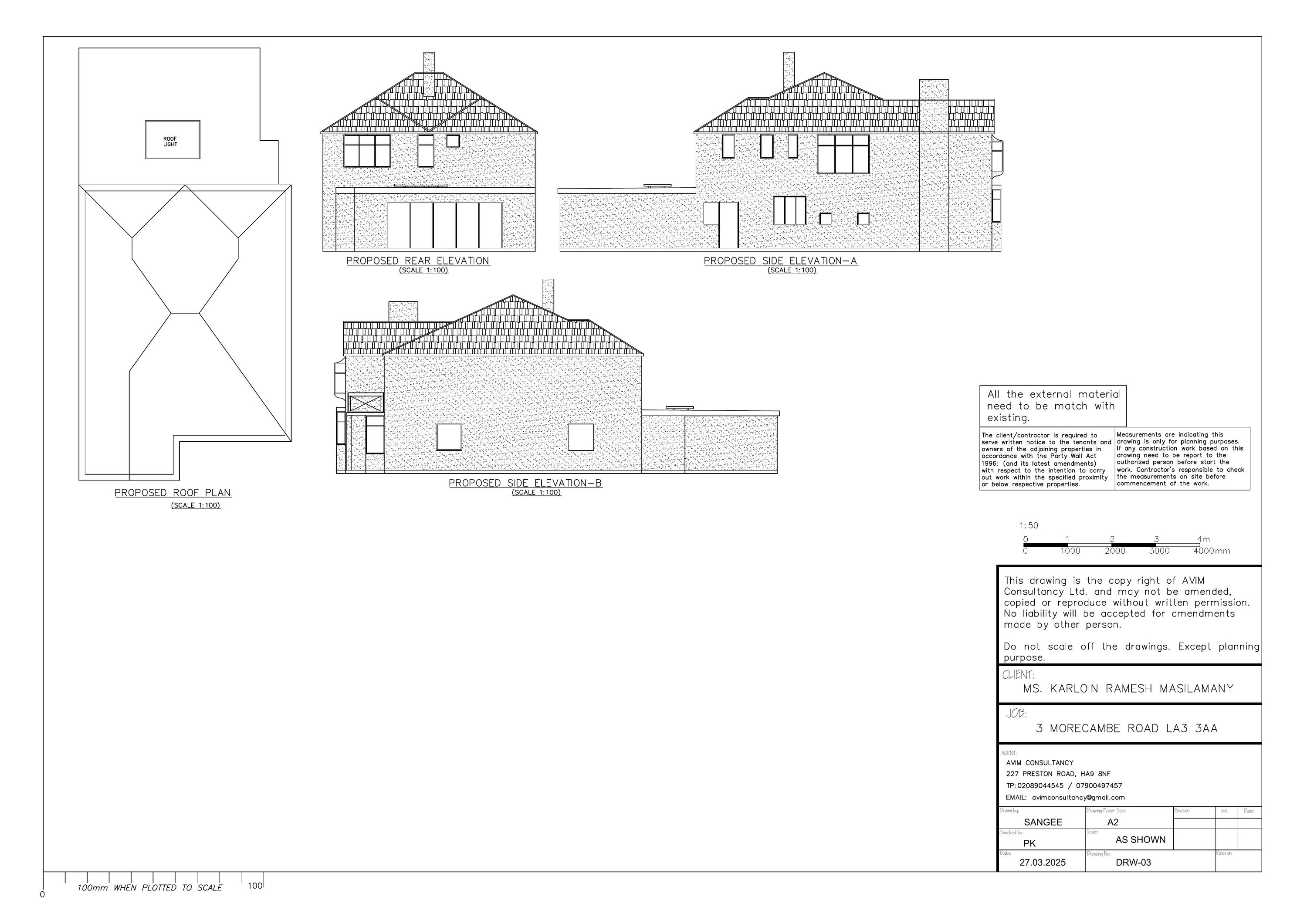
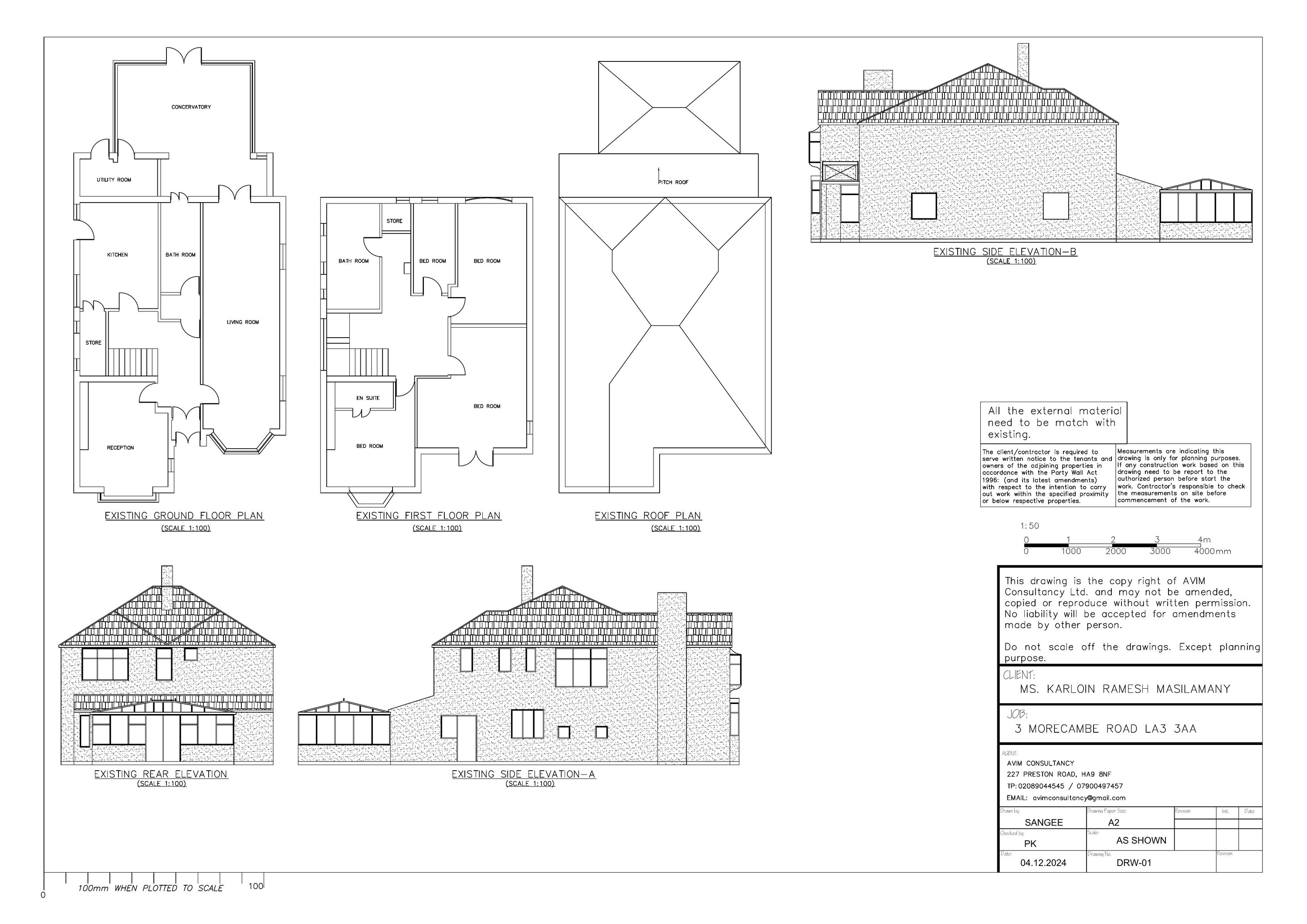
Decided House extension
Received
28 Mar 2025
New homes
0

Full proposal

Part retrospective application for the erection of a single storey rear extension

Documents

Application Forms (p)
Archived · Original link
Decision Notices (p)
Archived · Original link
Site Location Plans (p)
Archived · Original link
Officer Report (p)
Archived · Original link
Plans (p)
Archived · Original link

Have your say

Your comment matters. Councils must consider every representation that raises material planning considerations.

Write a comment