← Lancaster City Council

Status

Decided Change of use
Received
22 May 2025
New homes
4

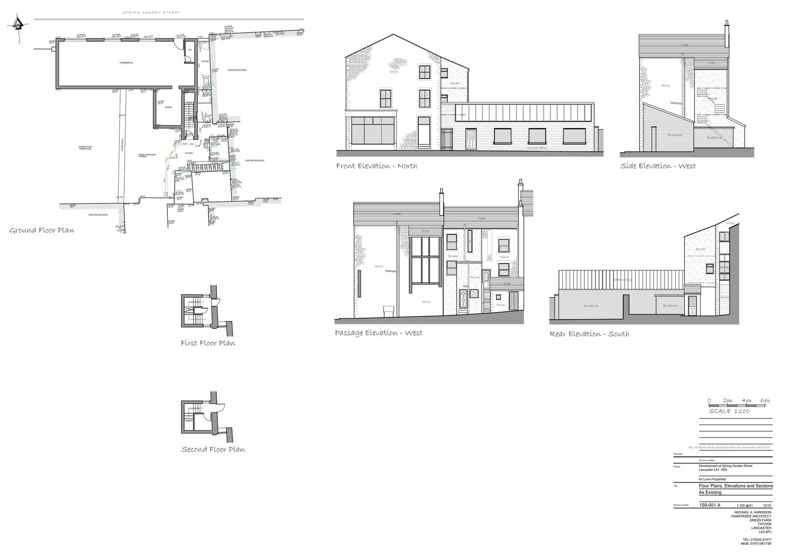
Full proposal

Erection of a single storey extension to the rear and a first floor extension above existing ground floor, conversion of existing property to mixed use compromising commercial units on ground floor and 4-bed student cluster flats on upper floors

Documents

Application Forms (p)
Archived · Original link
Application Amendments (p)
Archived · Original link
Consultee Response (p)
Archived · Original link
Consultee Response (p)
Archived · Original link
Consultee Response (p)
Archived · Original link
consultee response - lancaster civic vision
Consultee Response (p)
Not yet archived · Original link
Decision Notices (p)
Archived · Original link
Heritage Statement (p)
Archived · Original link
Plans (p)
Archived · Original link
Supporting Information (p)
Archived · Original link
Officer Report (p)
Archived · Original link
Supporting Information (p)
Archived · Original link
Plans (p)
Archived · Original link
Plans (p)
Archived · Original link

Have your say

Your comment matters. Councils must consider every representation that raises material planning considerations.

Write a comment