← Lancaster City Council

Status

Decided Demolition
Received
26 May 2025
New homes
0

Full proposal

Demolition of dwelling and erection of replacement self-build dwelling

Documents

(superceded) sustainability design and construction statement
Supporting Information (p)
Not yet archived · Original link
Application form
Application Forms (p)
Not yet archived · Original link
Bat report
Supporting Information (p)
Not yet archived · Original link
Carbon reduction calculator
Application Amendments (p)
Not yet archived · Original link
consultee response - county highways
Consultee Response (p)
Not yet archived · Original link
consultee response - environmental health
Consultee Response (p)
Not yet archived · Original link
Cover letter
Supporting Information (p)
Not yet archived · Original link
Cross ventilation calculator tool
Application Amendments (p)
Not yet archived · Original link
Decision notice
Decision Notices (p)
Not yet archived · Original link
Existing details
Plans (p)
Not yet archived · Original link
Plans (p)
Archived · Original link
Flood map
Supporting Information (p)
Not yet archived · Original link
Location plan
Site Location Plans (p)
Not yet archived · Original link
Planning, design and access statement
Supporting Information (p)
Not yet archived · Original link
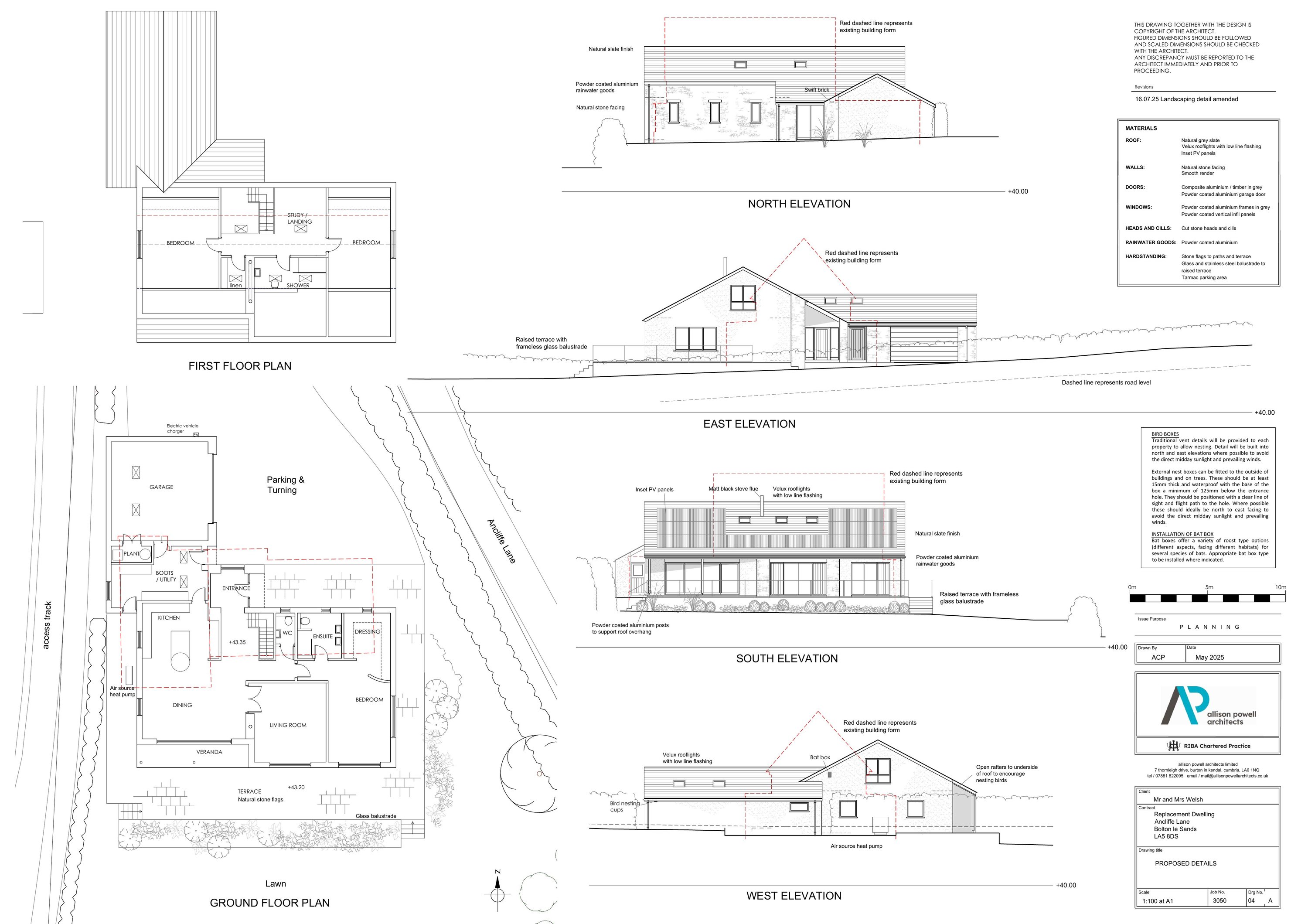
Proposed details
Plans - Superseded (p)
Not yet archived · Original link
Application Amendments (p)
Archived · Original link
Plans - Superseded (p)
Archived · Original link
Application Amendments (p)
Archived · Original link
S106 legal agreement redacted
S106 Public (p)
Not yet archived · Original link
Sap details
Application Amendments (p)
Not yet archived · Original link
Sustainability and construction statement ement
Application Amendments (p)
Not yet archived · Original link
Unilateral undertaking (draft)
S106 Public (p)
Not yet archived · Original link

Have your say

Your comment matters. Councils must consider every representation that raises material planning considerations.

Write a comment