← Lancaster City Council

Status

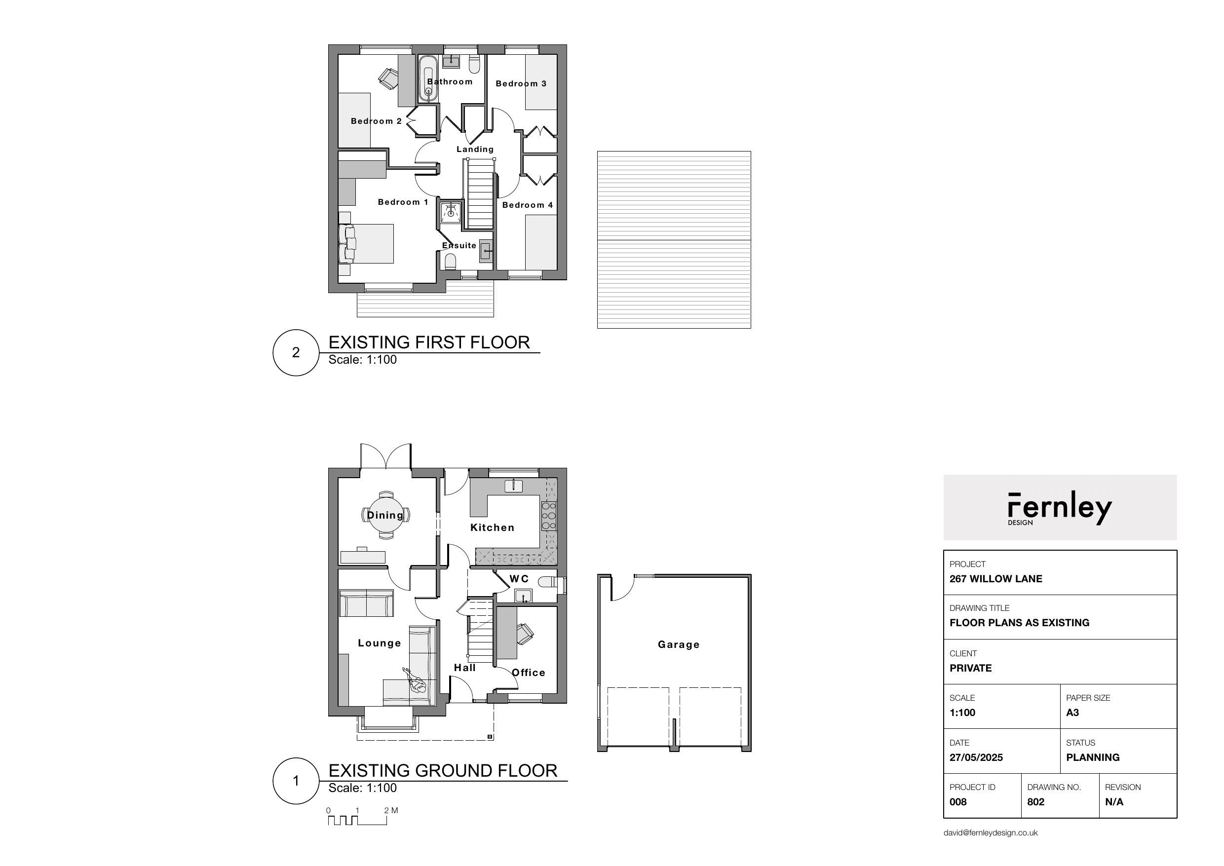
Decided House extension
Received
27 May 2025
New homes
0

Full proposal

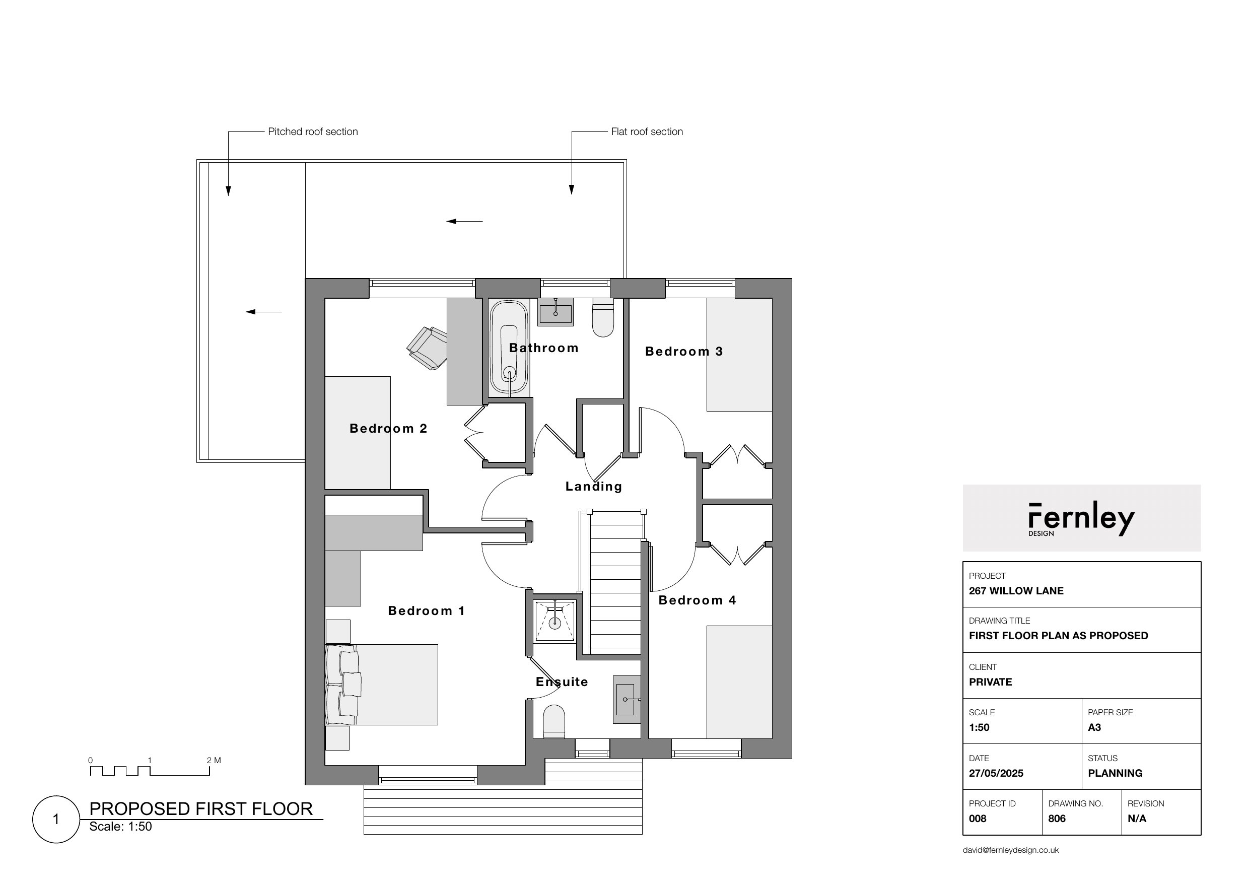
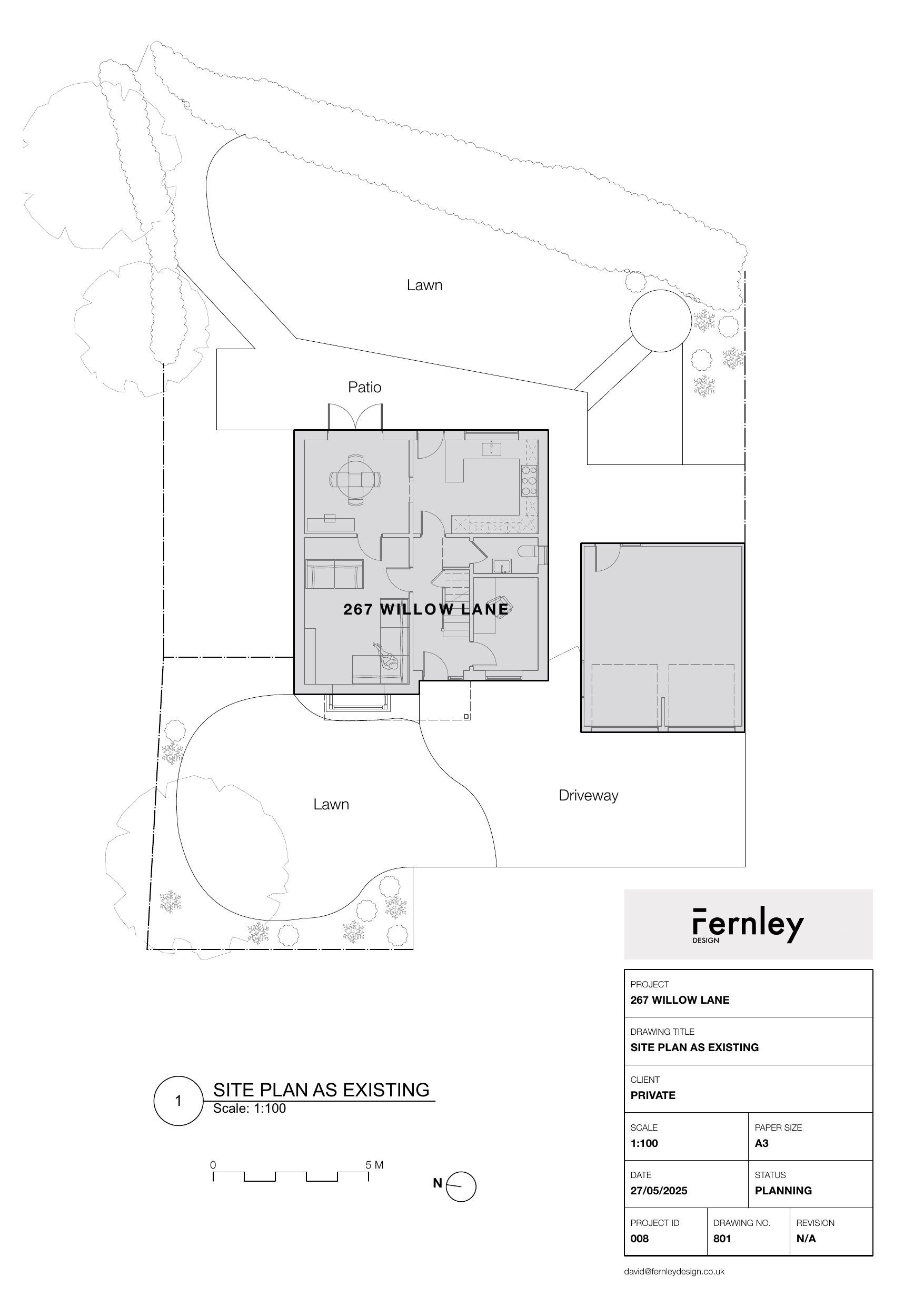
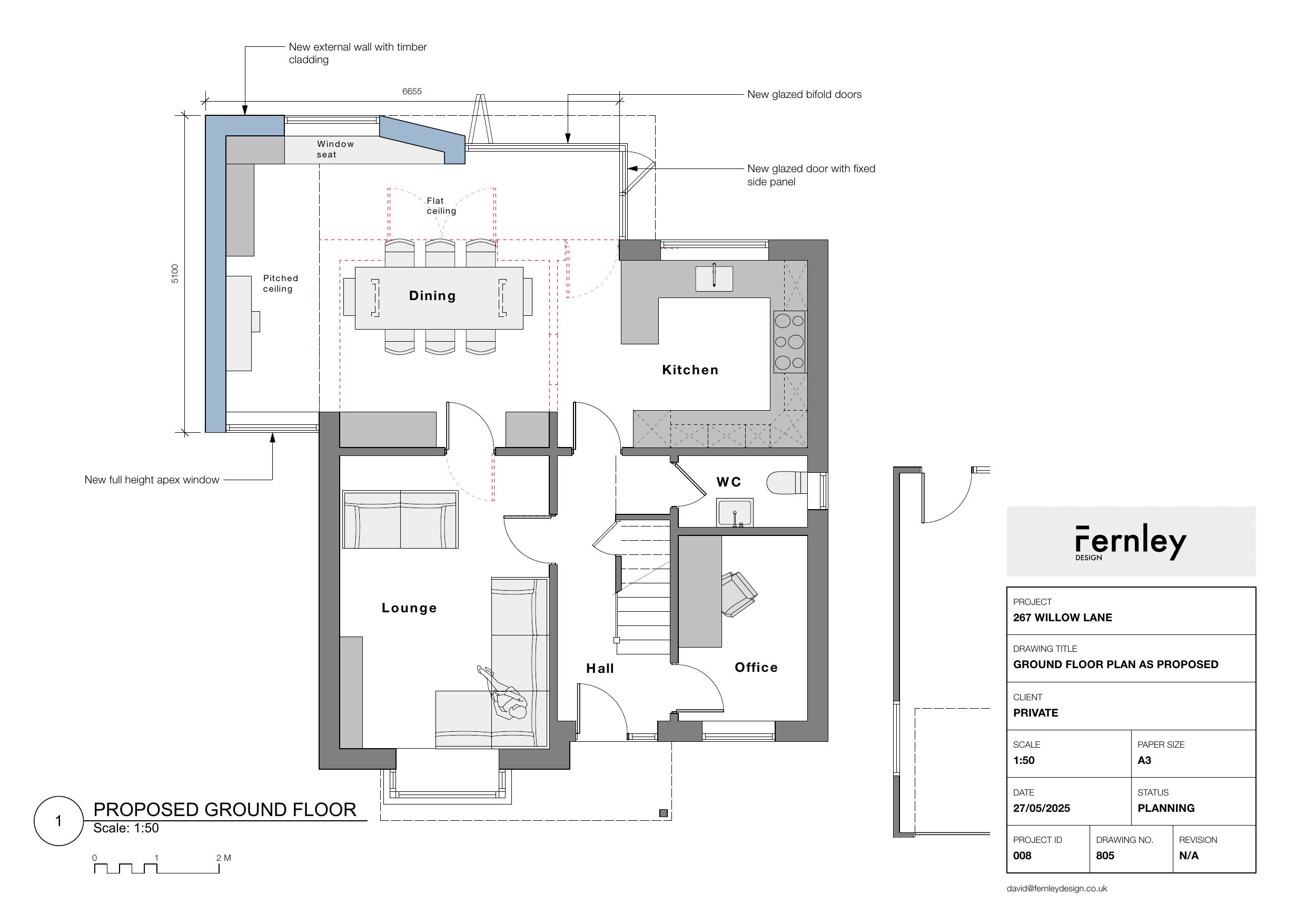
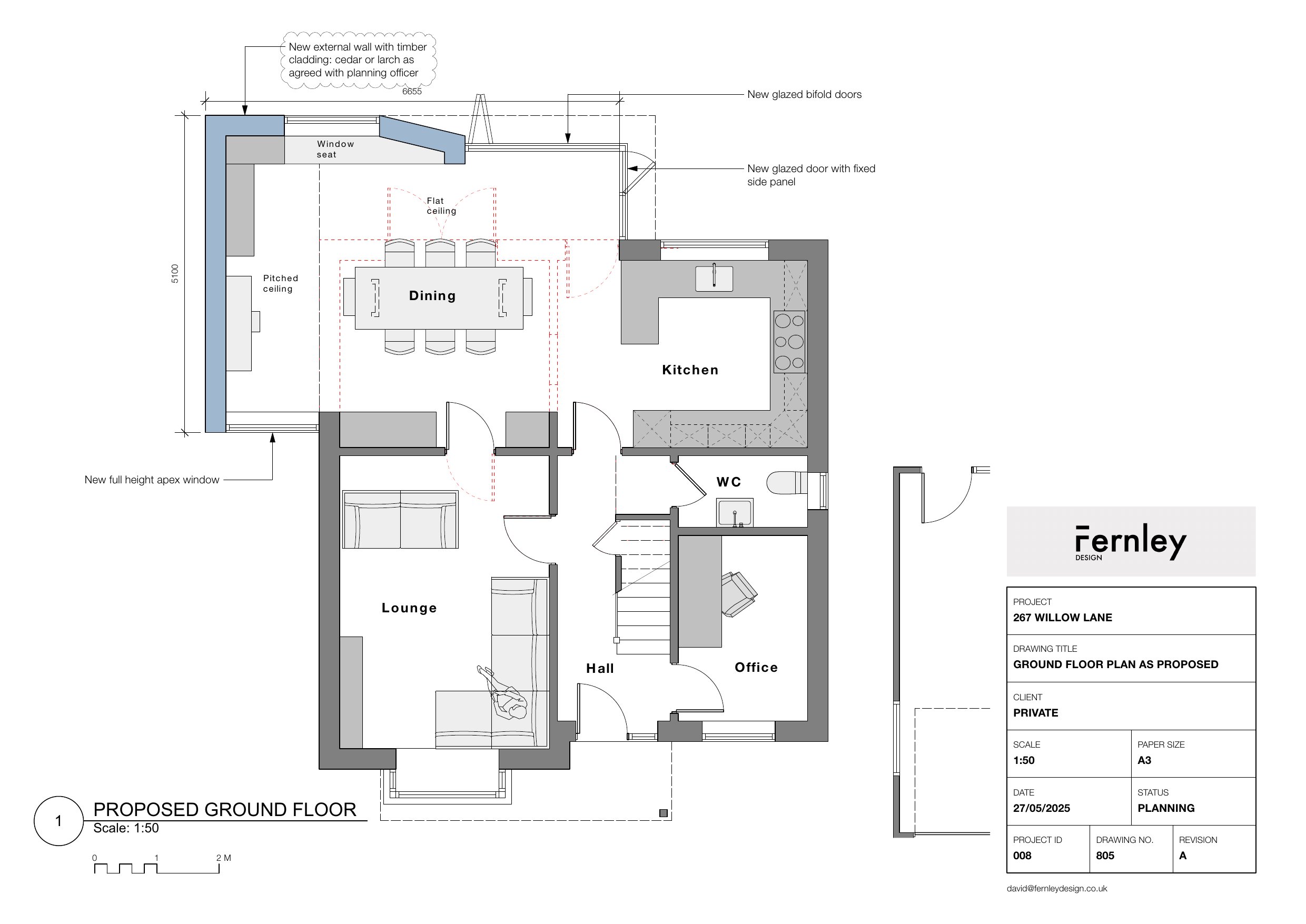
Erection of a single storey side and rear extension

Documents

Application Forms (p)
Archived · Original link
Consultee Response (p)
Archived · Original link
Decision Notices (p)
Archived · Original link
Plans (p)
Archived · Original link
Plans - Superseded (p)
Archived · Original link
Plans - Superseded (p)
Archived · Original link
Plans (p)
Archived · Original link
Officer Report (p)
Archived · Original link
Plans (p)
Archived · Original link
Application Amendments (p)
Archived · Original link
Application Amendments (p)
Archived · Original link
Plans (p)
Archived · Original link
Plans (p)
Archived · Original link

Have your say

Your comment matters. Councils must consider every representation that raises material planning considerations.

Write a comment