← Lancaster City Council

Status

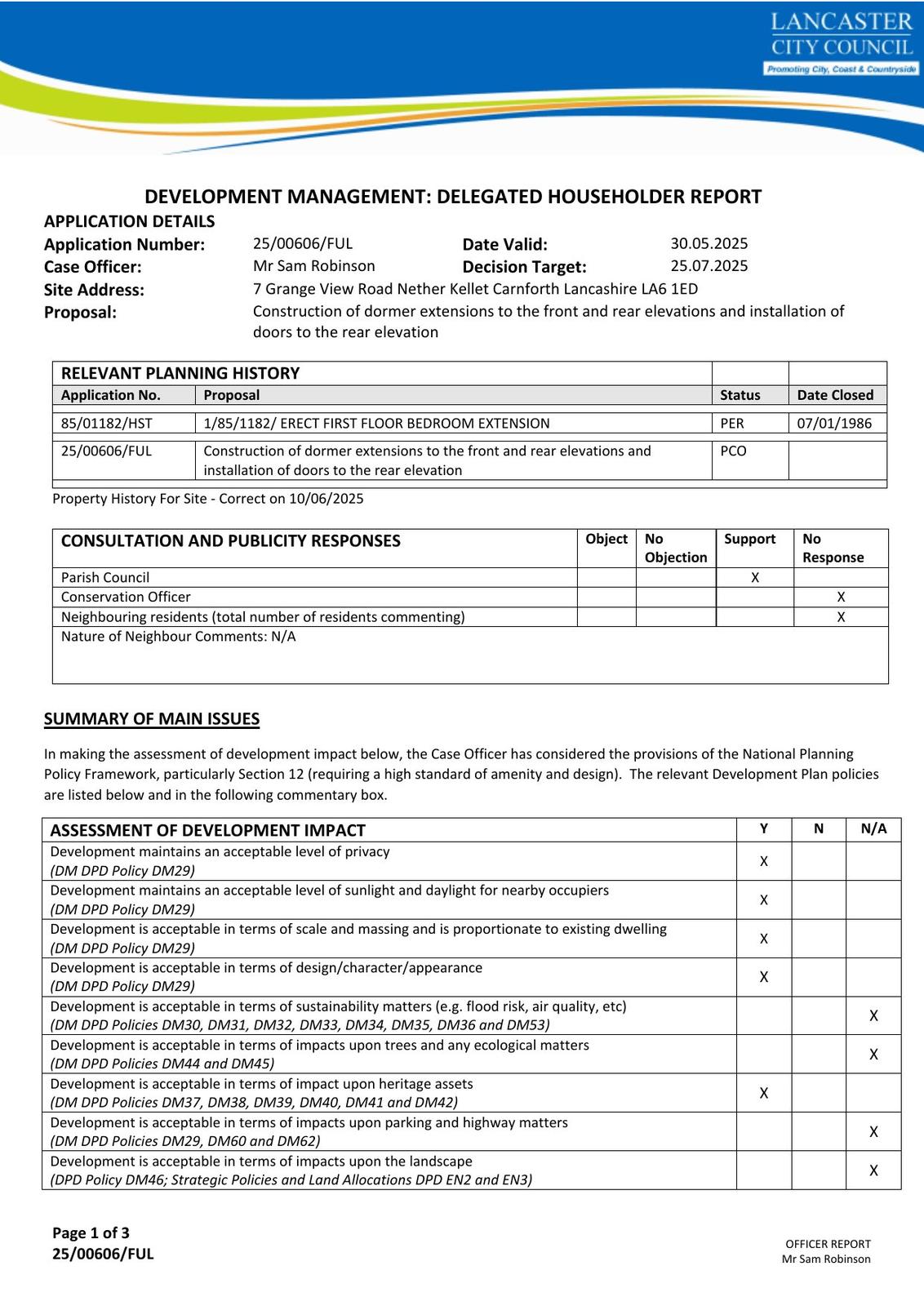
Decided House extension
Received
30 May 2025
New homes
0

Full proposal

Construction of dormer extensions to the front and rear elevations and installation of doors to the rear elevation

Documents

Application Forms (p)
Archived · Original link
Consultee Response (p)
Archived · Original link
Decision Notices (p)
Archived · Original link
Supporting Information (p)
Archived · Original link
Plans (p)
Archived · Original link
Officer Report (p)
Archived · Original link

Have your say

Your comment matters. Councils must consider every representation that raises material planning considerations.

Write a comment