← Leeds City Council

Status

Current Demolition
Received
Not recorded
New homes
0

Full proposal

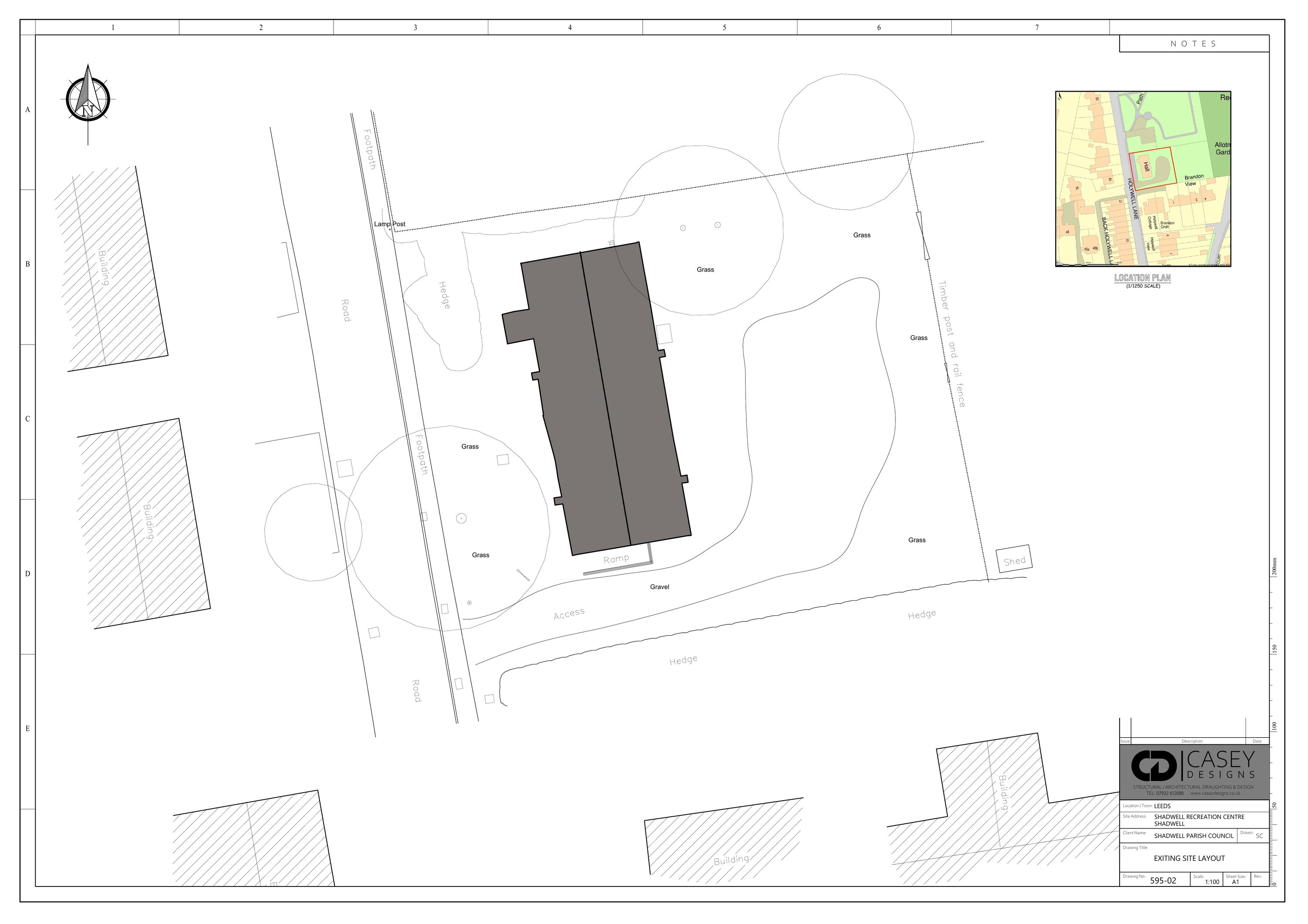
Demolition of existing community hall; erection of new community centre with associated parking, alterations to existing access, hard and soft landscaping works

Documents

BackGround Papers
Archived · Original link
Drawing
Archived · Original link
Drawing
Archived · Original link

Have your say

Your comment matters. Councils must consider every representation that raises material planning considerations.

Write a comment