← Leeds City Council

Status

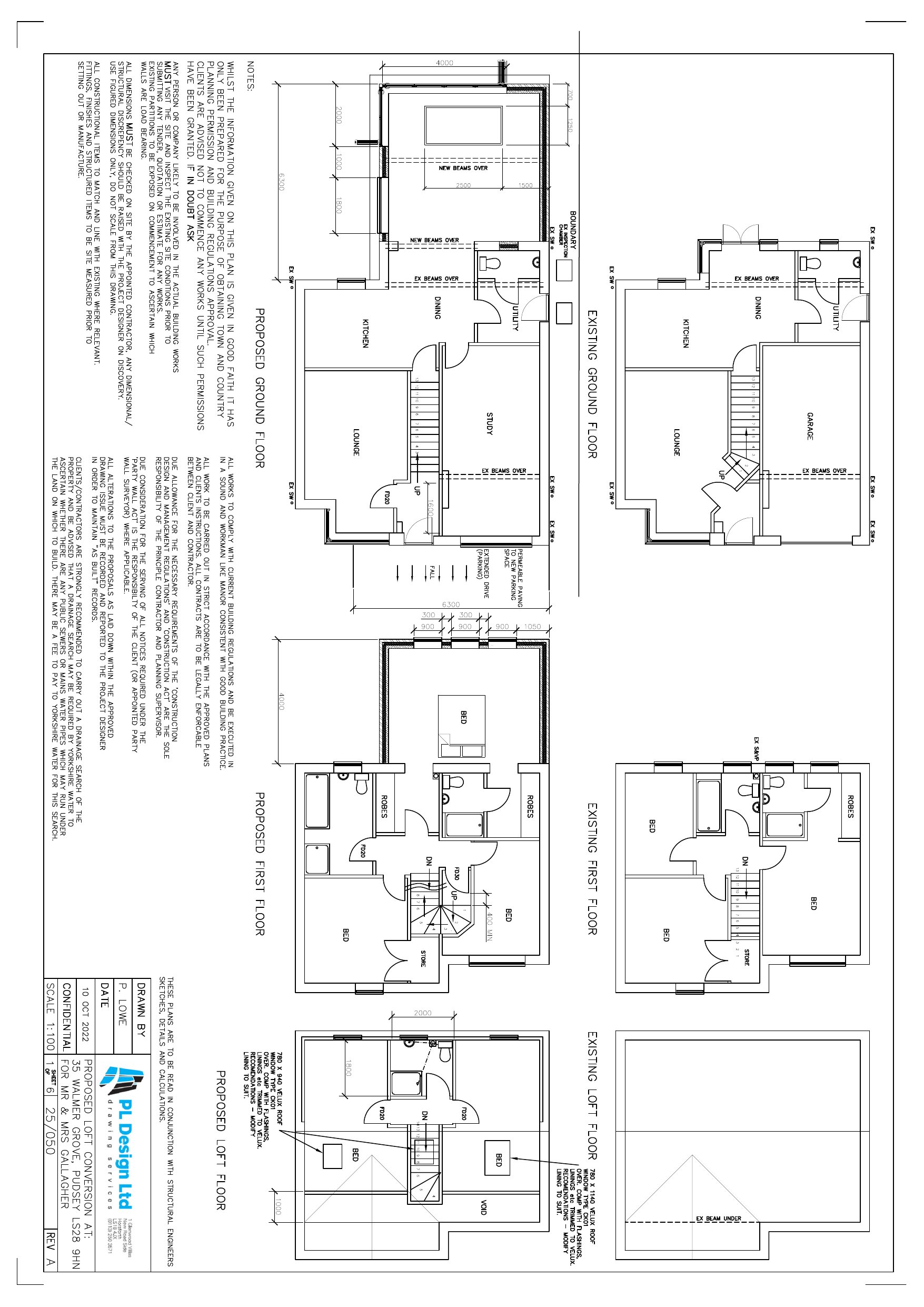
Current House extension
Received
Not recorded
New homes
0

Full proposal

Part two storey part single storey rear extension; loft conversion with dormer window to rear, roof lights to front; conversion of existing garage to habitable room; new parking space to be created to front

Documents

Consultee
Archived · Original link
Application Form
Archived · Original link
Drawing
Archived · Original link
Drawing
Archived · Original link
Drawing
Archived · Original link

Have your say

Your comment matters. Councils must consider every representation that raises material planning considerations.

Write a comment