25/07426/FU
Leeds City Council
Status
Current
House extension
Received
Not recorded
New homes
0
Full proposal
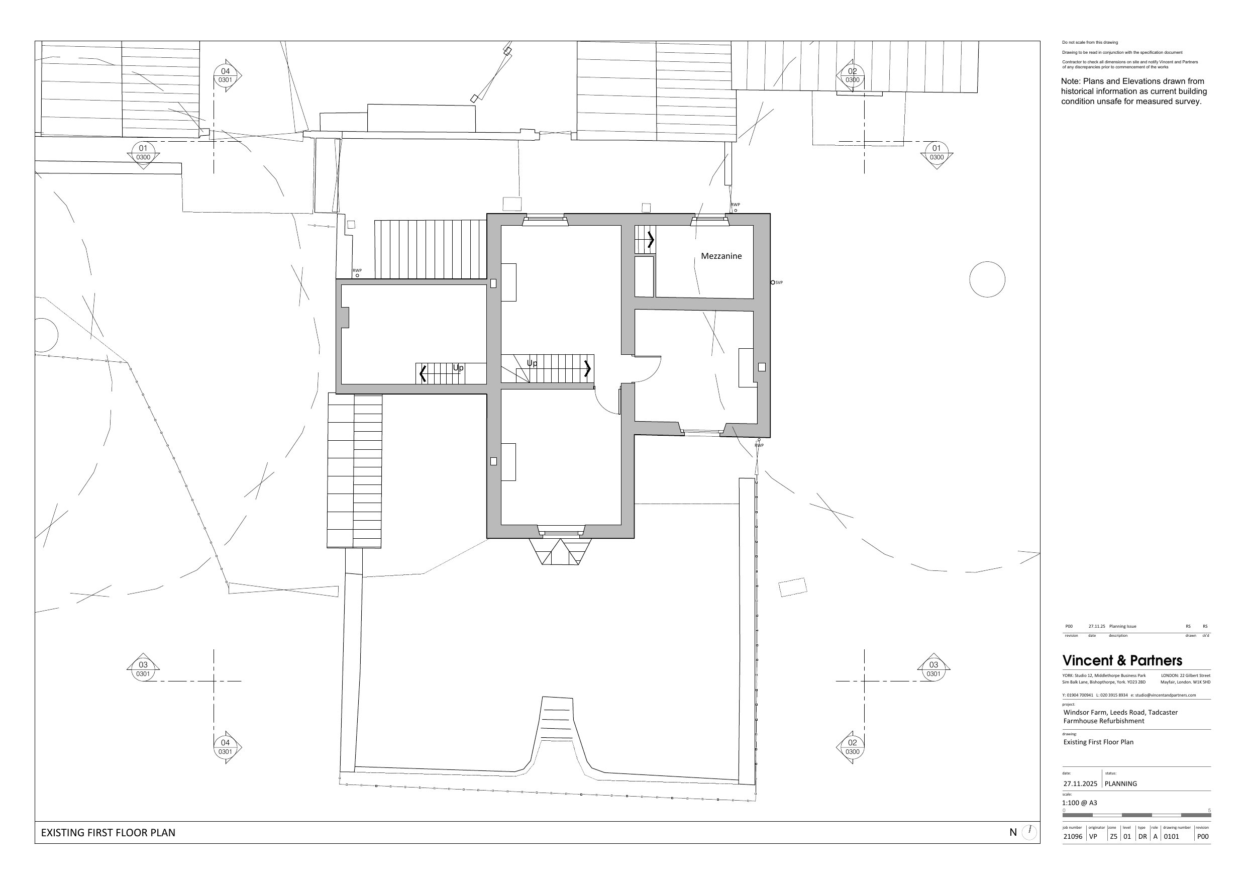
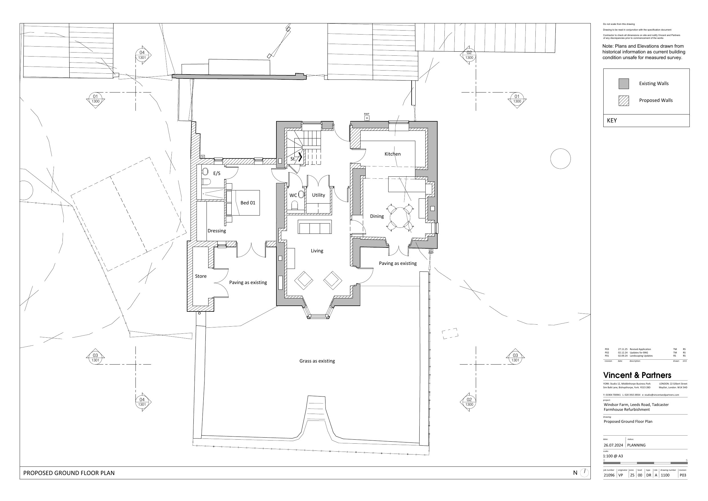
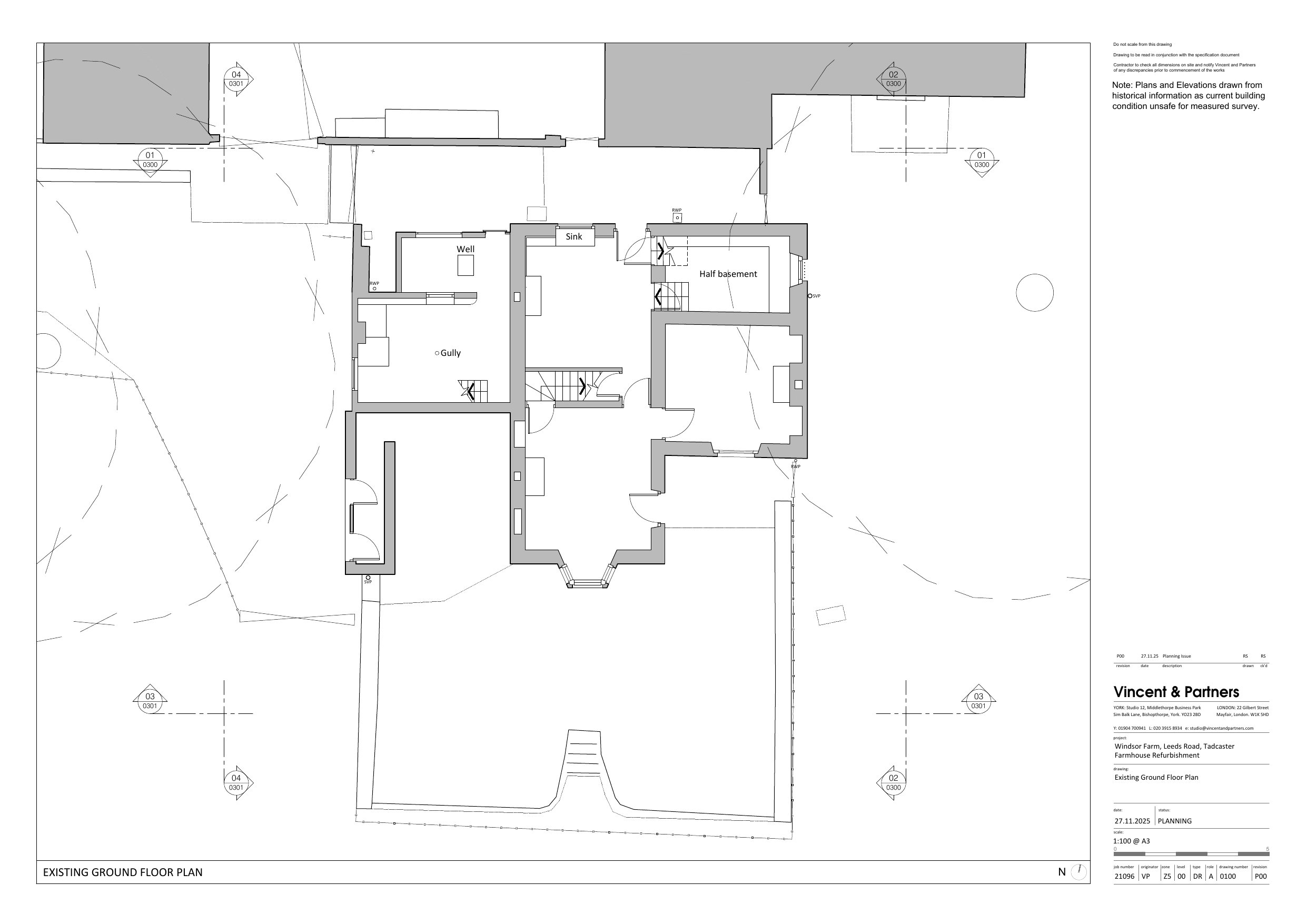
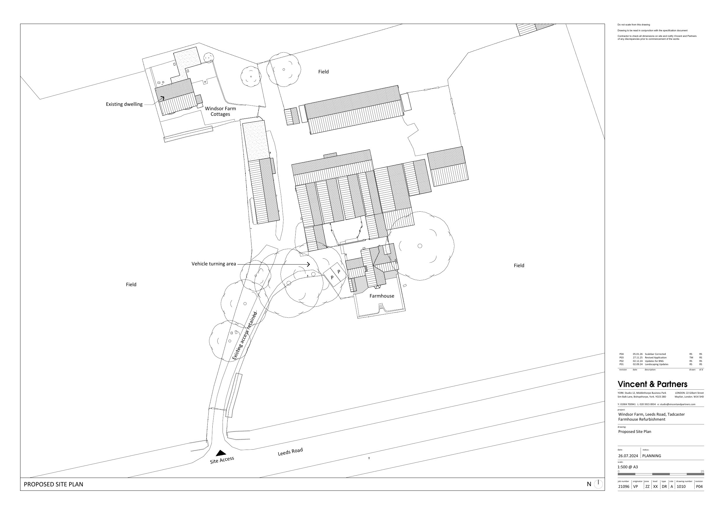
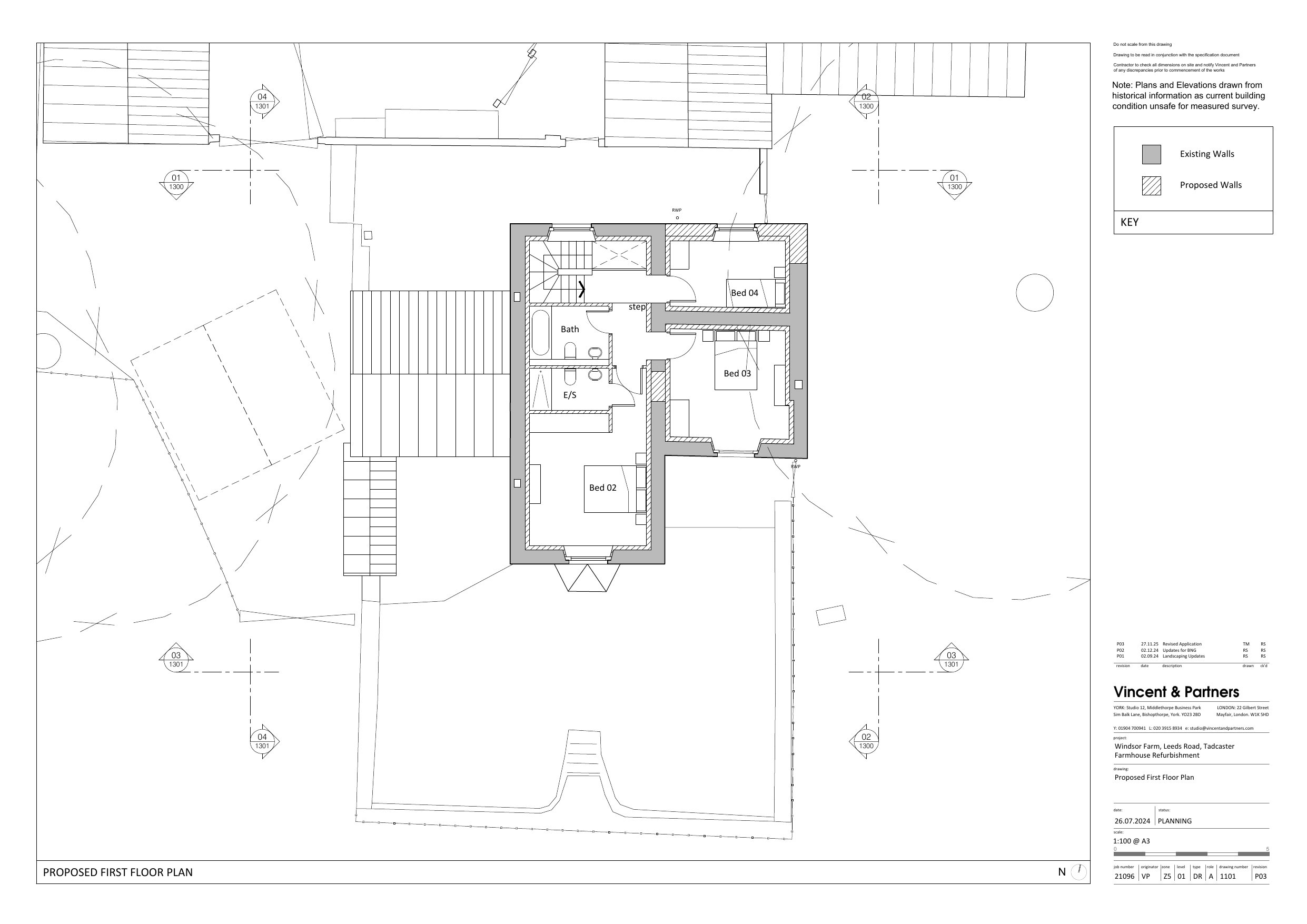
Demolition of existing single storey side extension, erection of single storey side extension, roof alterations including raising of eaves to front and side and new chimney, fenestration alterations to front and side, replacement windows throughout, replacement cladding throughout, removal of existing render, patio to front and side.
Documents
Have your say
Your comment matters. Councils must consider every representation that raises material planning considerations.