← Leeds City Council

Status

Current House extension
Received
Not recorded
New homes
0

Full proposal

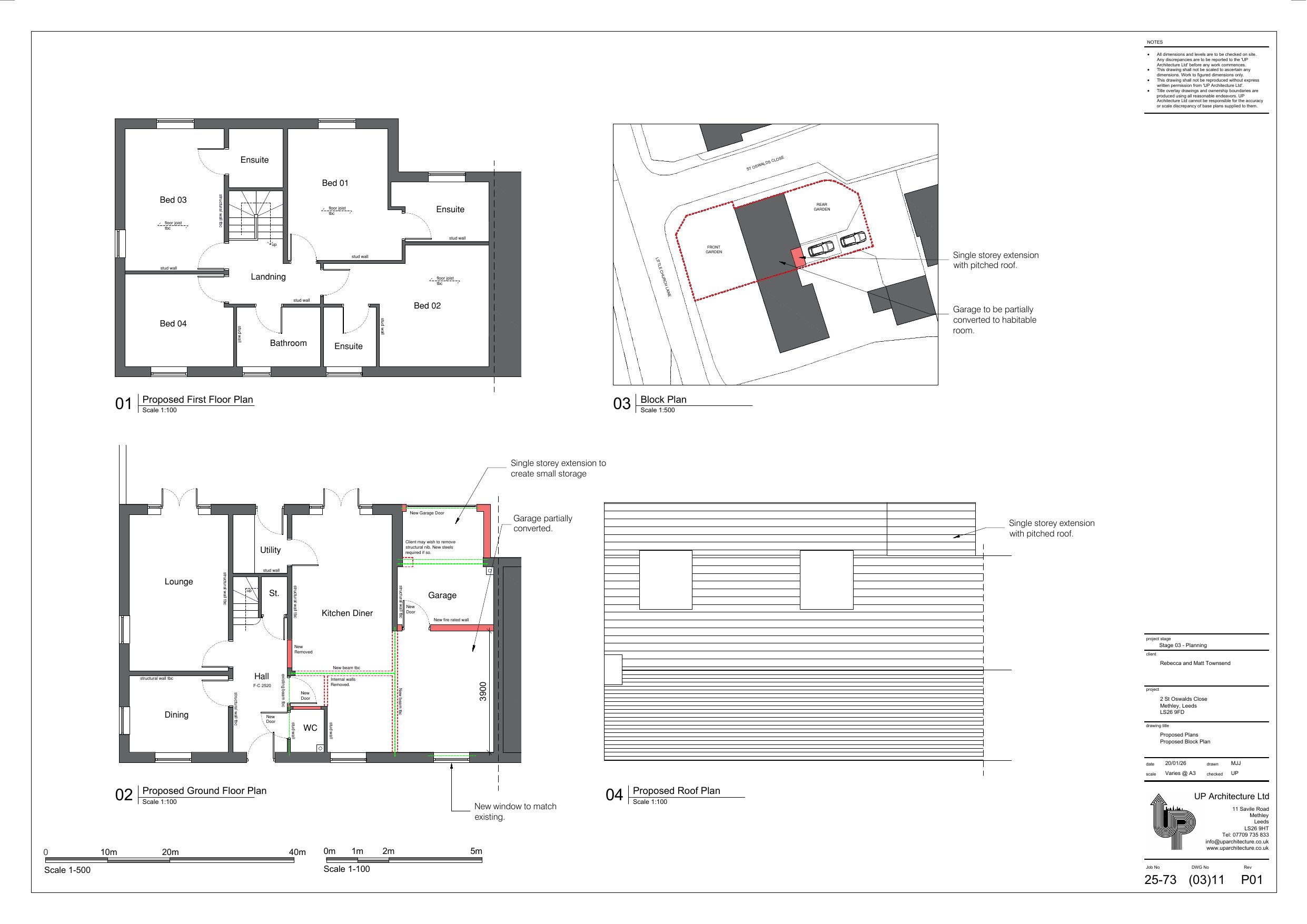
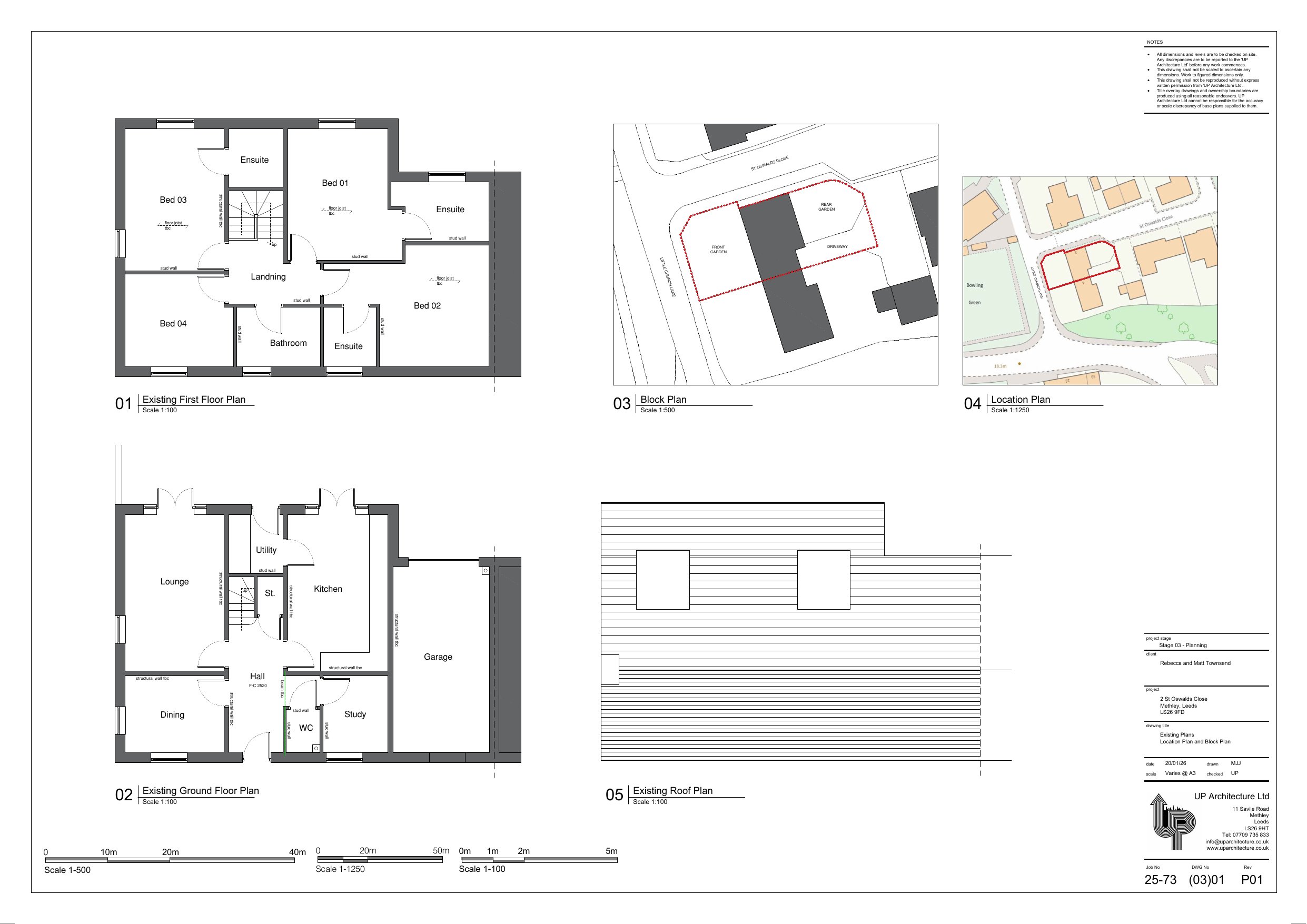
Single storey side extension with new pitched roof and part garage conversion to habitable room space

Documents

Drawing
Archived · Original link
Drawing
Archived · Original link
Drawing
Archived · Original link
Drawing
Archived · Original link
Drawing
Archived · Original link

Have your say

Your comment matters. Councils must consider every representation that raises material planning considerations.

Write a comment