← Leeds City Council

Status

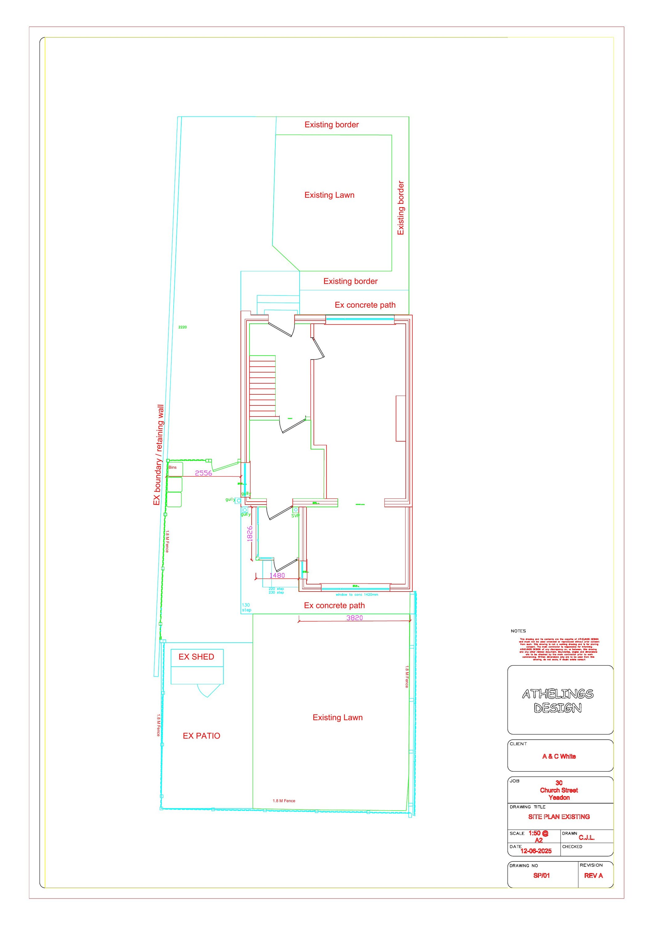
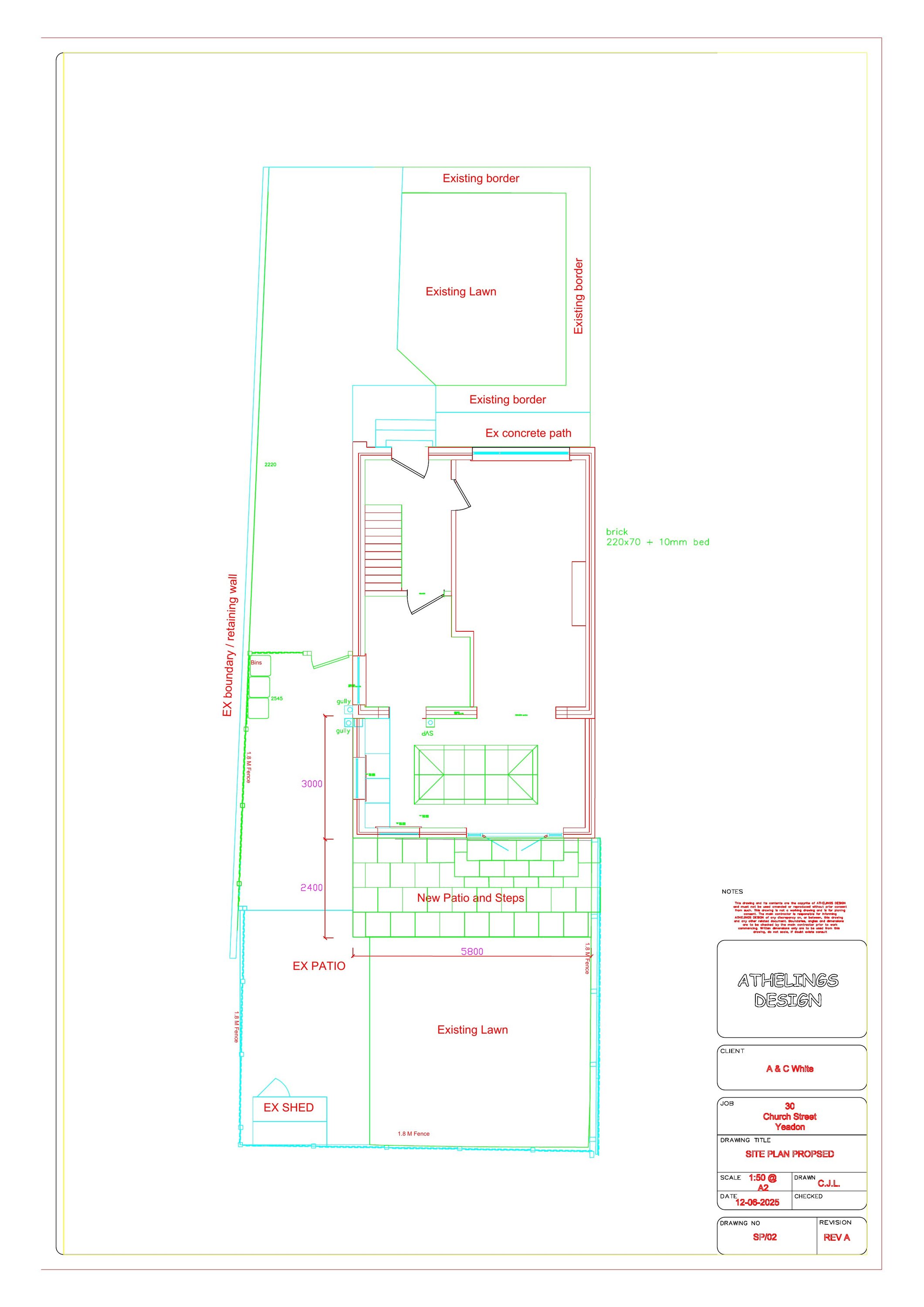
Current House extension
Received
Not recorded
New homes
0

Full proposal

Part demolition and alterations to existing rear extensions to form single storey rear extension and patio with stairs to rear

Have your say

Your comment matters. Councils must consider every representation that raises material planning considerations.

Write a comment