← Leeds City Council

Status

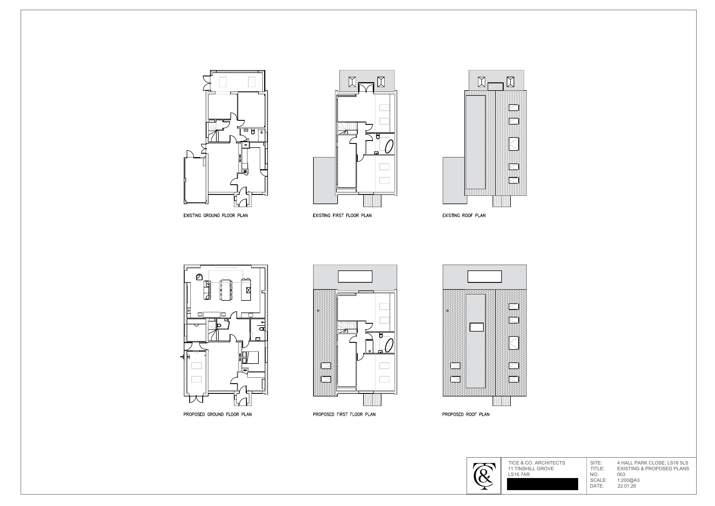
Current House extension
Received
Not recorded
New homes
0

Full proposal

Demolition of single storey elements to side and rear and construction of a single storey side and rear extension; blocking up of east side entrance; replacement of first floor rear window

Have your say

Your comment matters. Councils must consider every representation that raises material planning considerations.

Write a comment