← Leeds City Council

Status

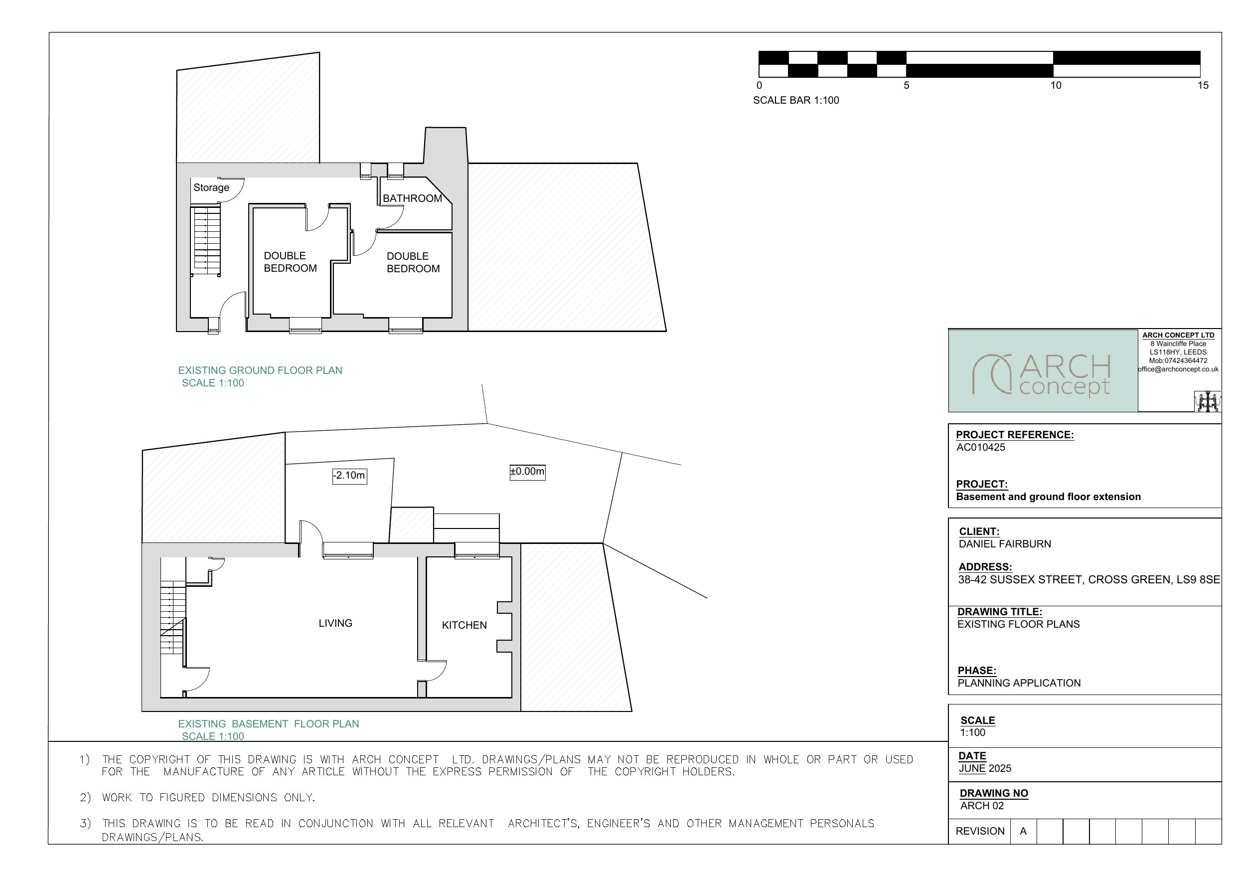
Current Change of use
Received
Not recorded
New homes
1

Full proposal

Division of existing dwelling and two storey rear extension to lower ground and ground floor to create two flats

Have your say

Your comment matters. Councils must consider every representation that raises material planning considerations.

Write a comment