← Leeds City Council

Status

Current Change of use
Received
Not recorded
New homes
5

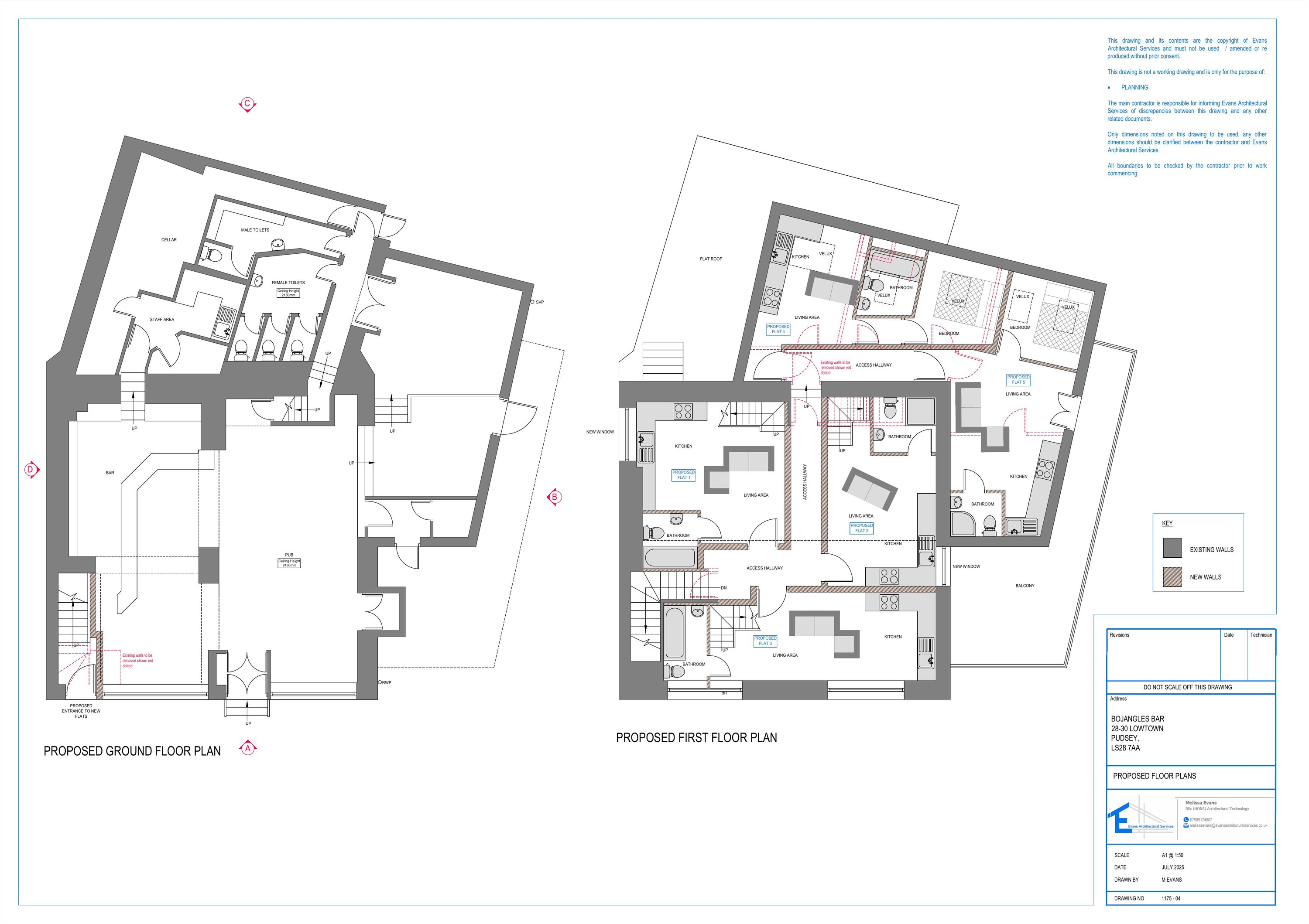
Full proposal

Change of use of the first floor level into five flats with creation of new entrance door to front; new windows to first floor

Documents

DESIGN AND ACCESS STATEMENT
BackGround Papers
Not yet archived · Original link
EXISTING ELEVATIONS
Drawing
Not yet archived · Original link
EXISTING FLOOR PLANS
Drawing
Not yet archived · Original link
Drawing
Archived · Original link
LOCATION PLAN
Drawing
Not yet archived · Original link
PLANNING APPLICATION FORM
Application Form
Not yet archived · Original link
PROPOSED ELEVATIONS
Drawing
Not yet archived · Original link
Drawing
Archived · Original link
Drawing
Archived · Original link

Have your say

Your comment matters. Councils must consider every representation that raises material planning considerations.

Write a comment