← Leeds City Council

Status

Current House extension
Received
Not recorded
New homes
0

Full proposal

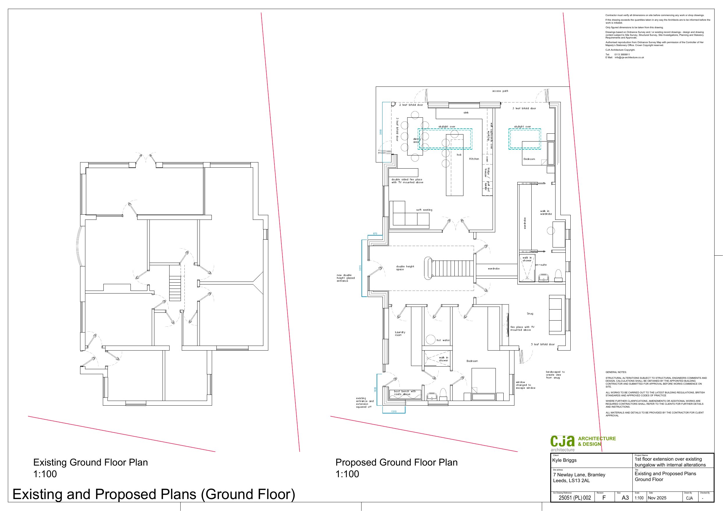
Alterations to bungalow form two-storey dwelling house incorporating gable extensions to both sides, raising of ridge height, dormer windows to front and roof lights to rear, removal of chimneys and installation of PV panels; part two and single storey front and side extension; amendments to fenestration

Documents

APPLICATION FORM
Application Form
Not yet archived · Original link
ARBORICULTURAL IMPACT ASSESSMENT
Drawing
Not yet archived · Original link
ARBORICULTURAL IMPACT STATEMENT
BackGround Papers
Not yet archived · Original link
ARBORICULTURAL SURVEY DATA
BackGround Papers
Not yet archived · Original link
DESIGN AND ACCESS STATEMENT
BackGround Papers
Not yet archived · Original link
EXISTING AND PROPOSED ELEVATIONS 1
Drawing
Not yet archived · Original link
EXISTING AND PROPOSED ELEVATIONS 2
Drawing
Not yet archived · Original link
Drawing
Archived · Original link
OS LOCATION PLAN
Drawing
Not yet archived · Original link
Drawing
Archived · Original link
TREE PROTECTION PLAN
Drawing
Not yet archived · Original link
TREE SURVEY & CONSTRAINTS PLAN
Drawing
Not yet archived · Original link

Have your say

Your comment matters. Councils must consider every representation that raises material planning considerations.

Write a comment