← Leeds City Council

Status

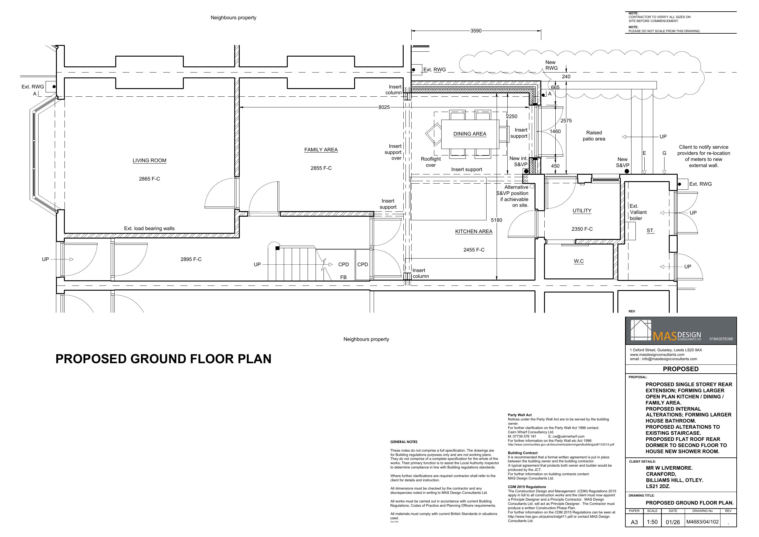
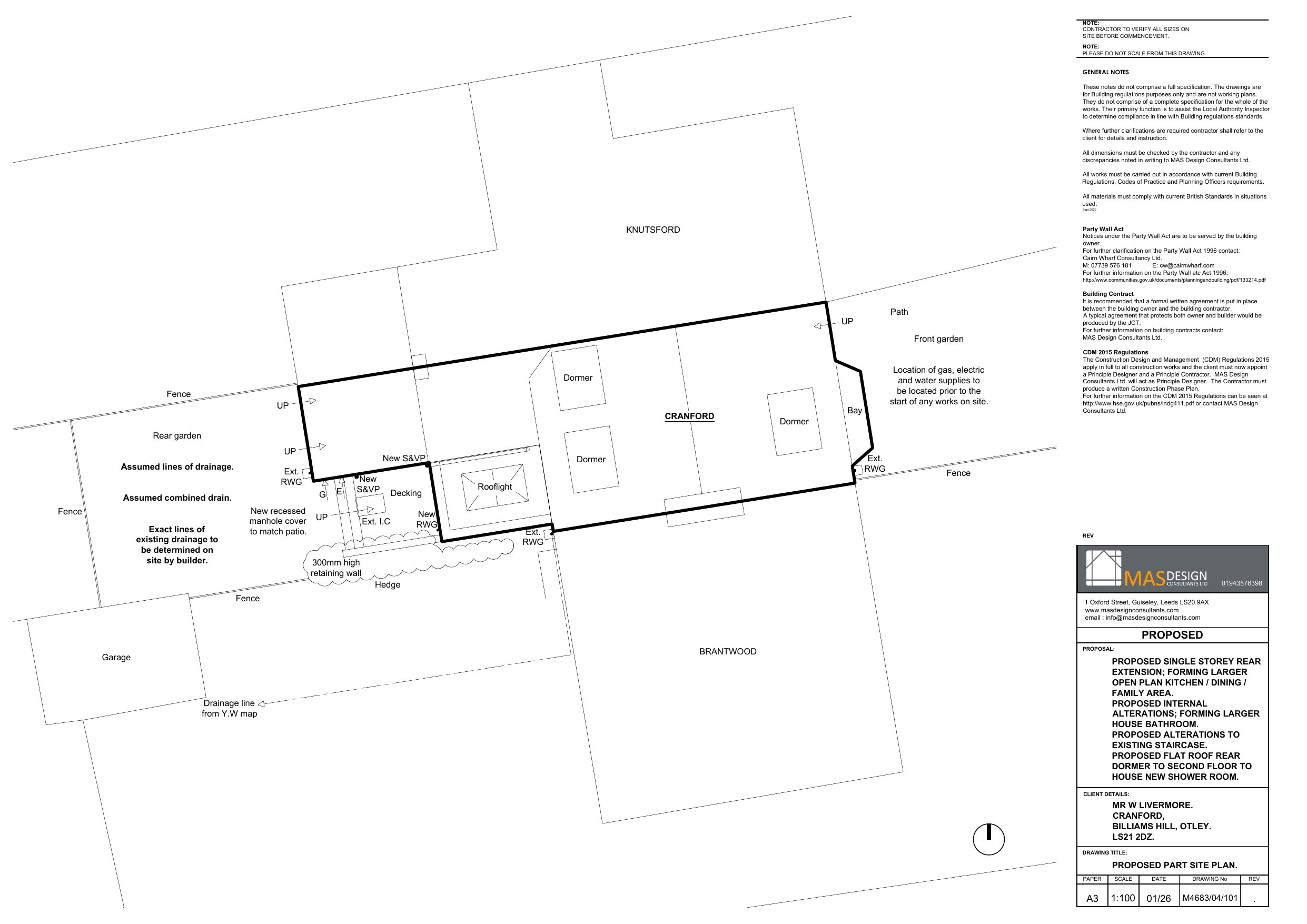
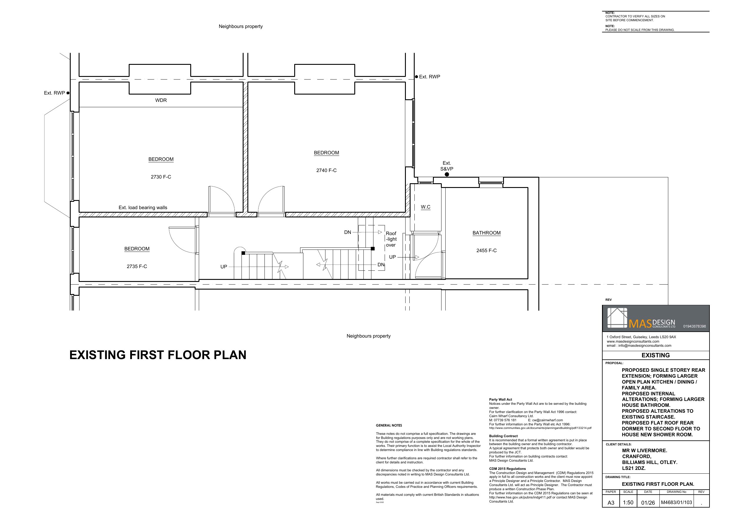
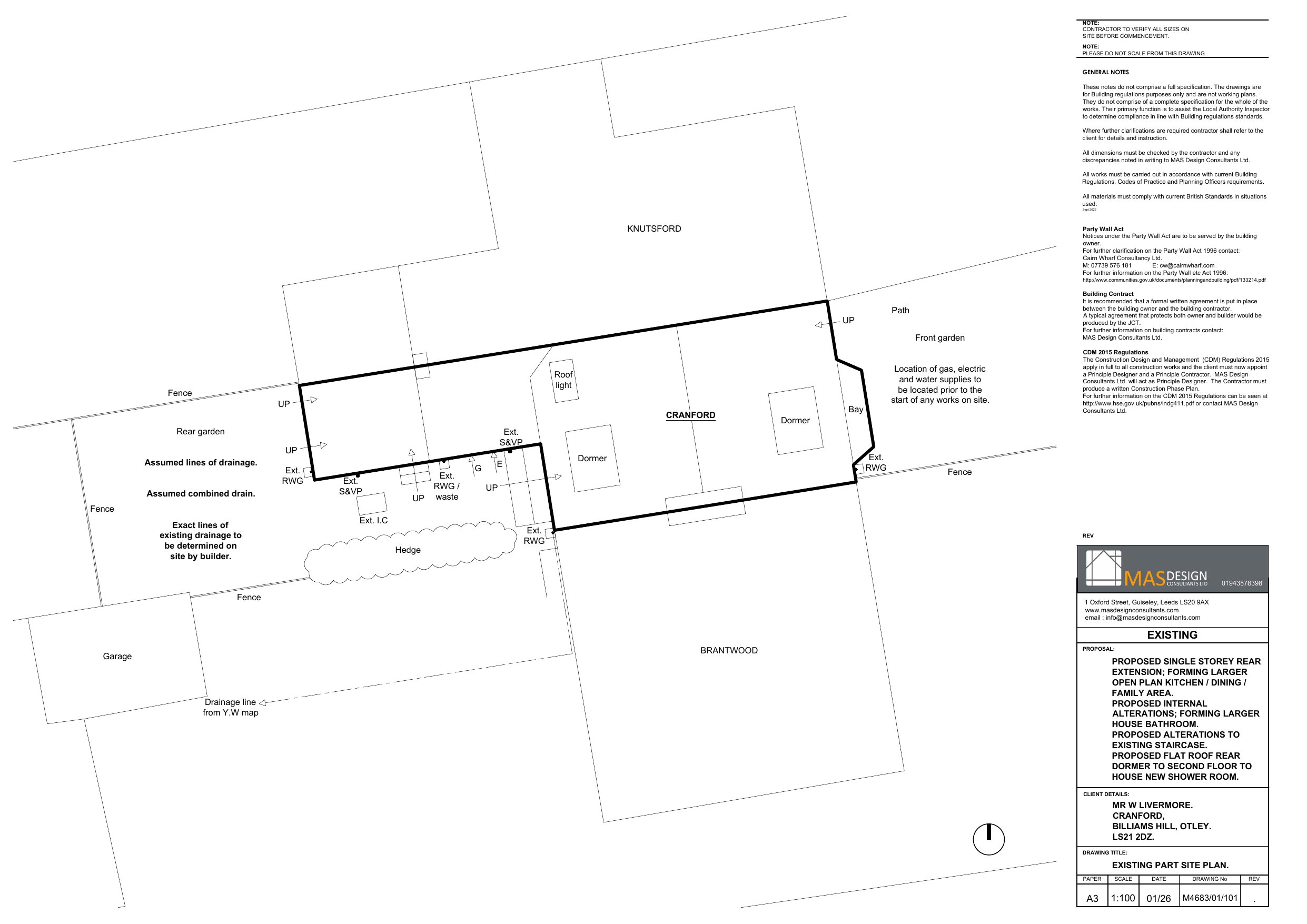
Current House extension
Received
Not recorded
New homes
0

Full proposal

Single storey rear extension; dormer window to the rear

Have your say

Your comment matters. Councils must consider every representation that raises material planning considerations.

Write a comment