← Leeds City Council

Status

Current House extension
Received
Not recorded
New homes
0

Full proposal

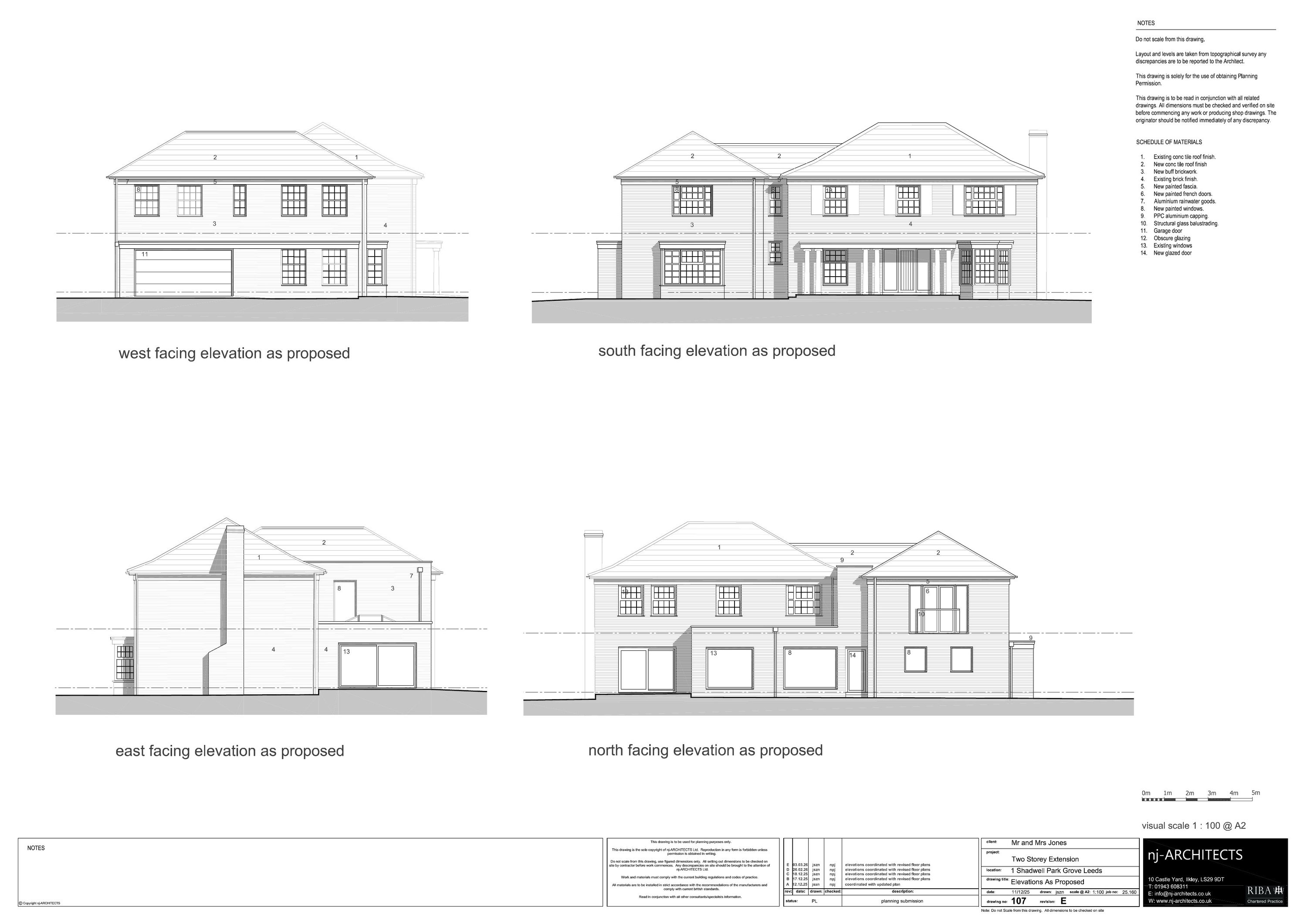
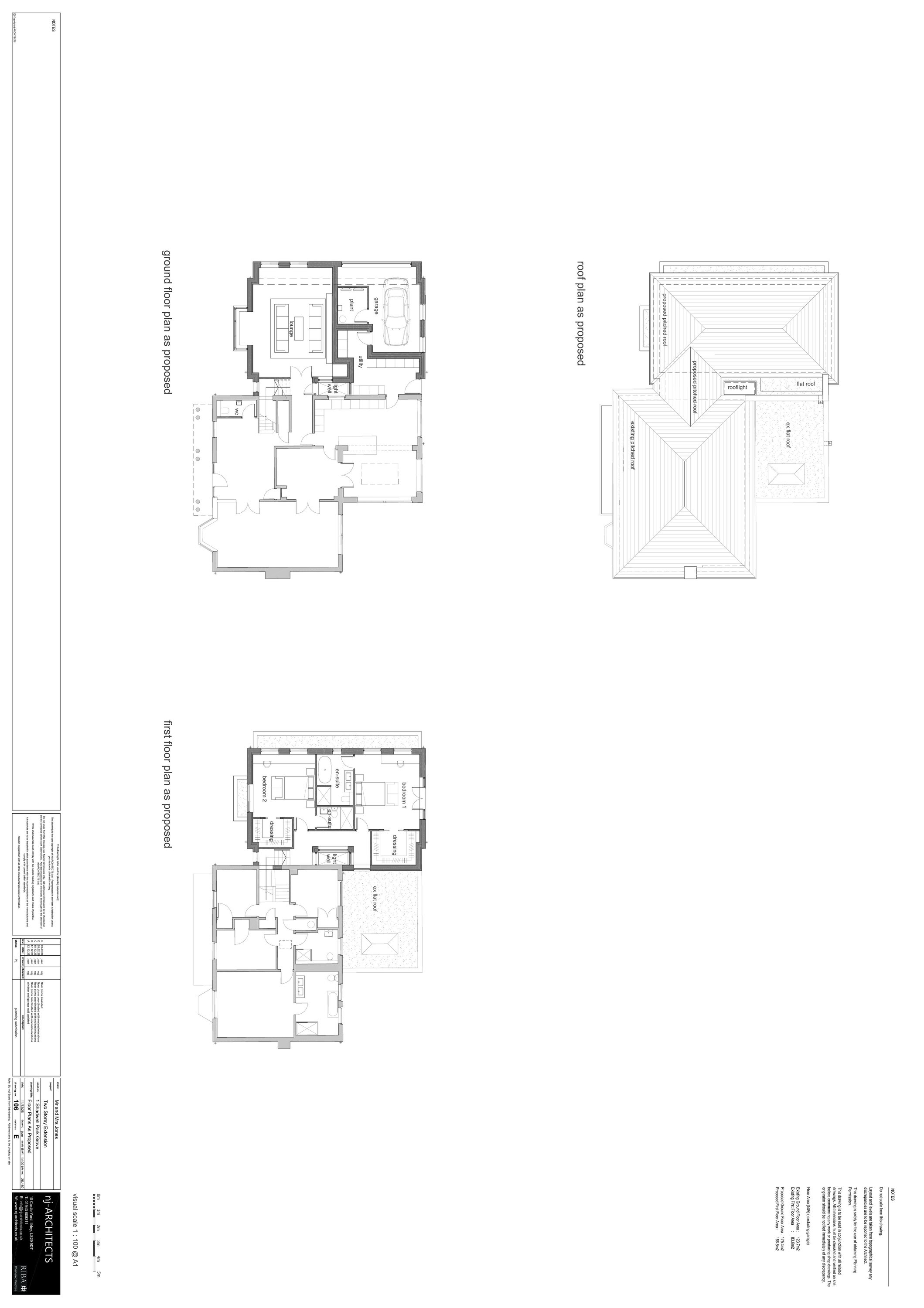
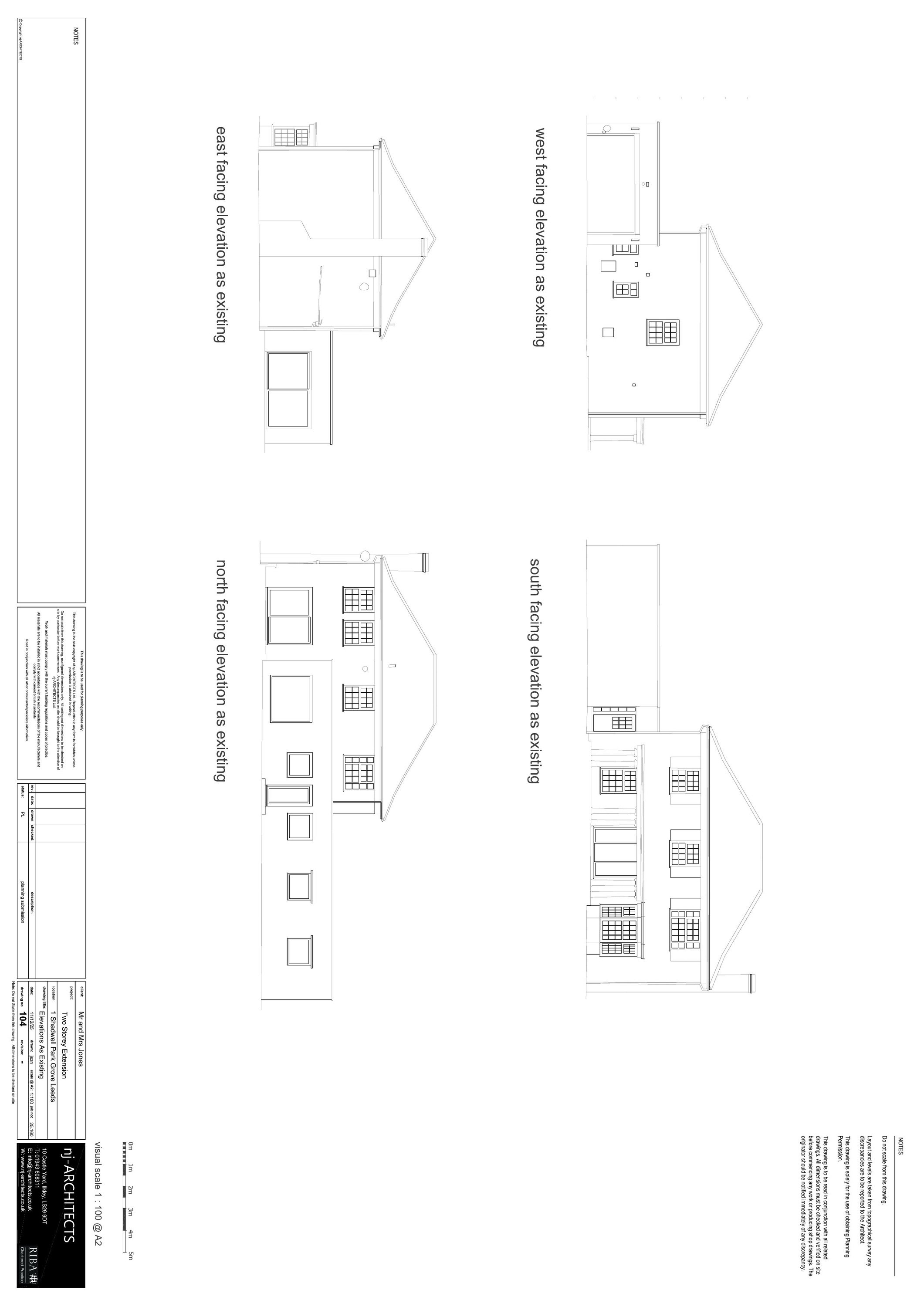
Demolition of garage to side; replaced with two storey side extension with first floor rear juliette balcony and canopy to ground floor front

Documents

BackGround Papers
Archived · Original link
Drawing
Archived · Original link
Application Form
Archived · Original link
Consultee
Archived · Original link
Drawing
Archived · Original link
Drawing
Archived · Original link

Have your say

Your comment matters. Councils must consider every representation that raises material planning considerations.

Write a comment