← Leeds City Council

Status

Current House extension
Received
Not recorded
New homes
0

Full proposal

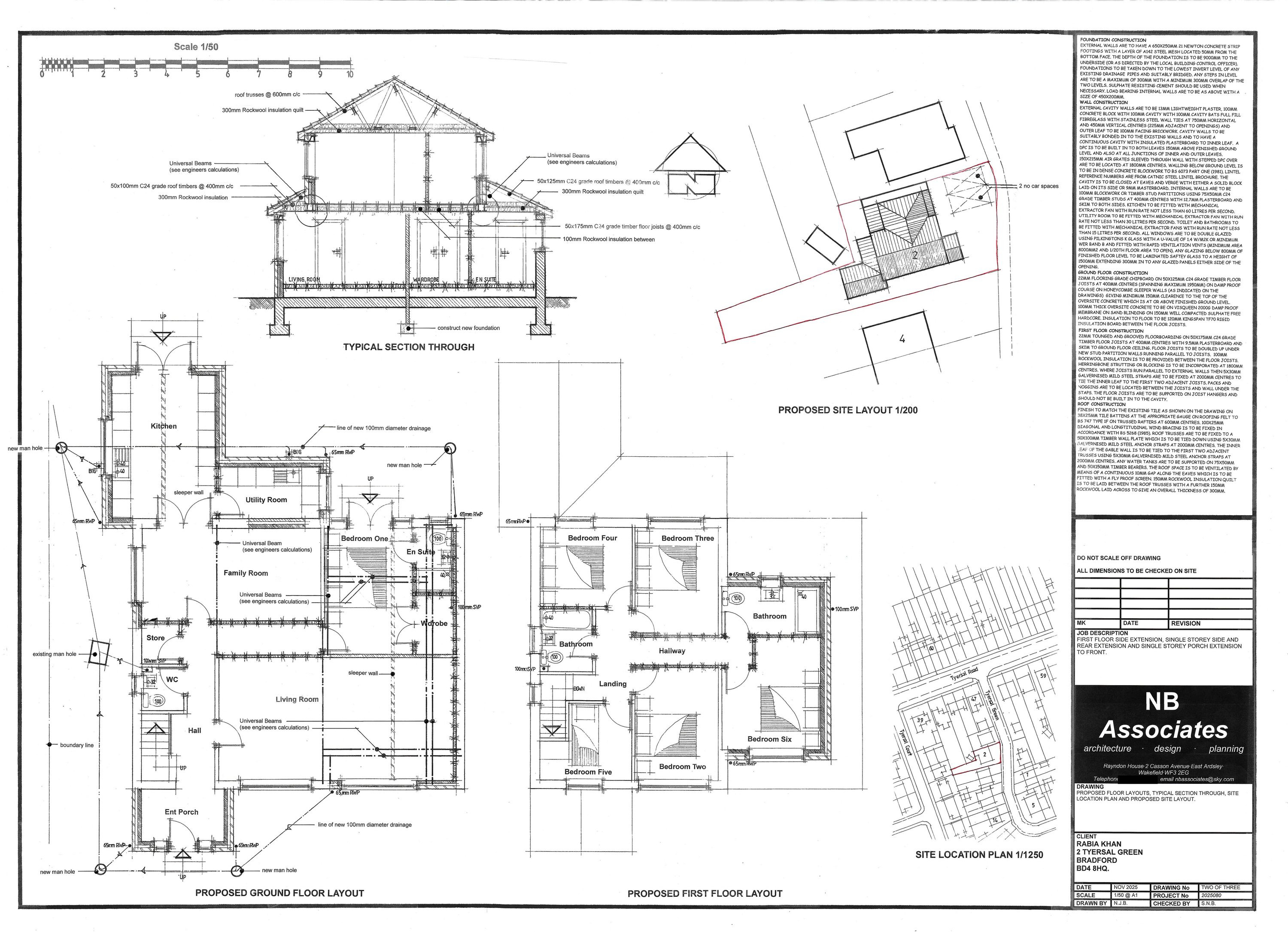
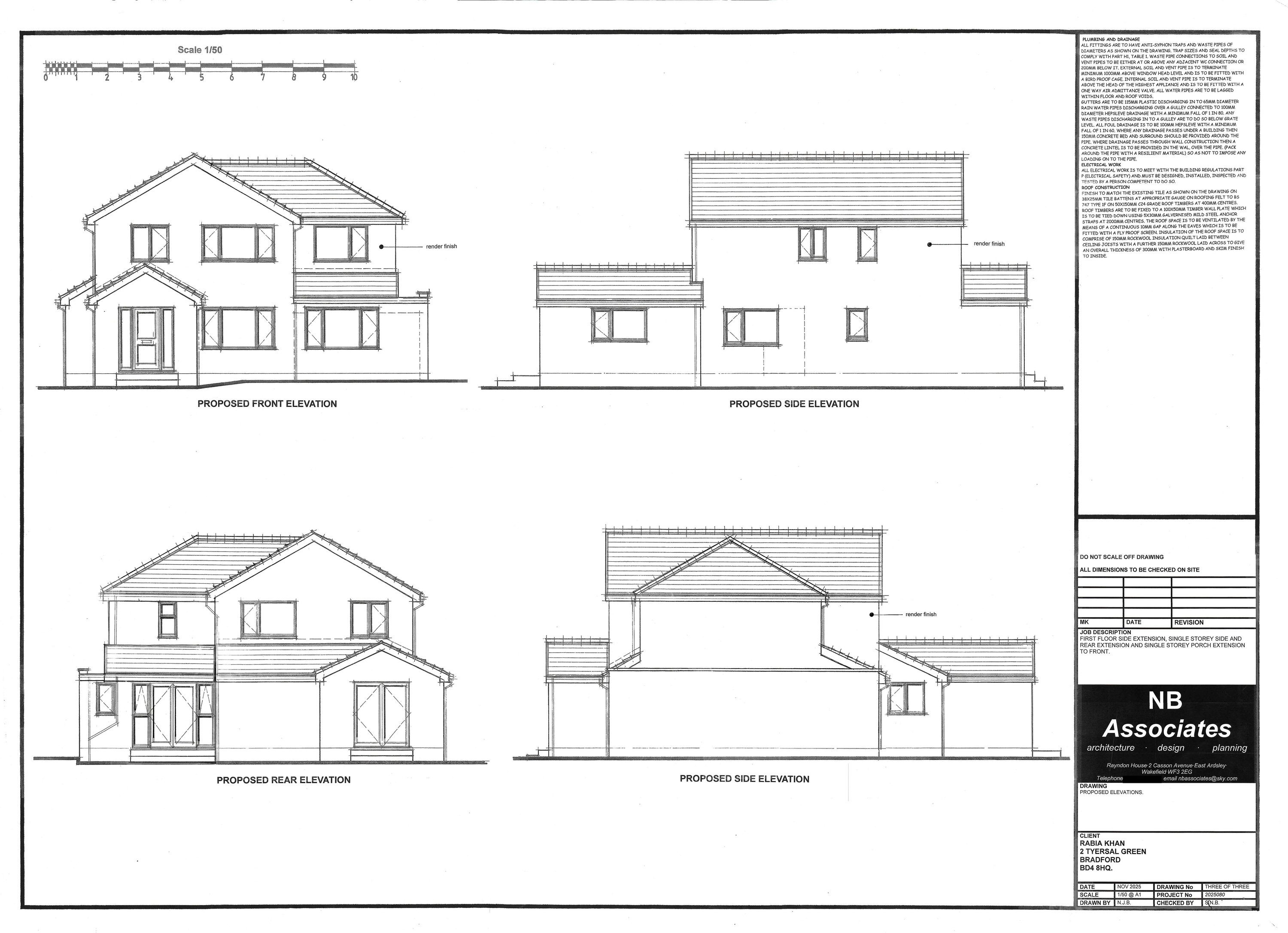
Single storey front extension; first floor side extension; conversion of integral garage to habitable rooms; single storey rear and side extension; alteration of a door to window to side

Have your say

Your comment matters. Councils must consider every representation that raises material planning considerations.

Write a comment