← Lewisham

Status

Registered New housing
Received
06 Nov 2025
New homes
0

Full proposal

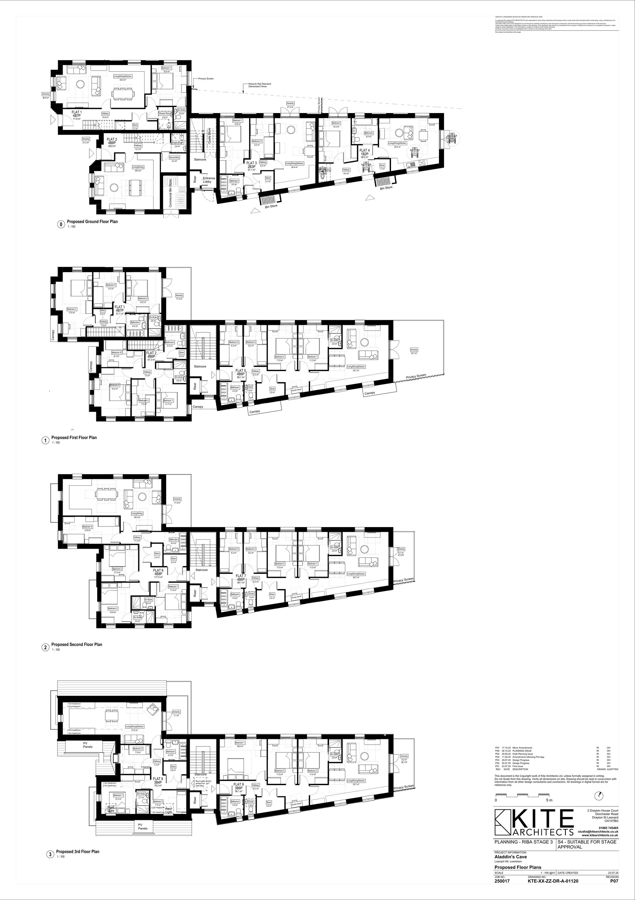
Demolition of existing building on the site and construction of a building to provide self-contained unit residential development (Use Class C3), together with enclosed air source pump and solar panels on roof, private garden space, associated communal amenity space, wildlife garden, cycle parking, storage, landscaping and all associated works at 72 Loampit Hill, SE13.

Documents

Affordable housing contributions on small sites payment in lieu calculator
Case Copy Documents
Not yet archived · Original link
Air quality statement
Case Copy Documents
Not yet archived · Original link
Application form
Application Form
Not yet archived · Original link
Arboricultural impact assessment & method statement
Case Copy Documents
Not yet archived · Original link
Breeam nc residential v6.1-contractors reqs
Case Copy Documents
Not yet archived · Original link
Breeam new construction residential v6.1 (formerly hqm)
Case Copy Documents
Not yet archived · Original link
Breeam uk new construction residential
Case Copy Documents
Not yet archived · Original link
Design and access statement
Case Copy Documents
Not yet archived · Original link
Ecological impact assessment sept 25
Case Copy Documents
Not yet archived · Original link
Existing elevations
Case Copy Drawings
Not yet archived · Original link
Existing ground fl. & roof plan
Case Copy Drawings
Not yet archived · Original link
Case Copy Drawings
Archived · Original link
Ground level lighting plots
Case Copy Drawings
Not yet archived · Original link
Internal lighting layouts
Case Copy Drawings
Not yet archived · Original link
Internal spill light calculations lr2336-02
Case Copy Documents
Not yet archived · Original link
Lighting layout
Case Copy Drawings
Not yet archived · Original link
Lighting plots at 1m above railway tracks (from internal lighting only)
Case Copy Drawings
Not yet archived · Original link
Luminaire data sheets
Case Copy Documents
Not yet archived · Original link
Luminaire schedule
Case Copy Documents
Not yet archived · Original link
Luminaire summary
Case Copy Documents
Not yet archived · Original link
M4(3) & typical m4(2) flat layout
Case Copy Drawings
Not yet archived · Original link
Planning & heritage statement
Case Copy Documents
Not yet archived · Original link
Proposed cgi
Case Copy Drawings
Not yet archived · Original link
Proposed cycle strategy
Case Copy Drawings
Not yet archived · Original link
Proposed elevations
Case Copy Drawings
Not yet archived · Original link
Case Copy Documents
Archived · Original link
Case Copy Drawings
Archived · Original link
Proposed landscape principles & shared amenity
Case Copy Drawings
Not yet archived · Original link
Proposed roof plan & green roof details
Case Copy Drawings
Not yet archived · Original link
Proposed sections
Case Copy Drawings
Not yet archived · Original link
Case Copy Drawings
Archived · Original link
Proposed waste collection strategy
Case Copy Drawings
Not yet archived · Original link
Red line plan
Case Copy Drawings
Not yet archived · Original link
Reflected sky lighting plot
Case Copy Drawings
Not yet archived · Original link
Vertical plots
Case Copy Drawings
Not yet archived · Original link

Have your say

Your comment matters. Councils must consider every representation that raises material planning considerations.

Write a comment