← Lewisham

Status

Registered House extension
Received
09 Jan 2026
New homes
0

Full proposal

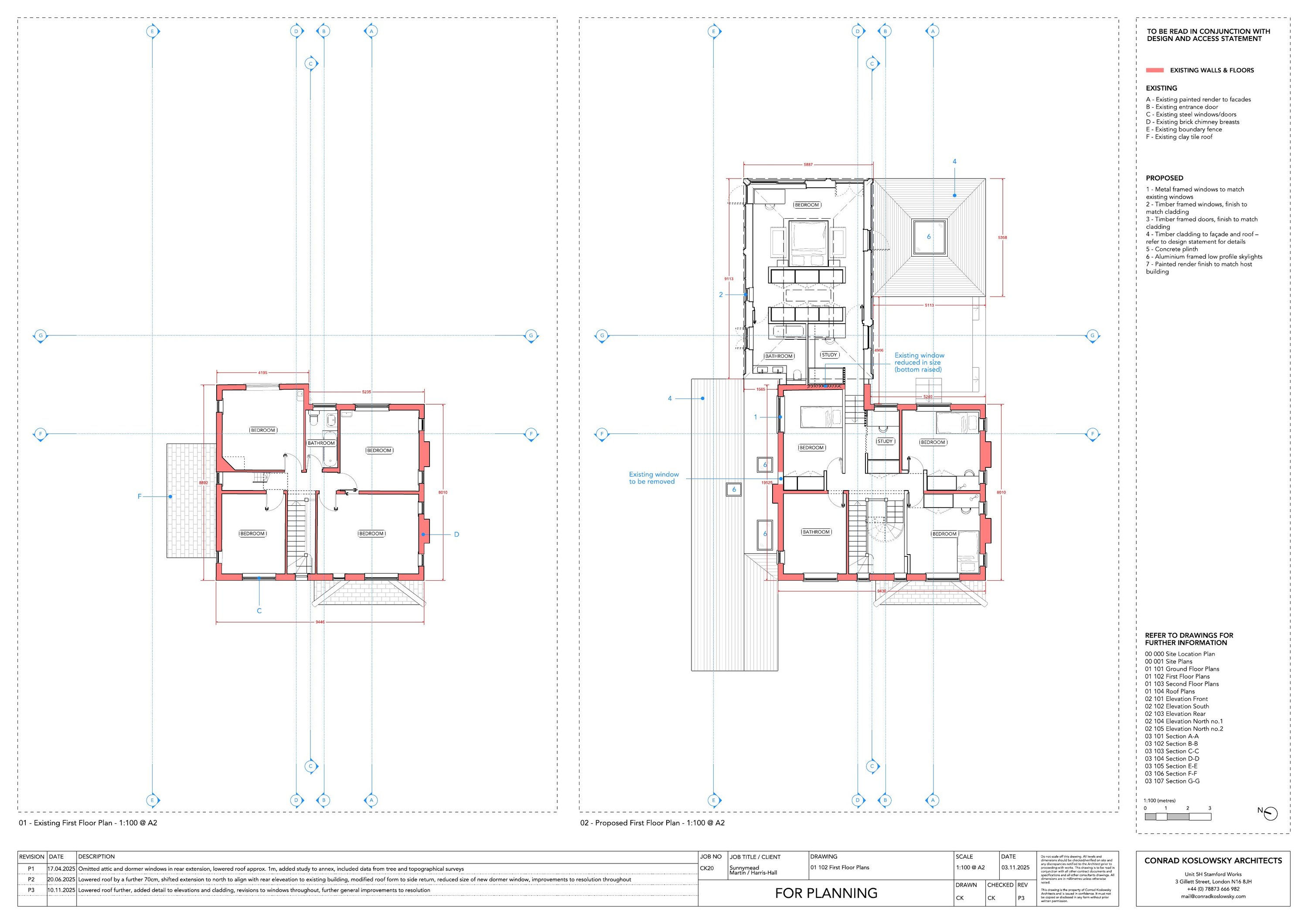
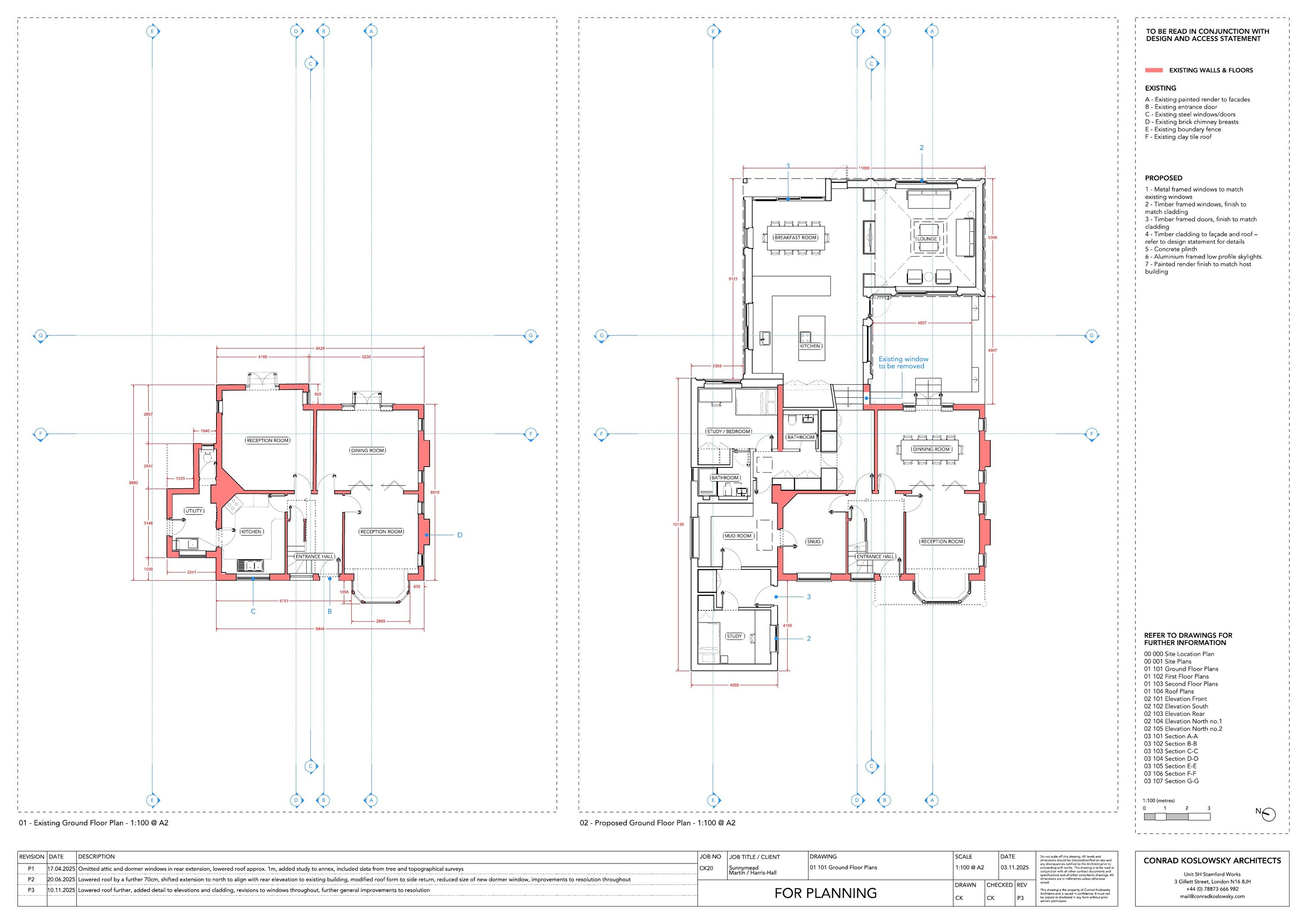
Construction of single storey side extension, part one/part two-storey rear extension, dormer extension to front roof slope, widening of rear dormer, installation of additional front door and all associated works at Sunnymead, Heath Lane SE3.

Documents

Case Copy Drawings
Archived · Original link
Case Copy Drawings
Archived · Original link
Case Copy Drawings
Archived · Original link
Case Copy Drawings
Archived · Original link
Case Copy Drawings
Archived · Original link
Case Copy Drawings
Archived · Original link
Case Copy Drawings
Archived · Original link
Case Copy Drawings
Archived · Original link
Case Copy Drawings
Archived · Original link
Case Copy Drawings
Archived · Original link
Case Copy Drawings
Archived · Original link
Case Copy Drawings
Archived · Original link
Case Copy Drawings
Archived · Original link
Case Copy Drawings
Archived · Original link
Case Copy Drawings
Archived · Original link
Case Copy Drawings
Archived · Original link
Case Copy Drawings
Archived · Original link
Case Copy Drawings
Archived · Original link
Photographs
Archived · Original link

Have your say

Your comment matters. Councils must consider every representation that raises material planning considerations.

Write a comment