← Lewisham

Status

Registered House extension
Received
16 Jan 2026
New homes
0

Full proposal

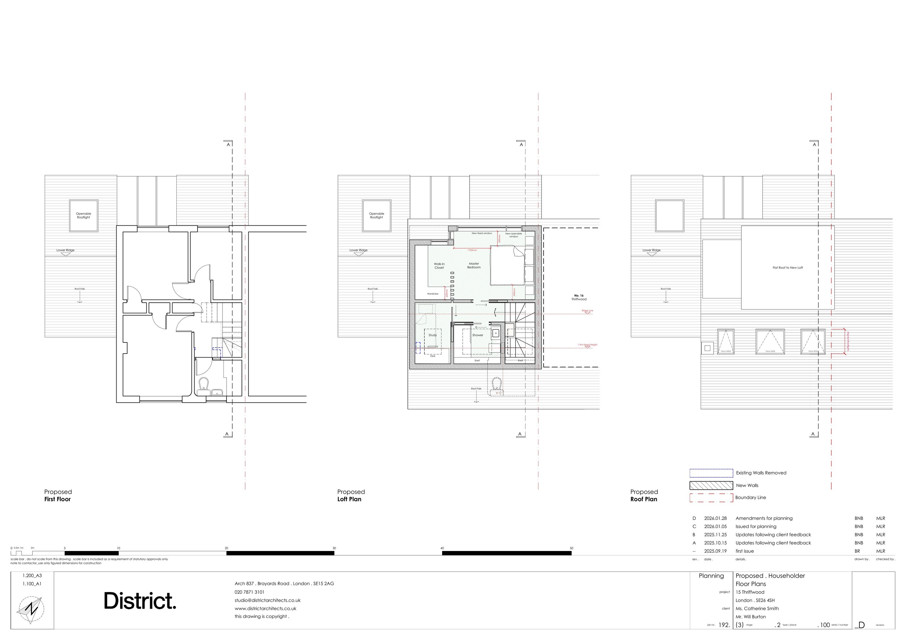
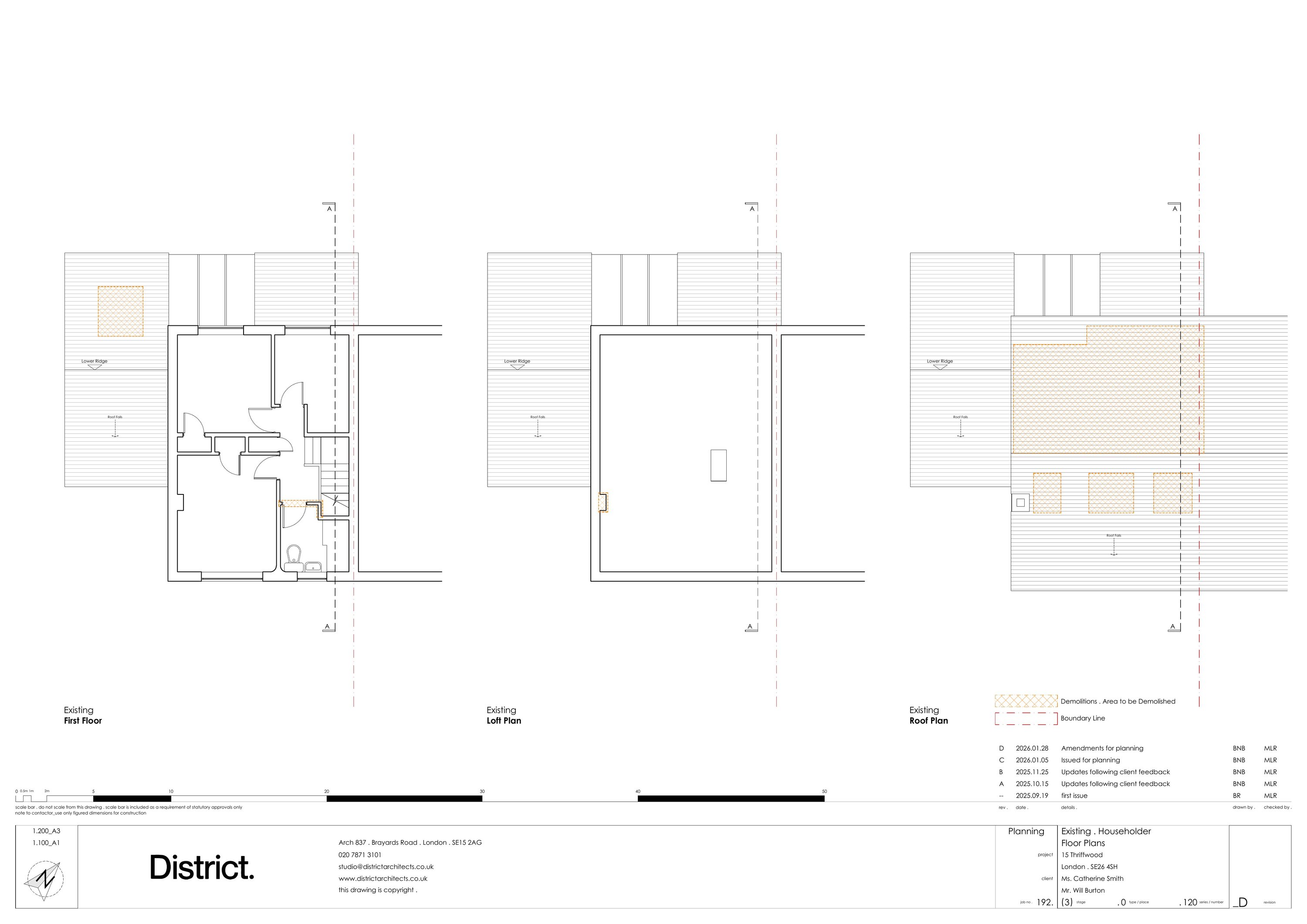
Revised plans have been submitted for the construction of a rear roof dormer extension, three frontslope rooflights, replacement of cladding to the rear elevation and extension, an extension rooflight, front and rear extension window replacements, and all associated works at 15 Thriffwood, Silverdale, SE26.

Documents

Case Copy Drawings
Archived · Original link
Site Location Plan
Archived · Original link
Case Copy Drawings
Archived · Original link
Case Copy Documents
Archived · Original link
Case Copy Documents
Archived · Original link
Case Copy Documents
Archived · Original link
Case Copy Documents
Archived · Original link

Have your say

Your comment matters. Councils must consider every representation that raises material planning considerations.

Write a comment