← Lewisham

Status

Registered House extension
Received
19 Jan 2026
New homes
0

Full proposal

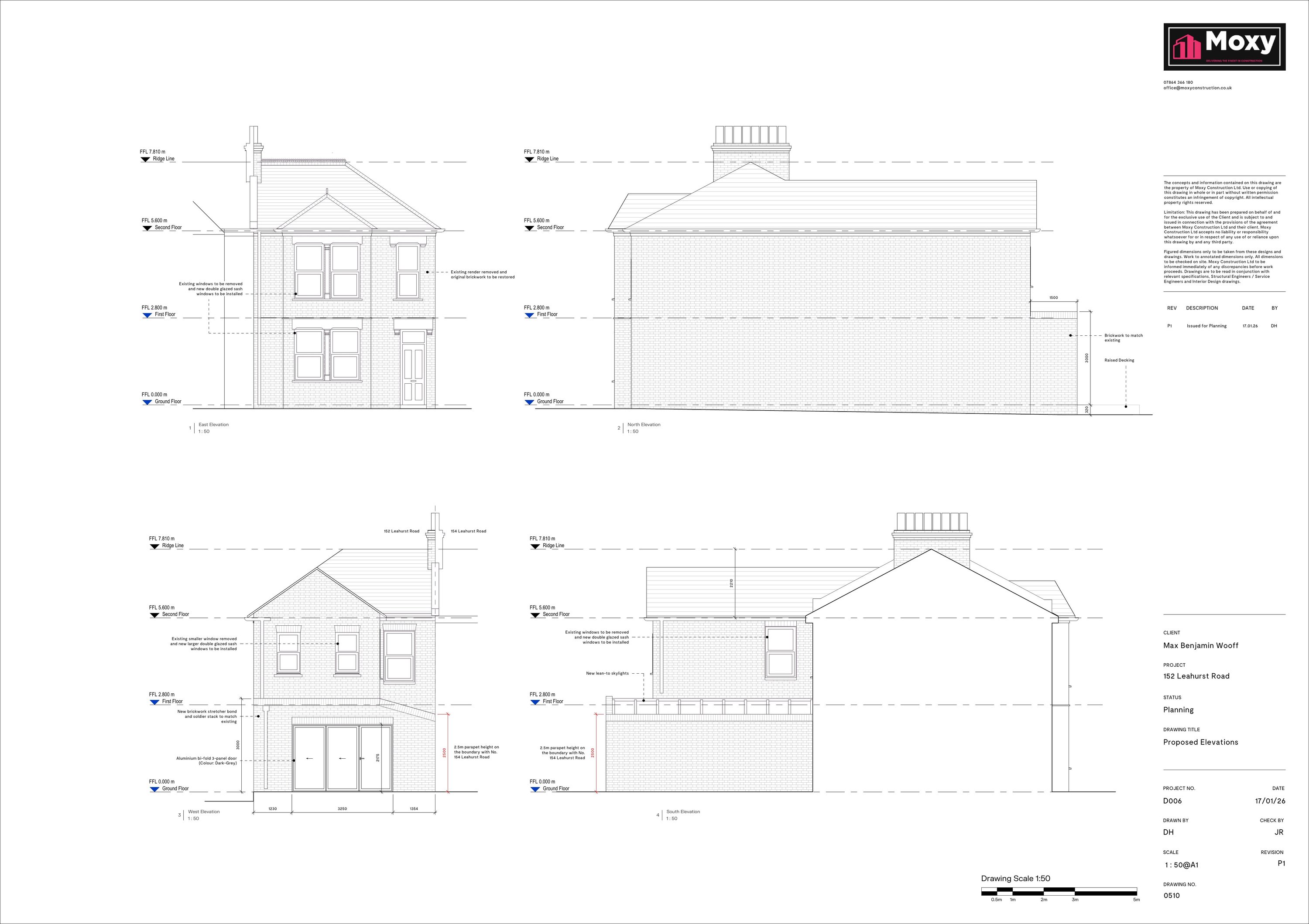
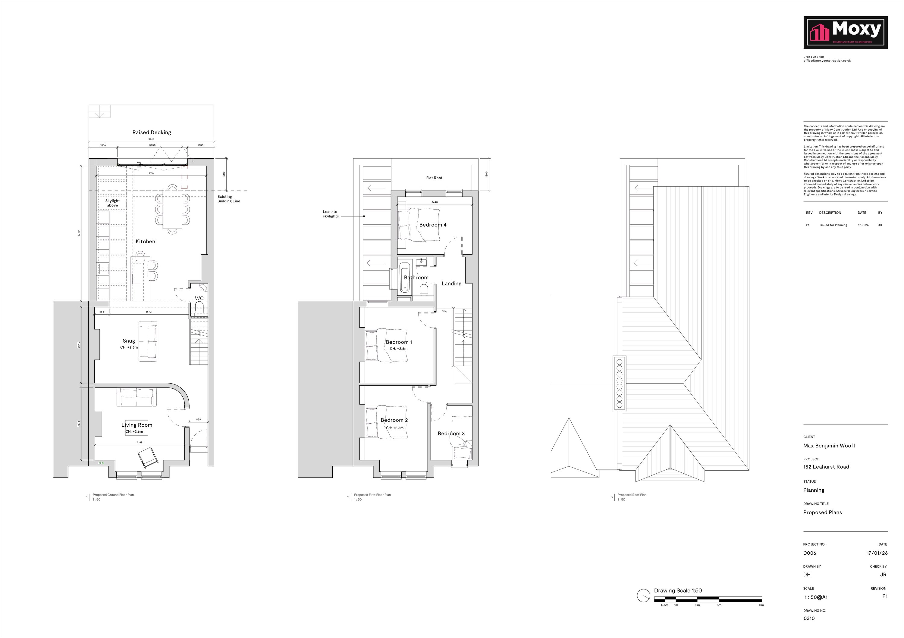
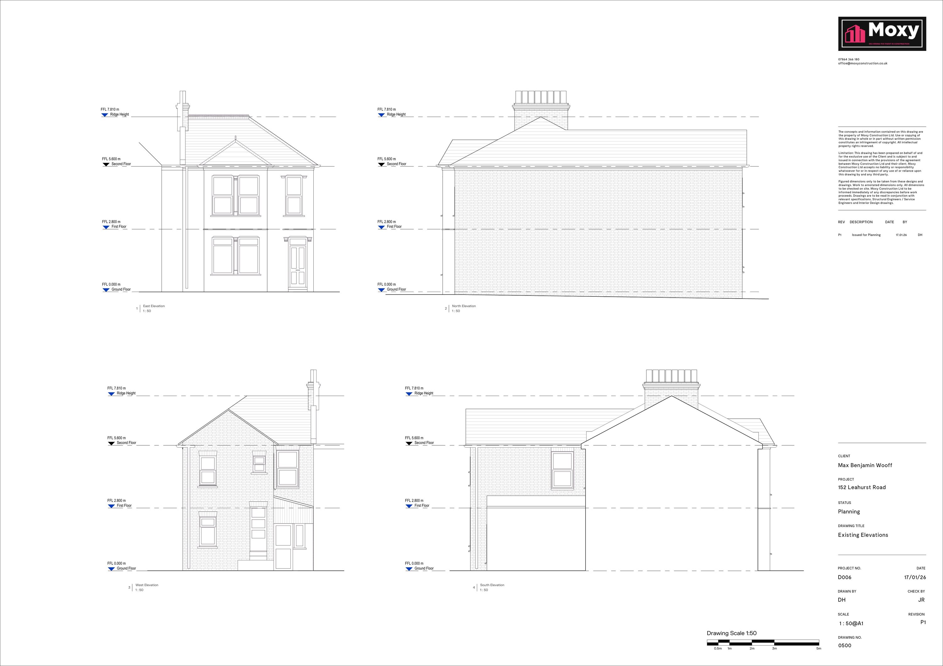
Construction of a single storey side rear extension, installation of replacement windows and restoration of the existing brickwork at 152 Leahurst Road SE13.

Documents

Case Copy Documents
Archived · Original link
Case Copy Drawings
Archived · Original link
Case Copy Drawings
Archived · Original link
Case Copy Drawings
Archived · Original link
Case Copy Drawings
Archived · Original link
Case Copy Drawings
Archived · Original link
Case Copy Drawings
Archived · Original link
Case Copy Documents
Archived · Original link

Have your say

Your comment matters. Councils must consider every representation that raises material planning considerations.

Write a comment