← Lewisham

Status

Registered Change of use
Received
04 Feb 2026
New homes
3

Full proposal

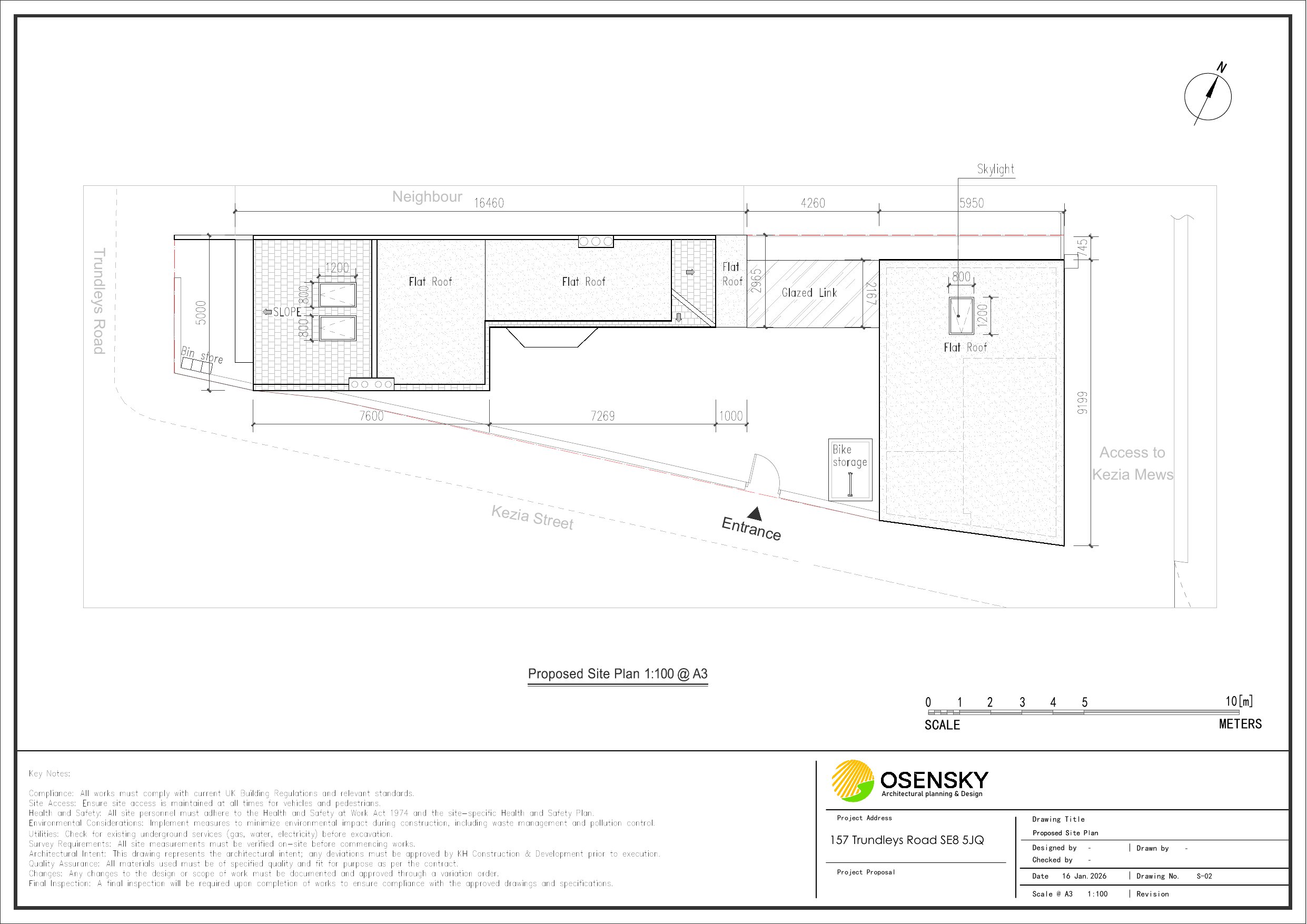
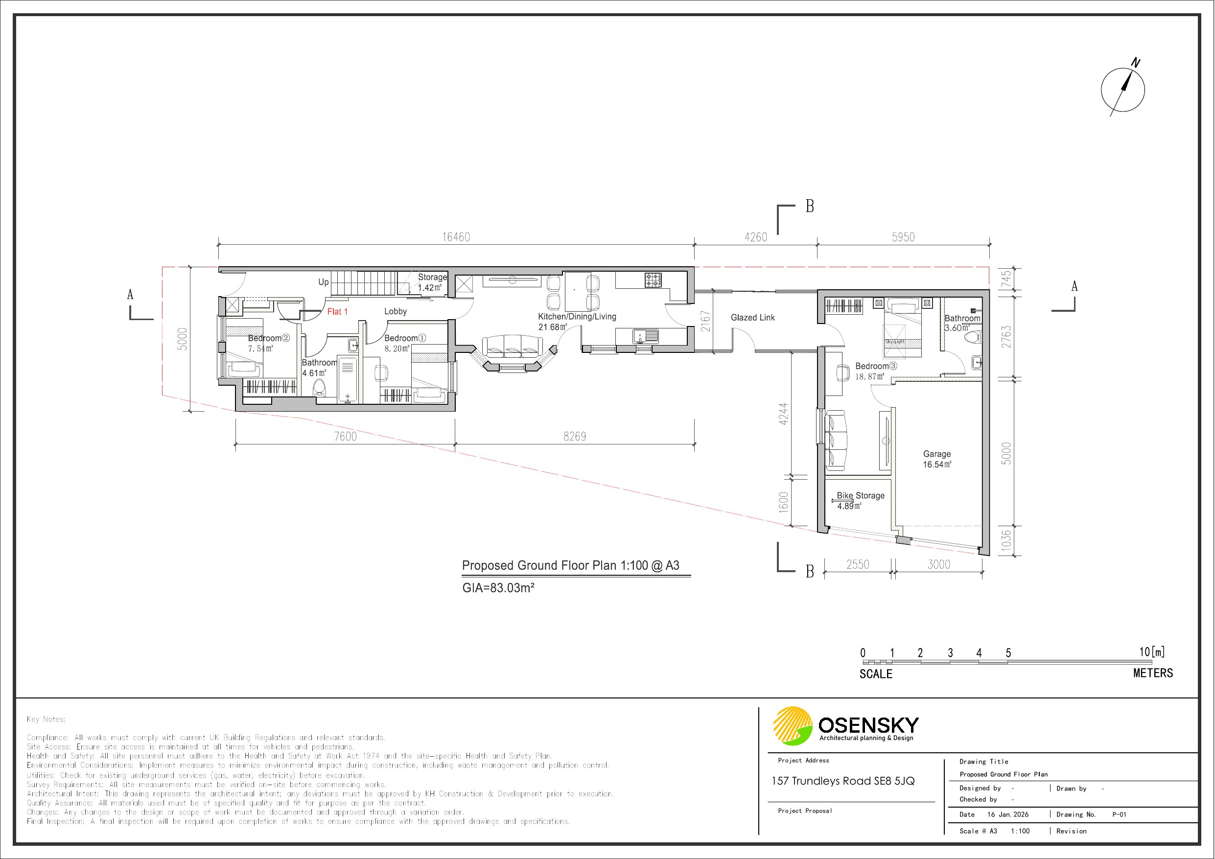
Conversion of existing House in Multiple Occupation (HMO) and the construction of a glazing link on the ground floor and a first floor rear extension to provide 3 self-contained flats, together with the provision of a bike store in the rear garden and all associated works at 157 Trundleys Road, SE8.

Documents

Ai generated image of garage
Photographs
Not yet archived · Original link
Air quality assessment
Case Copy Documents
Not yet archived · Original link
Application form
Application Form
Not yet archived · Original link
Biodiversity net gain statement
Case Copy Documents
Not yet archived · Original link
Design, access & planning statement
Case Copy Documents
Not yet archived · Original link
Existing north-west elevation
Case Copy Drawings
Not yet archived · Original link
Existing plans
Case Copy Drawings
Not yet archived · Original link
Case Copy Drawings
Archived · Original link
Financial viability assessment with plans
Case Copy Documents
Not yet archived · Original link
Fire safety strategy
Case Copy Documents
Not yet archived · Original link
Landscape scheme-proposed ground floor plan
Case Copy Drawings
Not yet archived · Original link
Location plan
Site Location Plan
Not yet archived · Original link
Proposed elevations
Case Copy Drawings
Not yet archived · Original link
Case Copy Drawings
Archived · Original link
Proposed north-west elevation
Case Copy Drawings
Not yet archived · Original link
Case Copy Drawings
Archived · Original link

Have your say

Your comment matters. Councils must consider every representation that raises material planning considerations.

Write a comment