← Lewisham

Status

Registered House extension
Received
Last month
New homes
0

Full proposal

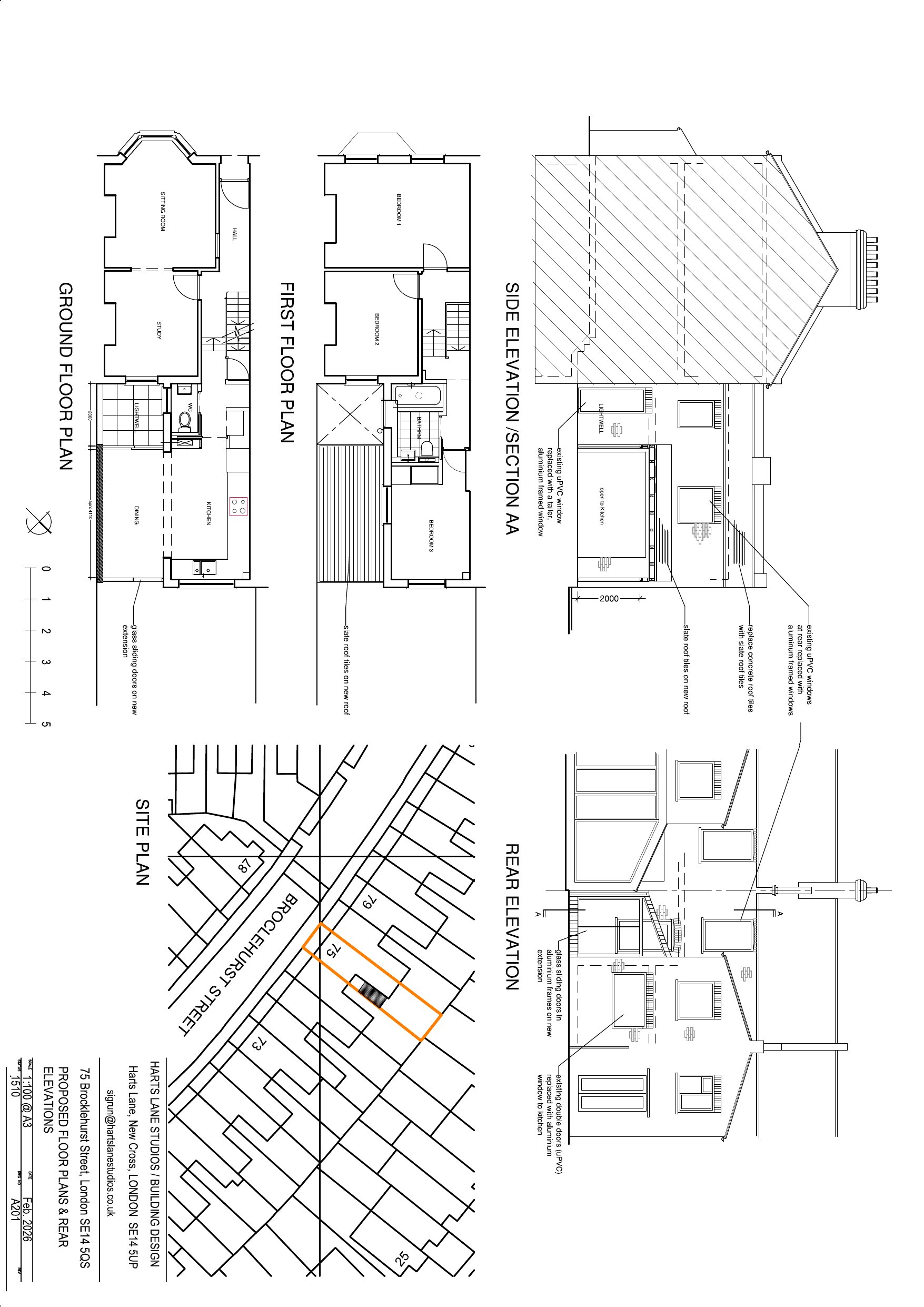
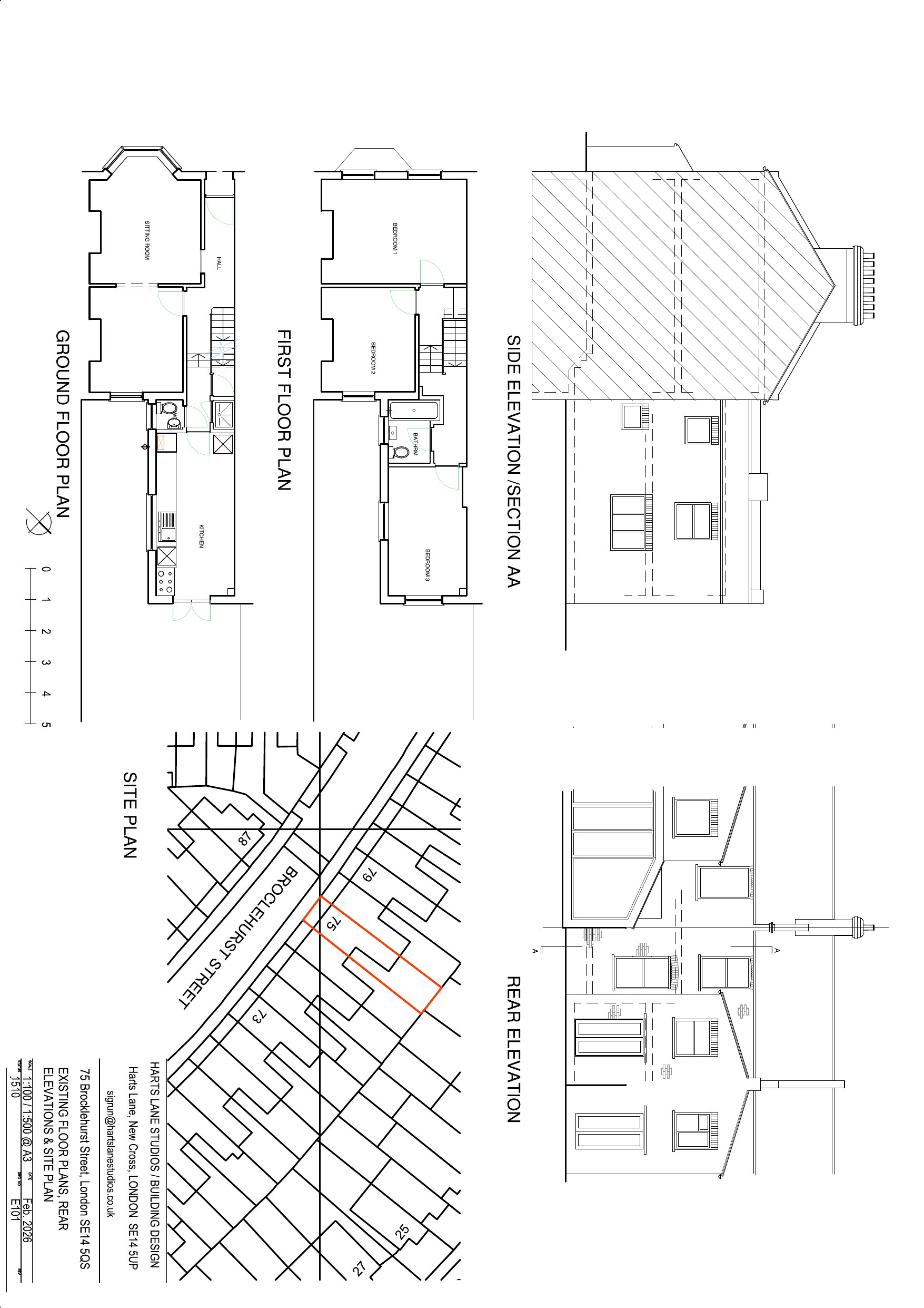
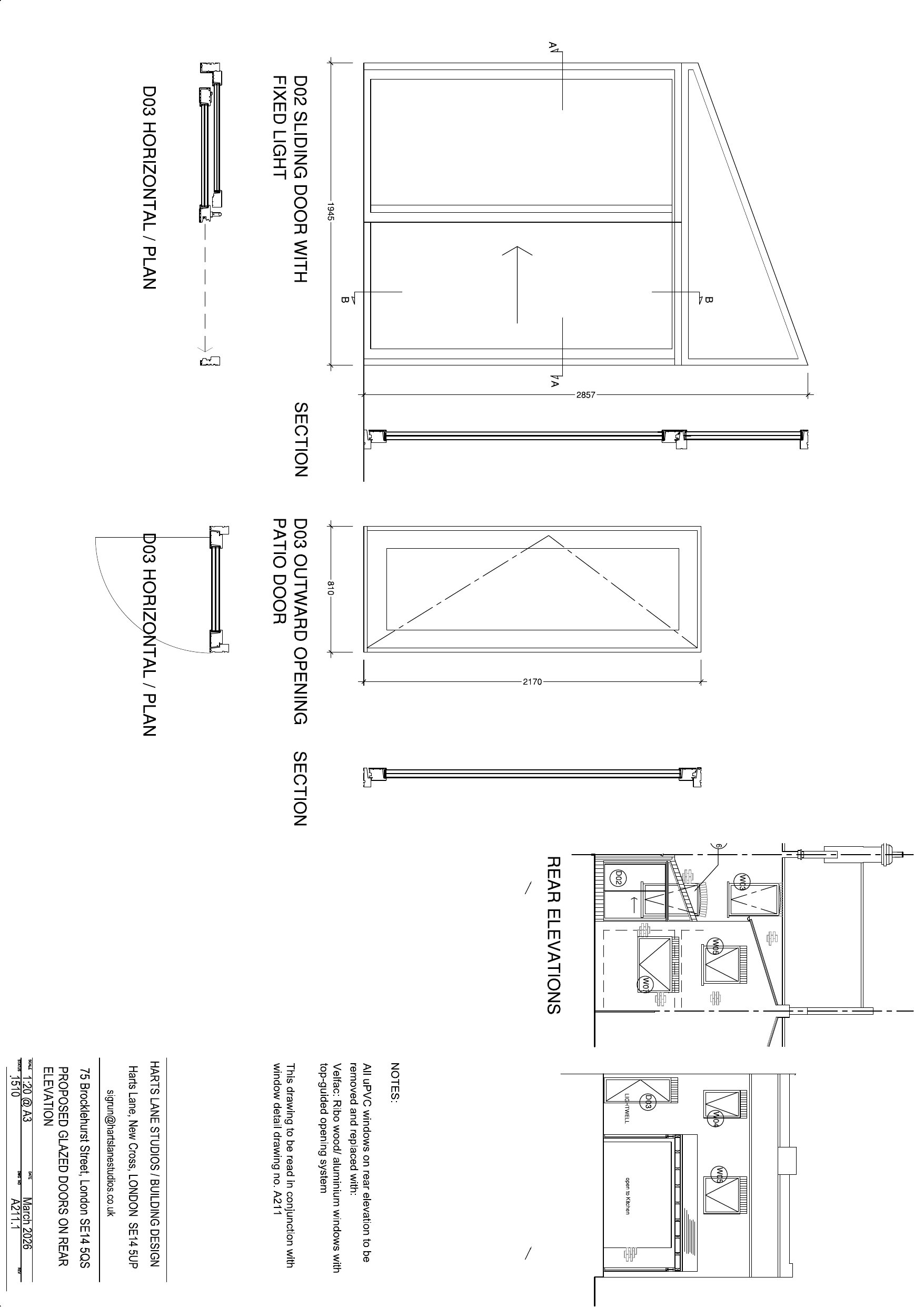
The construction of a single storey side extension to the rear and the installation of replacement timber sash windows at the front and all associated works at 75 Brocklehurst Street SE14.

Documents

Case Copy Documents
Archived · Original link
Case Copy Drawings
Archived · Original link
Case Copy Drawings
Archived · Original link
Site Location Plan
Archived · Original link
Case Copy Drawings
Archived · Original link
Case Copy Drawings
Archived · Original link
Case Copy Drawings
Archived · Original link
Case Copy Drawings
Archived · Original link

Have your say

Your comment matters. Councils must consider every representation that raises material planning considerations.

Write a comment